
由筑博进行建筑方案设计的东坝南区1106-657地块项目,位于首都北京朝阳区东坝组团,紧邻机场第二高速,毗邻第四使馆区,地理位置优越,交通便捷。项目总建筑面积24.04万㎡,是包含了高品质住宅、创意办公、高端商业和保障性住房的复合型社区。

轴测图
项目南区样板区的合院别墅和多层洋房已完成从外装、室内、景观的整体施工设计, 东区和西区正在建设中。
▽ 2016年6月:基坑开挖

▽ 2016年8月:地下室施工

▽ 2016年10月:主体建筑出地面
▽ 2017年4月:外装施工
▽ 2017年8月:现场建成照片



▽ 景观建成照片





城市的融合
项目总体规划以街区的形式融于城市结构中,提倡的是一种开放、共享、充满活力的生活方式,将社区内部道路开放,并围绕道路形成景观化的邻里活动中心,实现商品房区、保障房区、公建区的资源共享。开放式街区的模式不仅有利于缓解城市交通,同时为邻里之间提供了充分交流的场所”

规划结构
传统的肌理
不同的城市具有不同的城市肌理,也具有不同的空间特征。项目基地位于古都北京,因此项目以传统城市印象为出发点,保持其空间特殊性,延续其空间格局,形成清晰的建筑与空间图底关系。

城市肌理
细微的尺度
营造舒适、宜人、适用的空间尺度是设计的重点。社区空间设计上以街—巷—院作为层次过渡,强调私密性和领域性的同时创造了各种不同尺度的令人愉悦的空间。公共区域通过各个围合街区的界面微差、局部开放空间界定出各具特色的大小广场,为邻里之间提供了充分交流的场所,创造亲切的生活情趣。

公共空间尺度
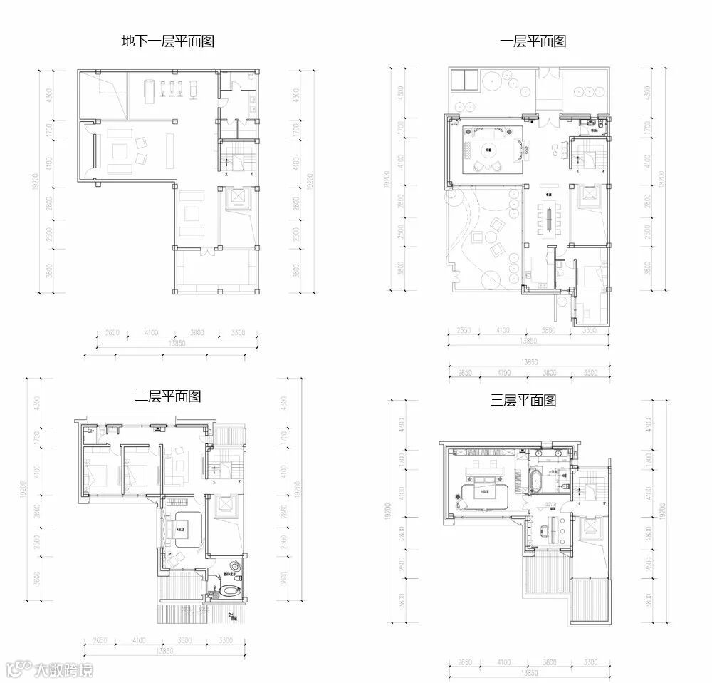
合院别墅




合院别墅实景照片
“光的记忆”
在北京,千金之地,合院产品为业主营造了“一寸光阴”。结合电梯设有从地下二层到屋顶五层通高的 “光庭”,是整个户型的核心。庭院、客厅、餐厅等空间围绕光庭展开,各功能空间在各层之间相互连接流动,形成会呼吸的建筑;光庭的光线会随着时间、天气的流转变化呈现出不同的颜色、形态,成为整个户型中的最美的装饰,业主未来可根据需求结合“光庭”打造成自家独有的“创意客厅”等空间。

“光庭”实景照片


室内实景照片
“阳光房”
中庭幕墙与屋面天窗的设置,形成了通透的阳光房,可最大化改善和利用室内空间,同时,夏天可以利用空气对流起到室内降温的作用,冬天可以利用温室效应达到采暖目的,达到环保节能的目的。


阳光房实景照片

阳光房示意图
绿色的有机生态居住建筑
建筑空间上追求流动的空间,精致的内庭;建筑形式上强调轻盈、通透、精致、时尚;居住体验上融入绿色、生态、节能、科技与智能;在建筑的每一个细节都融入了顶级的设计,以工匠精神打造所有产品,将带给客户尊贵、舒适、顺心的居住体验。




室内采用大平层的空间布局形式,南侧端头270度的全玻璃幕墙设计,在享受充足的光线和对流空气的同时提供了一个非常广阔的视野;餐客厅L型开敞式设计灵活可变,为业主改造留有余地;所有产品均为南北向布局,户型均南北通透,南向通透落地的大面宽玻璃窗,使室内空间形成具有通透性与流动性;电梯独立入户,强调每一户的专属空间感 。



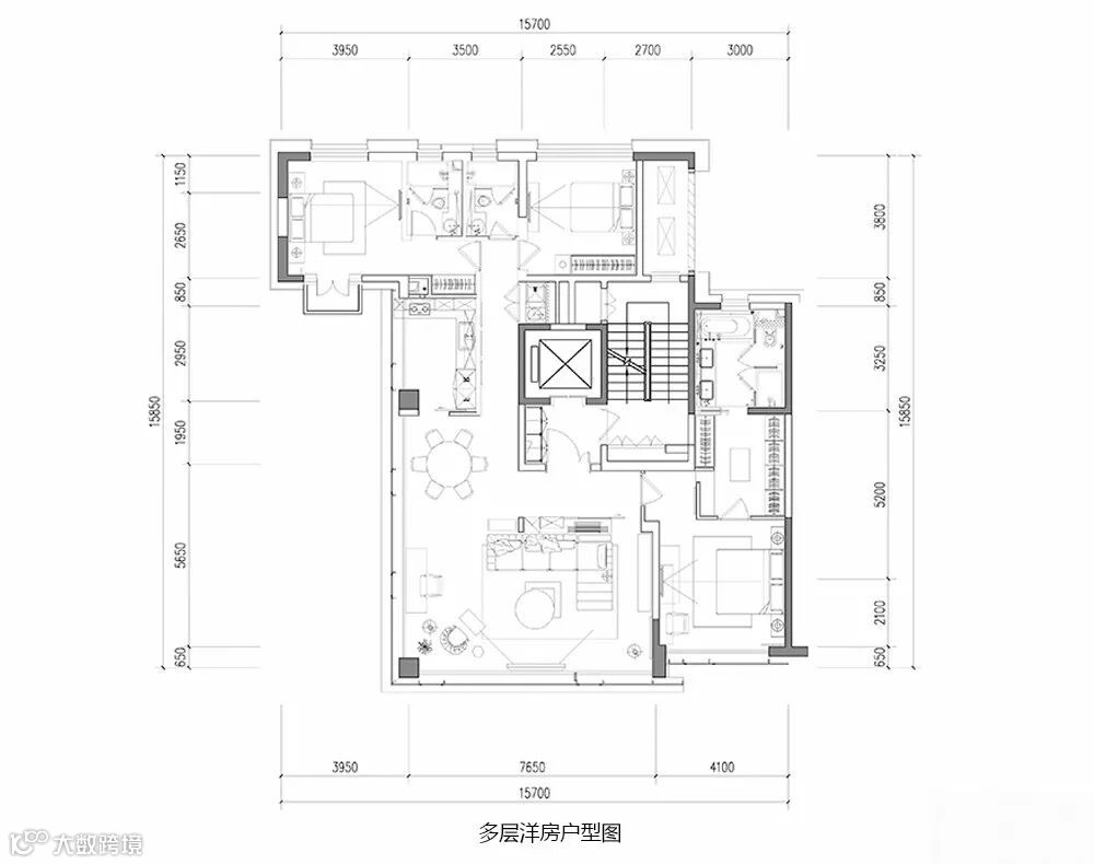
多层洋房室内照片
立面造型上有别于一般的北方建筑,立面设计上通过大面积玻璃幕墙营造出具有通透、开敞特性的南方建筑特点,结合石材塑造出高贵现代感的建筑形象。

多层洋房立面照片

SUSTAINABLE可持续性
我们力求设计产品节能减排以体现对自然环境、建成环境和社会环境的尊重和呵护,并不断创造人际和谐、使用合理、运营持续的空间场所
MAINTAINABLE易维护性
我们确保设计产品坚固、耐用,方便维修、保养、升级、 更新
ARCHITECTURAL建筑专业性
我们倡导、坚守、发扬建筑学的真、善、美尊贵属性,创造性地继承和发展传统与时尚建筑文化
RATIONAL理性
我们的作品皆基于 对城市文脉、投资价值、用户需求的理性分析,以寻求项目开发价值的最大化
TECHNICAL技术性
我们关注并善用建筑工程与信息适配新技术,在设计信息化、建筑智能化、建筑产业化、绿色建筑等领域保持行业领先地位
项目信息
方案设计团队:筑博设计股份有限公司
项目地点:北京市朝阳区
功能:住宅、商业、办公
建筑高度:45m
总建筑面积:240438㎡
项目总负责人:杨为众
方案设计团队:杨为众,唐代文,周曙光,郑炫坤,魏波,赖圣启,郑业宏,肖潇,于婉红,赵珂,苏楚都,甘超, 夏翀
景观合作单位:奥雅设计
室内合作单位:邱德光設計事务所、广州尚逸装饰设计有限公司
施工图合作单位:北京市住宅建筑设计研究院有限公司
开发商:北京保利房地产开发有限责任公司
现场报道
【现场报道 • 1 】筑博设计超高层系列:“恒丰贵阳中心——主塔”
【现场报道 • 2 】筑博设计医院系列——上海瑞金医院苏州分院
【现场报道 • 4 】筑博设计文化建筑系列——佛山三水新城文化商业综合体
更多现场报道相关信息,敬请关注筑博设计!


