
继建筑总监(中级)班后,筑博设计培训学院推出的第二个专题培训班——结构初级班首期已于今天开班。
课程主要针对大多数结构设计师及业主关注的问题,从结构设计要求、人防结构设计、装配式混凝土建筑一体化设计等多方面结合公司实际案例进行讲解,引导学员互动交流、碰撞观点,启发学员深入思考,帮助应用落地与提效,进一步提升结构设计师的岗位胜任力。
01 办学目的
1 提高学员的个人综合工作能力。
2 为公司培养人才储备,建设后备干部梯队。
3 形成学习、交流的企业文化。
02 教学方式
教学过程以案例教学为主要手段,注重对学员相关技能和工作方法的启发与引导。
03 学习方法
1 学员应预读教材及课程讲师推荐的书籍。
2 学员须根据每门课程的课前任务书,结合实际工作中的相关案例或经验,完成课前作业或任务。
3 课程采用小组学习制,学员在课堂中应积极参与小组讨论与成果汇报,小组汇报成绩将纳入个人综合成绩。
04 考评形式
1 每门课程结束后将进行考核,考核合格者将颁发合格证,作为任职资格的重要依据之一。
2 课程结业:采用毕业论文的形式,重点考评实际工作中的应用与实践。
05 课程特色
1 由集团多位技术骨干提供专业理论和实战解析的课程指导,结合导师丰富的个人经验,结合实际工程案例为学员进行讲解。
2 从结构设计的多个维度出发,注重对学员相关技能和工作方法的启发与引导。
3 连续4个月,每月集中3天的深度培训。
4 每门课程都设有针对性的随堂考试,导师一对一批改,即学即练。
5 全套定制培训产品(培训教材、T恤、帆布袋等)。

06 七月课程

07 七月课程导师




08 部分课程内容

△结构设计要求:安全性、经济性、规则性、舒适性、协调性

△人防结构设计:多层地下室人防荷载

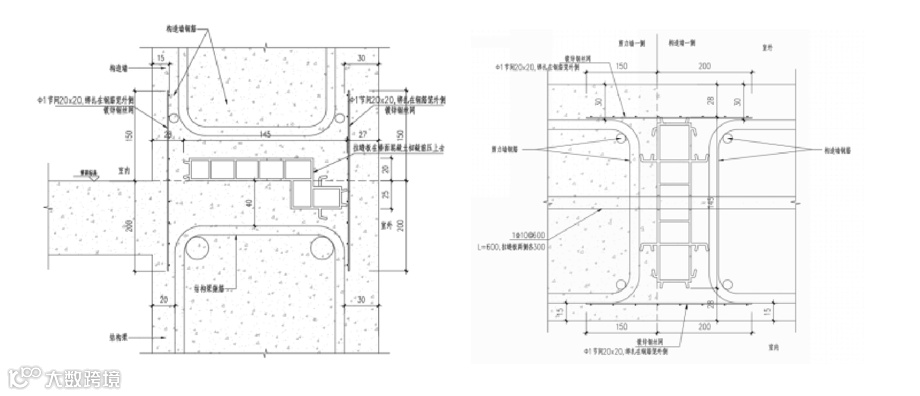
△装配式混凝土建筑一体化设计:构造墙大样

△部分课程案例:深圳万科星城

*关注筑博设计公众号,后续还将有更多培训课程的精彩报道。










