
结构标准化设计培训由来自集团结构专业技术委员会的三位导师进行讲解。

温景波
筑博设计资深结构副总工程师
筑博设计审图中心主任
集团结构专业技术委员会委员

许丰
筑博设计结构副总工程师
产业化研究中心结构总工程师
集团结构专业技术委员会委员

李斌
筑博设计城脉公司结构总工程师
集团结构专业技术委员会委员
结构标准化设计课程现场 ©筑博设计
课堂上,李斌导师为大家详细介绍了制图标准、图纸表达、详图做法、设计范图、字体、图层、打印样式等模板的标准化设计内容。
结构标准化设计-施工图绘图规范 ©筑博设计
结构标准化设计-图层、打印样式规范 ©筑博设计
例如与建筑图纸的配合部分,要严格遵守协同绘图,节省工作时间,提升工作效率。
标准图纸为结构工程师们提供了各种细节做法以及设计说明。
结构标准化设计-表达细节 ©筑博设计
结构标准化设计-表达细节 ©筑博设计
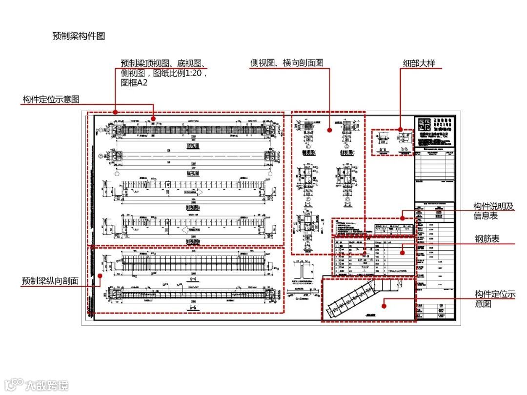
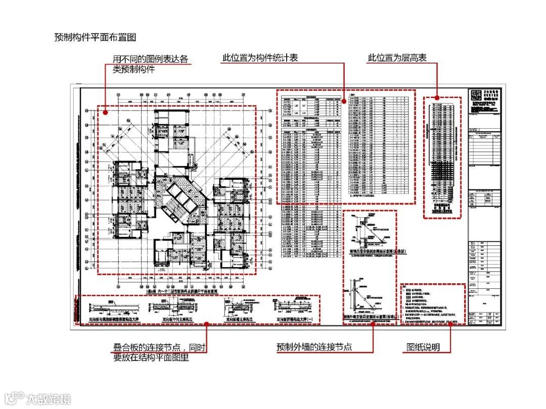
结构标准化设计-装配式建筑预制构件 ©筑博设计
结构标准化设计-结构施工图设计总说明 ©筑博设计
结构标准化设计-钢结构设计总说明 ©筑博设计
标准化设计为结构工程师带来了什么?
深圳分公司
“有利于新同事快速融入筑博设计标准,减少无效的修改工作量,同时可减少专业负责人校对时间。对于异地协同、配合的项目,可大大减少制图相互融合的时间,更加顺畅地推进工作。”
李宏波
城脉公司
结构二部主任结构工程师
“是对过往项目的经验归纳总结,给未来工作提供了很好的技术参考,能提高工作效率,未来还需要不断延续和完善标准化设计。”
罗昌兴
产业化研究中心
“推行集团标准化设计对图纸质量提升效果明显,是各专业协同设计的重要前提,也对提高各专业设计师的工作效率、降低出错概率很有好处。”
陈建文
城市公司
“标准化设计能给设计师一个方向,快速熟悉结构设计内容,减少错误。具体执行还需靠各专业领导协调,明确设计过程中专业间表达的统一。”
采访/撰文/编辑:Darlin
责编:李晓地
筑博培训学院是筑博设计结合当下市场和行业发展趋势,基于自身25年的实战经验沉淀出一套面向集团内部的人才战略培养方案。从2021年6月开始,筑博培训学院推出多个系列课程,赋能不同阶段的建筑从业人员提升工作能力,获得岗位胜任力,成为集团面向未来的中坚力量。课堂通过导师案例讲解、学员案例分享、导师学员开放式讨论等方式灵活展开,让学员和导师在活跃的气氛中共同探讨相关主题,分享相关经验,学习专业知识。














