搜索
首页
大数快讯
大数活动
服务超市
文章专题
出海平台
流量密码
出海蓝图
产业赛道
物流仓储
跨境支付
选品策略
实操手册
报告
跨企查
百科
导航
知识体系
工具箱
更多
找货源
跨境招聘
DeepSeek
首页
>
项目 | 中建宏泰·学府悦城展示中心
>
项目 | 中建宏泰·学府悦城展示中心
筑博设计
2022-05-12
0
导读:持续成长的内部空间,打造多样化使用新场景。
这是一次售楼建筑的创新尝试。
我们在传统售楼区中
融入多样化的使用新场景,
以可持续生长的建筑理念,
构建起城市、运动、教育与人的亲密联系。
项目位于
广州
未来新东部中心——增城区。基于近年愈发火热的运动诉求,我们突破传统售楼区的功能束缚,提出“售楼中心”+“运动新场景”+“未来校园综合体”的大胆设想。
如何兼顾前期的售楼体验与未来教育功能?如何让理性与活力共存?
基于洞察思考,我们以“健康运动”、“美观舒适”、“可持续性生长”为理念,以理性与活力的共生表达,构建教育、运动与人的亲密联系,打造了一处蕴藏
能量
的校园综合体。
点击图片查看昼夜变化
持“之”以恒的建筑形态
设计通过相对物化的建筑语言,做出回应。
独特的“之”字形建筑形态,展现出标示性的昭示作用,也隐喻着“持之以恒”的体育精神与教育理念
。
二层悬挑与首层形成错动的形体变化,彰显出向外延伸的建筑张力,暗喻迸发力。
夜晚,檐下成排的点光源亮起,如星空般璀璨,照映出生活的诗意。
光影流动的立面风景:
瞬时性与日常性的空间体验
三维空间里,固定的点与点之间的运动,如果赋予时间来充当第四维度,才能让一切科学设计生长出灵魂。
而光影与材质,是体验建筑时间的方式之一。
点击图片查看昼夜变化
立面融入“镜湖之窗”的设计理念,大面积的玻璃幕墙营造出通透轻盈的感觉,呈现建筑恒久统一之美。
而另一侧的铝板幕墙,在不同晨昏光线调和下,金属的冰冷质感被削弱,呈现出流动的光影效果,
让建筑成为一处值得驻足欣赏的日常风景
。
持续成长的内部空间,
打造多样化使用新场景
对于内部空间,我们不希望功能被清晰地界定,而是期待一种能应需求变化而具备多样可能性的空间。
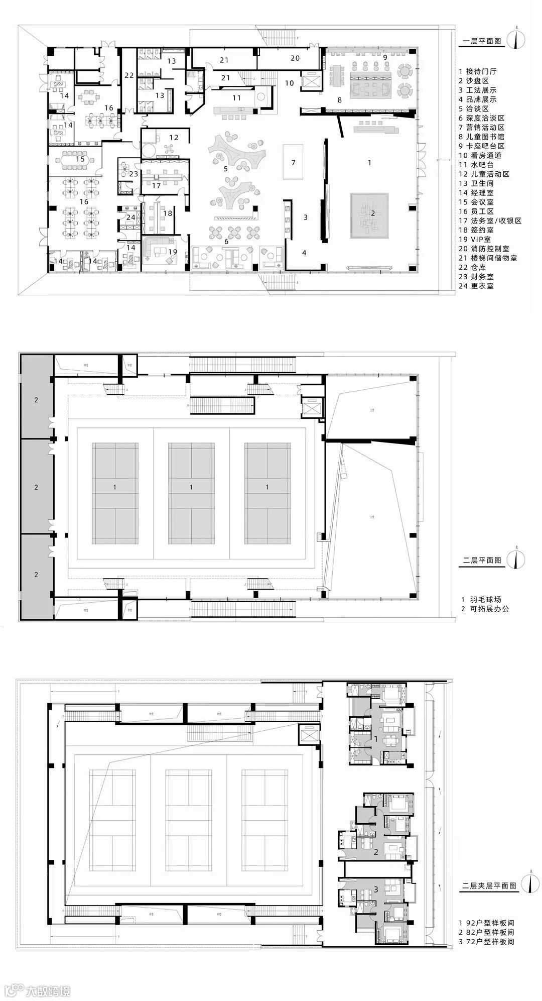
一层的展示区,在后期可改建为校园用餐区,二三层则成为室内运动场馆,可进行篮球、排球、羽毛球、体操等体育活动。在后期的持续生长中,还可对建筑进行科技化升级,给予使用者更好的功能体验。
建筑从来不是独立存在的,它与外部城市环境相融,带给人互动体验,也在时代的需求变化下,不断生长。
我们期待这个项目
现在
作为展示中心,能带给观者愉悦体验;也希望未来孩子们步入校园时,也步入了一种舒适、艺术、活力的氛围中,享受运动的快乐。由此,建筑便可持续性生长。
项目技术图纸
图片为展示中心平面图纸
点击查看
改建后体育综合楼平面图纸
©筑博设计
项目信息
项
目名称:
中建宏泰·学府悦城展示中心
项目地点:广东 广州
项目
业主:
中建三局
项目功能:展示中心/小学体育综合楼
建筑面积:3,700平方米
建成时间:2021年
方案
设计:
筑博设计
项目总负责人:曾小飞
方案团队:喻溯,吴柏华,杜修能
摄影:
深圳柏瑞文化
撰文:潘慧云
编辑:
张彩琦
责编:李晓地
【声明】内容源于网络
0
0
筑博设计
筑博设计股份有限公司成立于1996年,2019年在深圳证券交易所上市,是具有建筑行业(建筑工程)甲级资质、城乡规划编制甲级资质、市政行业(给水工程、道路工程、桥梁工程)专业乙级资质和风景园林工程设计专项乙级资质的综合设计机构。
内容
1057
粉丝
0
关注
在线咨询
筑博设计
筑博设计股份有限公司成立于1996年,2019年在深圳证券交易所上市,是具有建筑行业(建筑工程)甲级资质、城乡规划编制甲级资质、市政行业(给水工程、道路工程、桥梁工程)专业乙级资质和风景园林工程设计专项乙级资质的综合设计机构。
总阅读
2
粉丝
0
内容
1.1k