会呼吸的诊室
上海市肺科医院特需门诊改造项目
上海市肺科医院创建于1933年,是一家集医疗、教学与科研功能为一体的现代化三级甲等专科教学医院。医院主院区位于杨浦区,作为“上海市花园单位”“杨浦区文物保护单位”,已有一个多世纪历史的“叶家花园”绿树成荫,为患者的治疗和休养提供了优美、舒适的环境。
本次改造,聚焦于门急诊楼六层特需门诊,不仅是室内更新,更是对空间治愈力的理解和重构。当医疗空间学会了呼吸,疗愈便拥有了温度与脉搏。
01
历史入脉 · 呼吸成纹
设计核心理念
设计的核心理念,源于对医院深厚历史背景的回溯提炼与细腻转译。自“叶家花园”的繁茂绿影里,萃取出生长与庇护的意象;从人体“肺叶”的精微脉络中,捕捉到生命与呼吸的韵律。它们共同凝结成了全新的生命符号“叶脉”。
独特的“叶脉”图案被精心织入空间的经纬,在墙面上舒展。每一次不经意的抬眼或驻足,都仿佛能看见生命在静静流淌,感受到呼吸在此处被温柔延续。
02
廊间青屏 · 一步一景
公共走廊
设计对公共走廊进行了整体升级,让这里成为人们进入楼层时第一眼的温暖风景。空间保持了干净明亮的基调,天花、墙面与地面均以大面积的白色与木色铺陈,营造出开阔通透而富有温度的氛围。
与此同时,廊间引入生机盎然的绿植,它们呼应着“叶脉”的设计核心理念,以鲜活的姿态为空间注入蓬勃的生命力,让每一次穿行都成为一次充满生机的呼吸。
03
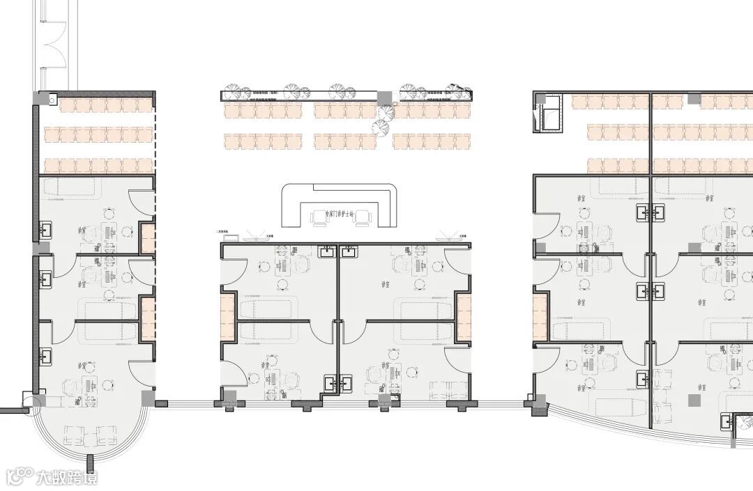
空间重组 · 疏候有序
一次候诊 · 二次候诊
原门诊等候空间以岛式集中等候为主,缺少二次候诊空间,流线混乱交叉,就医环境欠佳,院内感控风险较大
本次改造优化候诊布局,将原先集中而略显混乱的一次等候区进行缩减,增加数个分布在不同诊室入口的二次等候区。这些小型、静谧的角落,使等候的人流得以自然、舒缓地分散。
以柔和的暖色调铺陈,营造出温润包容的氛围。护士站背景墙选用特制的钢化彩釉玻璃,展现出“叶脉”的细腻纹理,将自然的呼吸感悄然带入室内。空间以米色为主调,无声缓解等待时的不安与焦虑,让时光在宁静与等待中静静流淌。
04
增室纳光 · 愈境天成
诊室改造
原诊室数量少且单间面积小,室内空间无法满足门诊量需求
光是治愈的媒介,空间是疗愈的容器。改造不仅关注空间的功能性提升,更致力于营造充满温度与希望的疗愈环境。适当增加独立诊室的同时,设计精心优化了诊室的采光设计,让自然光温柔地洒入诊室与候诊空间。
05
隐光为引 · 漫步入境
灯光设计
原天花分隔较小,视觉上较为细碎,方形灯体较为刺眼
改造对室内照明系统进行了全面重构。如今,走廊空间已焕然一新,规整的条形灯依次铺展,光线柔和而富有韵律,悄然抚平视觉的纷扰。
隐藏式灯带让温暖的光晕自然漫溢,轻轻点亮走廊两侧的绿意,也在每间诊室门前洒下宁静的指引光,温柔地诉说秩序、生机与等待。
06
让医疗空间获得呼吸
设计师札记
顾冰兰
执行项目经理、室内设计负责人
设计中,我们视“叶脉”为不可替代的精神锚点与生态绿肺。把细腻的微脉网络,体现在对使用者无微不至的关怀。材料的温暖质感、光影的柔和变化、角落的一处休憩座椅。我们刻意创造空间的渗透与对话:走廊与诊室的窗框将园林景色裁剪成动态画卷。医疗功能的高效流线,与舒缓的景观视线流线,如同叶脉中输送水分与养分的不同导管,并行不悖,共同支撑起高效而宁静的运营体系。
在这里,建筑在呼吸,新旧空间通过虚实开合形成节奏;历史在呼吸,尘封的记忆被激活并赋予当代意义;人在呼吸,患者于自然中获得身心疗愈,医护在繁重工作中觅得片刻宁静。上海肺科医院的设计,便是让技术、自然与人文像叶脉般精密交织,共同谱写一首关于生命、传承与希望的呼吸之诗。
设计单位:筑博设计
设计范围:全过程设计
项目总负责人:徐蓓蓓
项目经理、项目建筑师:唐亚红
执行项目经理、室内设计负责人:顾冰兰
室内与标识设计:顾冰兰,赵玉姝,张家宾,曹煜之
强弱电专业:徐峰峰,陈琛
通风空调专业:陈健,卢毓斌
给排水专业:杨磊,舒适

