这是一套建筑面积145㎡的现代简约风格装修案例,整体的装修以原木色为主,这种整体的搭配完全符合现代简约风格,通过简单大方的空间设计,以简脱繁,打造温馨舒适的居住场所。
户型结构

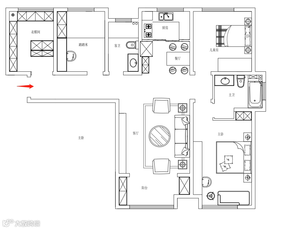
平面布置图

一进门迎来狭长的走廊,设计师在走廊墙面上选择简单的挂画做装饰,墙面选用咖漆色色漆,营造整体走廊的氛围。
客厅

电视影视墙选用灰色乳胶漆与石膏线串边做装饰,电视柜悬空在电视影视墙上,方便底部容易清理卫生。

沙发墙比较简单,暖色的色漆与挂画结合做装饰,三人布艺沙发+贵妃榻完全符合现代简约风格。

墨绿色的单人沙发与这样的窗帘保持同色系,这样既营造了客厅的氛围,又比较温馨舒适。

电视柜、木门、全房踢脚线保持同色系的原木色,符合现代简约风格,全屋柜子选择了定制柜。
餐厅

冰箱考虑放置在餐厅位置,为了能够让冰箱与餐边柜保持平齐,餐厅墙内嵌10公分,减少冰箱占用客厅的空间。
儿童房

北卧室考虑布置儿童房,顶天立地的嵌入式衣柜,收纳方面提高10倍。

侧卧

不足5㎡的小卧室,为了能够实现学习、睡觉、储物多功能,考虑了书桌+榻榻米+封顶衣柜的结合设计,榻榻米侧面设计多个抽拉抽屉,这样后期拿取物件比较方便。

主卧

主卧床头背景墙考虑嵌入式灯带,明亮又比较温馨。


衣帽间

拿出整体的一间房做衣帽间,玄关鞋柜底部留空,中间留空位置放置包包、钥匙、相册等一些装饰用品。

选用玻璃门板衣柜内嵌灯带,每当打开衣柜门时柜内的灯光就会特别的明亮,方便寻找衣物。
厨房

厨房空间比较小,为了增大储物提高收纳,厨房橱柜设计成U型布局。
卫生间

主卫做的装修项目比较多,借用下水管道位置设计出一个壁龛,下面放置浴缸,泡澡时一些洗化用品完全可以放置到壁龛里面,为了方便清洁卫生,马桶考虑墙排,浴室柜台面考虑岩板材质,都是近期 比较流行的设计。

