
总体鸟瞰图

万科双月湾二期已经全部竣工(上图),目前三期东区正在建设中(下图)。

项目位于惠东双月湾半岛,三面环海,岛上自然人文景观丰富多彩,是一个绝佳的海滨度假胜地。因此,从项目周边竞品的调研与现状开始,业主与设计师就达成了一致的规划目标——打造一处全新的滨海度假目的地,让度假与生活融为一体。

万科双月湾位置示意
从这个出发点开始进行的整体规划,我们概括起来实现了两个目标,一:在家中即能直接看海;二:营造一种开放的、充满活力的社区氛围,并实现快速到达海边,参与各种活动的目的。
为此,我们总结运用了以下规划设计模式语言:
■ 采用网状的街道、公共空间广场和社区中心等小镇规划原则。

总平面图

网状的街道系统及组团关系
■ 打造多个开放空间,不仅仅限于海滩,在居住区内部也有公共空间为人们提供交往和活动的场所。

组团间的小巷
结合运河元素提升居住品质。运河本身是开放空间,又是居住者“可看可玩”的场所。我们对沿运河边的住宅界面进行了细致地处理,使外墙、院墙、篱笆等围合出丰富的空间界面。

运河边上的院墙及小品
■ 结合海岸线空间,提供良好的步行环境,既拥有优美的路边风景,又具有宜人的道路尺度,同时也保证道路的通达性。

运河系统实景
第二居所的含义并不单纯是拥有的第二套房子,它更多的是赋予除第一居所之外的生活内涵。
第二居所不等于“居住”。弥补第一居所的空间遗憾或不足,它是对生活空间的有益延伸,如周末用作消磨时间的放松空间,闲暇时的朋友聚会或商务使用等。它并非生活基本所需,而是用来提供另一种全新的生活形态和居住体验,用来满足更高层次的精神需求及享受。

万科双月湾二期高层实景照片
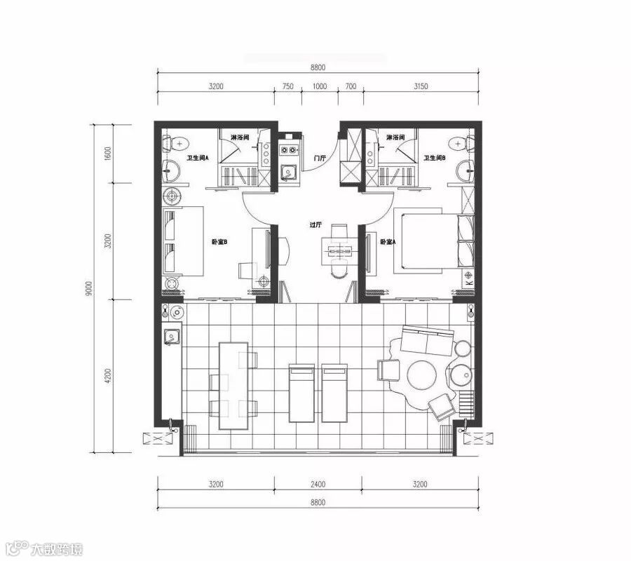
高层户型在一个8.8米X9米的方形空间内展开。为了更好的利用海景资源以及创造出令人振奋的空间,我们摒弃了传统的住宅户型做法。4.2米进深、8.8米面宽的超大阳台,融合客厅、餐厅、景观阳台的综合功能,为观景、家庭交流、就餐等活动提供宽敞的场所。

万科双月湾二期高层户型平面图

室内照片
在多层产品的设计中,由于规划路网将基地分割成为若干个50mX50m的BLOCK,因此如何有效的利用这50X50的土地成为我们的焦点问题;我们引入了mini别墅的概念取代了传统的别墅产品。就一个字——“小”,充分利用屋顶、庭院,使其更加实用,并富有活力,成为聚会、放映、休闲的泛客厅,实现“小产品+大效应”的效果。

别墅组团

实景照片
立面设计的灵感源于突尼斯蓝白小镇,我们提取了蓝白小镇当地的建筑形式与语言,在经过精心的雕琢后,通过现代的建筑语言呈现出来。


源于突尼斯蓝白小镇的立面设计

SUSTAINABLE可持续性
我们力求设计产品节能减排以体现对自然环境、建成环境和社会环境的尊重和呵护,并不断创造人际和谐、使用合理、运营持续的空间场所
MAINTAINABLE易维护性
我们确保设计产品坚固、耐用,方便维修、保养、升级、 更新
ARCHITECTURAL建筑专业性
我们倡导、坚守、发扬建筑学的真、善、美尊贵属性,创造性地继承和发展传统与时尚建筑文化
RATIONAL理性
我们的作品皆基于 对城市文脉、投资价值、用户需求的理性分析,以寻求项目开发价值的最大化
TECHNICAL技术性
我们关注并善用建筑工程与信息适配新技术,在设计信息化、建筑智能化、建筑产业化、绿色建筑等领域保持行业领先地位
设计团队:筑博设计股份有限公司
项目地点:广东 惠州
功 能:住宅
建筑高度:100m
总建筑面积:600000㎡
项目总负责人:杨晋
方案设计团队:周剑、游霞、龙浩、史硕、陈书敏、陈皓、周亚亮、苏永恒、黄凯西
施工图设计团队:刘勇智、林丽锋、刘勇、黄勇、吴万玲、吕若雯、李骞
结构设计团队:许丰、汤凯峰、陈立民、曹天德、蔡锦晨、史霄
给排水设计团队:陈尧堂、陈星蒨、刘会琴
电气设计团队:边志虎、毕铭月、詹晓波
暖通设计团队:杨九申、刘旭佳
开发商:深圳万科房地产有限公司
现场报道:
【现场报道 • 1 】筑博设计超高层系列:“恒丰贵阳中心——主塔”
【现场报道 • 2 】筑博设计医院系列——上海瑞金医院苏州分院
更多现场报道相关信息,敬请关注筑博设计!


