
城脉中心“久等了!深圳”的视频一经发布,引发网友瞩目。观者在惊叹“百万建模”的同时,也开始关注这个与众不同,即将竣工的超高层建筑。

城脉中心位于深圳罗湖,预计近期将迎来全面竣工。作为深圳的全新“封面建筑”,城脉中心不仅是全球摩天大楼top42,还被CTBUH认证为2022年世界建成第二高楼、中国建成最高楼。
城脉中心独特的外观及立面在周围建筑群中格外瞩目。棱角分明的轮廓之下,空间与结构的处理尤为复杂,筑博设计在施工图深化过程中,以多专业维度巧妙解决技术落地难题。

01 精巧布局,规范之下的出彩应用
施工图深化的重要一步,便是在符合本土规范的基础上精巧布局、优化空间,让方案的呈现更加完整。
筑博设计建筑团队充分利用室内透空指标规范,在相邻楼层之间增加了一个竖向上的元素,使空间得以开敞,实现沟通。

室内透空效果图 ©KPF
按照消防设计规则,建筑内部的核心筒应划定环形走道,直通消防疏散电梯。
而在原方案基础上,环形走道呈“合围”十字型,压制着四周办公空间的排布。我们通过调整核心筒内部布局,将环形走道修改为范围更小的长方形。这既满足消防部门与消防专家论证会的要求,又大大提升了办公空间的使用率。
(深化报建图)标准层“长方形”环形走道
这种环形走道的深化应用也在别处得以体现:例如云端会所与行政会馆连接处的45层,核心筒的结构布局发生重大的变化。
建筑团队通过调整核心筒内部楼梯及管井位置,使核心筒内部形成内环道,并与外部的消防环道结合。如此巧妙连接,让疏散空间更加灵活通达,提升了消防疏散距离的控制力度。

首层人行视角效果图 ©KPF
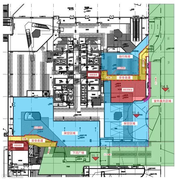
由于场地空间有限,消防控制室的布局成为难题。我们通过动线分析,将消防控制室设置于半地下层靠近外墙处贴临无盖区域,消隐的同时保证消防安全性。其出口的人行坡道则借用车行道,以围栏划分后,实现了人车分流。
(深化报建图)半地下层设计深化,有效利用空间通道
02 精细化分析,让结构更安全
根据结构顾问团队的方案,城脉中心主塔楼的抗侧力体系采用核心筒-巨型框架-外伸臂桁架。筑博设计结构团队则在基础的框架体系之上,增加环带桁架与伸臂桁架,以提升整体建筑的抗震与抗力性能。
城脉中心结构体系模型 ©筑博设计

城脉中心人行效果图 ©KPF
最终的“巨型框架”体系,便是由4道环带桁架将8个巨柱相连而构成,辅以63层的伸臂桁架。
由于8根钢混凝土“巨柱”随建筑的立面变化倾斜,并在底部各角合并为4根,令“巨柱”与核心筒的间距,从建筑中部向两端逐渐收缩,期间发生四次巨大转折。
外框巨柱俯视图 ©筑博设计
这种倾斜的特性,使巨柱承担着巨大的水平剪力以及重力荷载下的轴向力。因此,筑博设计结构团队综合受力分析,在19层、41层、52层及63层设置环带桁架,楼面设置钢梁给予水平支撑,共同承担巨柱产生的水平拉力,达到受力平衡。


20层环带桁架模型 ©筑博设计
在建筑上端,为加强高处的稳定性,团队在63层避难层设置伸臂桁架,以确保建筑满足中震弹性及大震不屈服的抗震性能目标。
而建筑顶部的更高处,是通透的塔冠。它承袭建筑整体流畅的线条,引人注目。

塔冠效果图 ©KPF
塔冠整体采用空间立体钢结构,支撑起屋面幕墙。为保持抗震阻尼器及高位消防水池的稳定,结构团队采用钢桁架楼面梁悬挑起顶部核心筒,这也为顶部通道提供了大采光空间,成为塔冠通透感的由来。
值得一提的是,筑博结构团队对各结构关键层的受力复杂的连接钢梁、弦杆、腹杆等结构关键构件,均进行精细化有限元分析,以确保达到强节点的抗震概念设计要求,保障建筑安全。
03 城脉中心的专属机电定制
机电团队对于城脉中心的贡献,不动声色地体现在细节处。
首先,机电与消防关乎生命安全保障。火灾发生时,一般项目中会采用机械加压送风,将室外空气传入消防疏散楼梯间以保持空气清洁,但遇到输入口处于烟气扩散区则极度危险。
鉴于城脉中心超高的建筑高度,为避免极端情况出现,筑博设计机电团队采取至少从避难层两个不同面取风的加压设备,并在取风口设置烟感警报。当有烟气进入取风口时,关闭此取风点管线上的阀门,可以有效阻止烟气误入疏散通道,提高加压送风系统的安全可靠性。

52F避难层消防加压风管位置示意 ©筑博设计
此外,为确保最初的机电方案落地,团队在满足使用功能的同时,尽可能降低对建筑造型及效果的影响,助力建筑方案完美落地。
为保证首层广场空间的完整性,展现最佳景观效果,团队利用地下室转井确保首层广场范围内无风井百叶。首层架空休闲空间的百叶更是隐藏在雨棚后及建筑立面阴角处。



例如,采用的常高压消防系统,能够始终满足水灭火设施所需的工作压力和流量,火灾时可以直接启泵加压,无需反应时间;地上水泵房设备墙体加强隔声处理,避免泵组运行的噪声对住户环境产生不良影响;采用三路独立10KV供电,电源分别引自城市不同的区域变电站以保障供电的可靠性……

办公标准层机电管线综合排布图 ©筑博设计
城脉中心由行业各大顶尖设计团队协力完成,筑博设计团队自项目规划阶段开始直至竣工,始终与各阶段的顾问团队保持着紧密合作。
04 城脉中心设计落地的幕后故事
温震阳
集团副总裁
城脉建筑设计总经理
李斌
城脉建筑设计
陈伟
城脉建筑设计
城脉中心项目中,与各顶尖设计团队配合的感受如何?
温震阳
规划阶段我们与蕾奥合作,从城市设计的角度,尝试多种功能的组合,争取更高的容积率;
方案前期阶段协助业主在产品定位及建筑效果方面进行多方向的探索研究,为后期方案落定奠定了坚实的基础;
方案阶段,与KPF、TT、ALT等国际知名设计团队合作,对方案的可实施性进行科学的分析评估、对合规性进行严格的把关并提出建设性的意见;
施工图阶段,在通力电梯、江河幕墙、仲量联行以及中建三局等业内龙头企业的协作下,对建筑方案进行优化、深化、细化,为城脉中心项目绚丽的建筑效果能超高完成度的落地保驾护航。
在与各团队合作的过程中,能够感受到他们对建筑的热爱与激情,敬佩他们天马行空的想象力与创造力的同时也被他们高度的专业性与敬业精神所感染,筑博设计团队也始终坚守设计的底线,如同大海任鱼游而大海始终坚守自己的边界。
筑博设计的结构团队做的主要工作就是“串联”,从初步设想到丰富完善、达到落地,串起整个设计过程。
比如我们与TT配合结构深化,能看到他们对于结构系统的熟练掌握与强大的分析能力,这是应该向他们学习的方向。
李斌
陈伟
顶尖设计团队对方案把控力较强,更加注重外在效果、设计中的大方向。另外,他们对流程的控制很好,设计过程中的问题都可追溯,这些值得我们学习借鉴。
筑博设计将团队的设想变为现实,将方案变为施工图,其中有大量的工作要做,比如在设计中如何正确理解和执行规范标准等等。
温震阳
城脉中心的建设是一个漫长的过程,在这个漫长过程中始终有一点是贯彻其中的,那就是业主对卓越的不懈努力,无论是建筑的外观表现,还是内部空间的丰富有趣,甚至是功能的变化多样,无一不透露出业主的极致追求,用“至臻之品”给城脉中心贴上标签毫不为过。
从方案到如今竣工,甲方城脉控股、TT、筑博团队配合并尝试了很多结构可行的方案。
目前来看最吸引人的就是所采用的这个简洁且受力均衡的结构体系,它为建筑内部空间的景观视野及超高大堂效果贡献颇多。
李斌


项目地点 | 广东 深圳
预计建成时间 | 2022年底
项目业主 | 城脉中心 citymark centre
结构团队 | 李斌、蒋传浩、何宝华、许博
给排水团队 | 邵秀丽、曾骞、赵华辛、聂嘉韬、魏朝阳
暖通团队 | 徐峥、吴建华、陈崇一、左文昭、于鹏飞、张伟
电气团队 | 陈伟、朱勇彪、林先林、乐观、李学洲、李奥、谢基伟
合作单位 | 方案主创/KPF 景观设计/AECOM 机电顾问/WSP 结构设计顾问/TT 幕墙设计顾问/ALT 照明设计顾问/LPA 风工程设计顾问/RWDI 幕墙管理顾问/CCAT同创金泰 声学设计顾问/SM&W声美华 室内设计顾问/CTG&SCDA&CCD 工程总承包/中建三局 幕墙承包商/JANGHO江河 物业管理/JLL仲量联行

