
很多设计师也包括很多设计师助理
绘图员画了很多的施工图
可是依旧还是画不好
效率不高,错误频出
只得加班熬夜日夜奋斗
还掉头发! 掉头发! 掉头发

想要提高自己的施工图水平
首先要明白一套优秀成熟的施工图
应具备哪些知识点

第一部分:图纸系统
一套成熟的施工图肯定会有
一套完善的图纸目录
以及完整的图纸
例如图纸封面、图纸目录、图纸说明
材料表、门表、平面图、立面图
节点图等等

第二部分:图纸信息
图纸是否清晰的表达结构、机电
暖通、灯光、开关、冷热水
天花吊顶样式、地面材料等

第二部分:图面问题
图纸的打印出图比例、文字大小、标注样式是否合理
图纸的排版是否规范,线性设置是否合理
图纸内部的填充样式是否美观等等

所以一套既美观有成熟的施工图
需要设计师掌握非常多的专业知识
……
在了解了成熟施工图应具备的知识后
今天
小编也给大家带来了一些福利

《 设计师专用CAD填充图案专辑 》
——室内设计师必备资料——

本套资料包含180种CAD图案填充
主要分为三大类
平面|立面|剖面
雕花|不锈钢|镜面高光|镜子玻璃|软包
马赛克|毛石|木饰面|墙纸|石材|熟料
地面拼花|金银箔|地毯|木地板|屋顶
钢筋|钢板|木质剖面|其他
如何获取本套学习资料

扫描以上二维码即刻获取资料
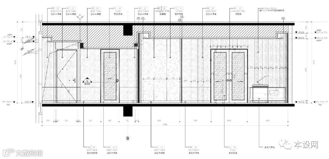
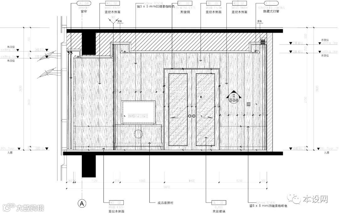
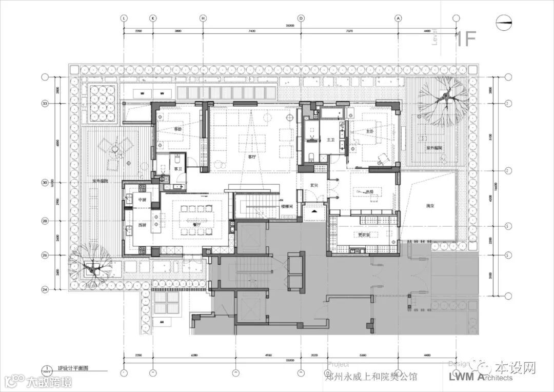
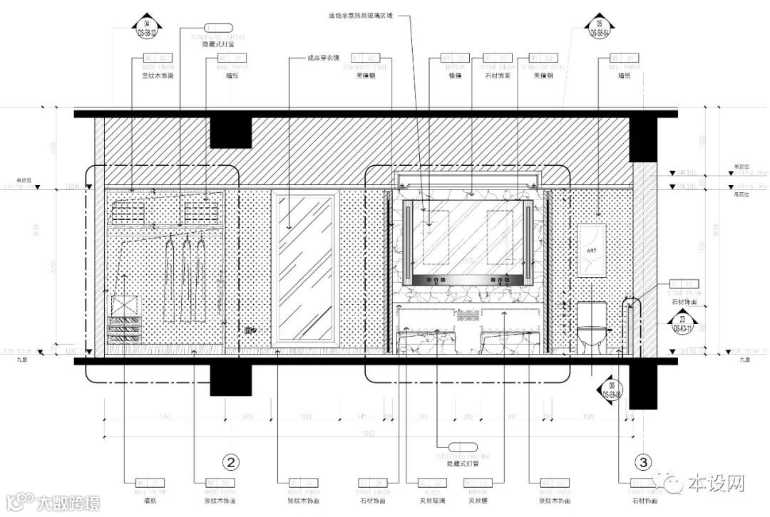
部分内容截图










如何购买获取

扫描以上二维码即刻拥有
- 本设网 -
免责声明:
以上图片及资料内容来源于网络,由我方整理,版权归原作者及其公司所有;
本资料仅供学习研究之用,不得用作于商业用途,若此图库侵犯到您的权益,请与我们联系删除;
本文章版权归本公众号所有,未经同意不得随意转载 ,若恶意侵权将追究其法律责任。
—更多精品内容—










