
“户型优化知识小课堂”
分享老师:尼古拉斯·【三】
课程知识
三代人的复式楼功能布局
▼
中间有视频讲解

▲
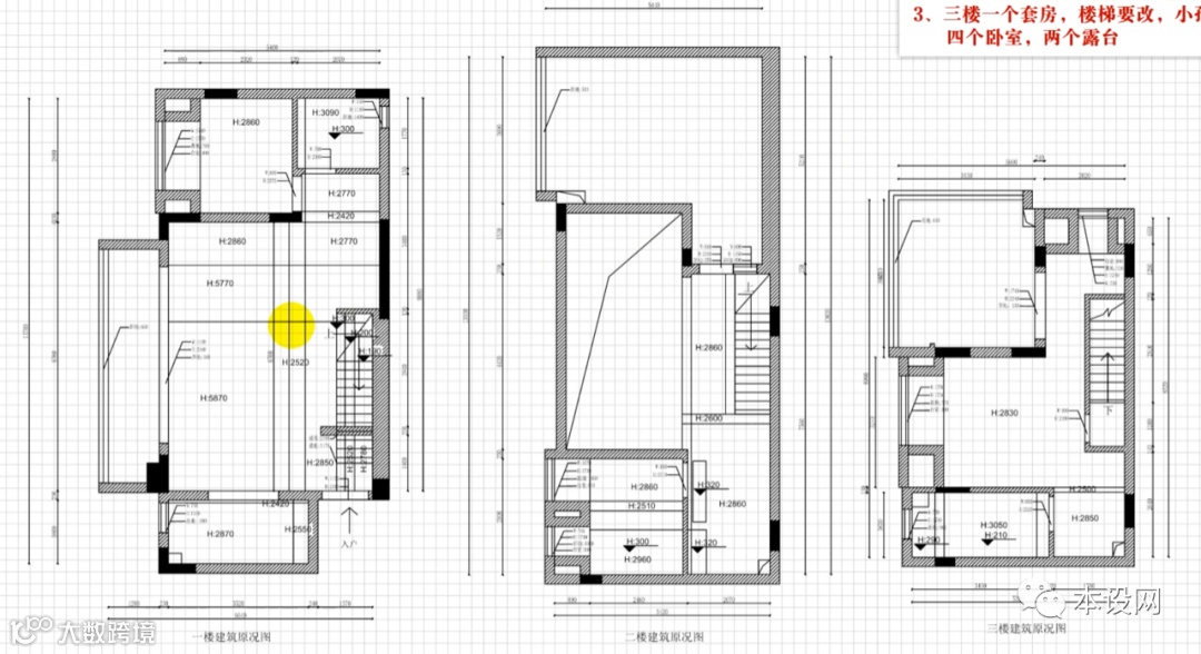
原始户型图
设计要求
面积:186㎡
1、常住人口四人,要装中央空调和地暖
2、需要一个老人房,但是老人不chang 住,景观阳台打通
生活阳台保留,还有两个露台,二四楼要两个套房
3、三楼一个套房,楼梯要改,小孩一儿一女
四个卧室,两个露台

▲
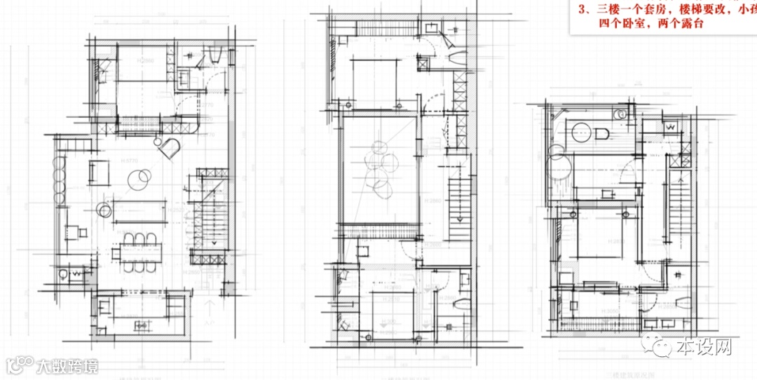
优化后的手绘方案

▼
视频讲解
室内户型优化课程介绍
扫码预约课程
可领取课程优惠券

▲
扫码免费预约直播课




本设网
“户型优化知识小课堂”
分享老师:尼古拉斯·【三】
课程知识
三代人的复式楼功能布局
▼
中间有视频讲解

▲
原始户型图
设计要求
面积:186㎡
1、常住人口四人,要装中央空调和地暖
2、需要一个老人房,但是老人不chang 住,景观阳台打通
生活阳台保留,还有两个露台,二四楼要两个套房
3、三楼一个套房,楼梯要改,小孩一儿一女
四个卧室,两个露台

▲
优化后的手绘方案

▼
视频讲解
室内户型优化课程介绍
扫码预约课程
可领取课程优惠券

▲
扫码免费预约直播课



