
设计师如何提升小户型方案优化能力
▼
小户型空间优化策略
一、灵动平面
小户型平面布局设计不合理时
需打破原有空间规划
对平面进行重组,重新划分功能
找出更重要的功能区域,并放大空间感
享受超越实际面积的空间感受

可将生活方式作为策略切入点
对更重要、更常用的功能区域做放大处理
比如客餐厅、厨房、书房等区域
融入生活形态的空间规划能让舒适度翻倍

二、多变空间
多变空间是指同一个空间或结构可以在无需外界物理作用
就可以同时适应不同的功能
而不是以单一功能存在的原则
可根据自身需求定义空间功能属性
同一空间在不同时间的功能转变灵活可变的空间形态
体现同空间的功能重叠,提高了空间利用率
由于该复合设计不需要改变建筑形态及结构本身
所以其实用性很强

三、空间优化
通过空间功能借用
小户型利用原始内阳台、储物间等灰色空间
进行改造,弥补原始户型缺陷
下图原始户型客厅过小,无餐厅空间
针对该具体问题,巧妙借用原始户型内只有晾衣功能的阳台区域
扩大原客厅局促面积,增加餐厅功能
讲究功能模块尺寸合理性

四、功能优化
针对空间系统问题进行功能优化
很多小户型因空间尺寸原因导致空间布局不合理
可根据功能及个性需求进行调整
达到应变性、灵活性特性
也同样提示住宅建筑设计之初
应为户型使用者设定后期多样模式,以满足适应性需求

五、多功能家具
功能多元化的家具产品设计
使用方式及尺寸是关键
多功能家具实践中,应全面考虑家具功能使用方式
例将餐桌当做书桌使用时,高度要设计为75—80cm
桌面尺寸宽度不小于65cm
可以设计为中岛延伸餐桌、L型大桌等形式
由于不同时段家具功能不同
结合设计需具有收纳功能
避免物品堆放桌面过多难以使用
为便利使用,还需考虑充电功能

小户型在设计上
重视收纳、重视采光、重视配色,重视家具
但往往会忽略整体的动线问题
所以不要用多余的家具、隔断等物品扰乱动线
要以平时生活习惯为基准再设计
……
今天
小编给大家精心准备了这份资料
《一居室平面方案优化思路解析》
提升大家解决小户型的方案设计能力

10套一居室平面方案优化案例解析
含CAD源文件
课程时长374.44分钟
原价:299元
限时优惠价:99元
如何购买获取

扫描以上二维码即刻获取资料
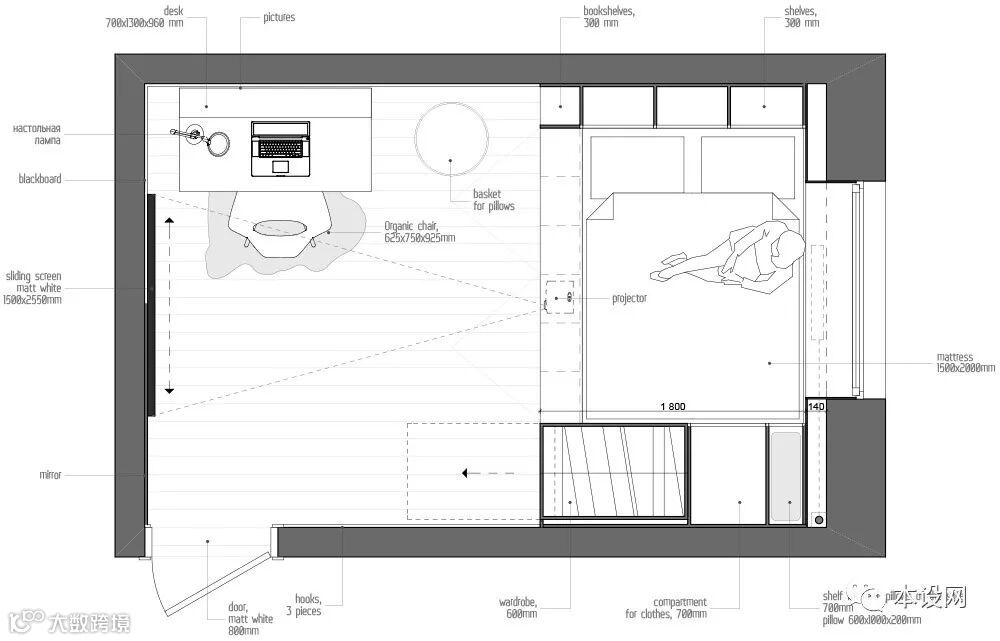
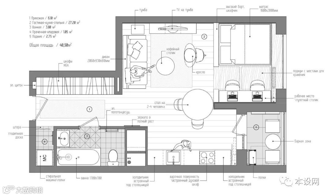
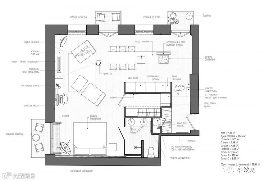
部分平面方案预览

如何购买获取

扫描以上二维码即刻获取资料
—更多精品内容—









