由本设教育主办的【室内施工图深化特训营】线下课程,在网红城市长沙开课。多多洛老师主讲,零基础手把手教你掌握一线公司施工图标准、材料工艺、图纸深化、灯光应用等专业知识。

室内设计领域知识体系繁杂,对于设计师个人来说,要想弄懂所有问题是一个十分艰难的工程量,特别是对于刚入社会的大学生而言,他们遇到问题的时候,常常陷入十分尴尬的局面:
▼
无人可问,或是问了也得不到理想的答案;
没有目标,不知何为标准,也没人给与及时的反馈,对与否,弄没弄懂自己也不清楚;
没有持之以恒的整理归纳,或者没有一套行之有效的思考方式。

▼
你们从中到底能学习到多少?看完后能记住多少?
除了满足了视觉,有人真正用心去剖析里面的硬货吗?
你有真正思考过里面是何种材料做的?它们的施工工艺又是怎样?你有真正关心过这个项目是怎么落地的?整个项目又是怎么推进的?
除了外在的形势,整个空间里的“经络血脉”、水、电、风,你有关心过吗?或者说一个空间真正要具有生命,除了造型,你还有其他概念吗?
创意十分重要,但设计不等同于意淫,它是需要技术与艺术的结合,是要讲落地的。
室内设计师是靠专业度吃饭,如果你的客户比你还专业,你情何以堪?

本设教育深耕于室内设计行业多年,我们一直坚持在做一件事,就是专注于培养学员们的设计思维及项目实战能力,做教育我们是认真的!
我们在室内设计领域积累大量的专业知识,并且从事教育行业数年,我们希望能为广大设计师做点干货。我们希望为每个设计师系统的归纳梳理出设计中的知识点,当你遇到一个个具体的“怎么办”时,可以直接找到解决方案并且知根知底,通俗易懂,即学即用。

依据我们多年的实战经验,在根据大量学员反馈的问题,我们梳理了室内设计行业在实际工作中会遇到的问题以及对应的知识点,然后将这些知识归纳整理并推出了《本设-施工图深化设计》实体课程,旨在服务广大室内设计师,帮助大家成为行业最优秀的人才!
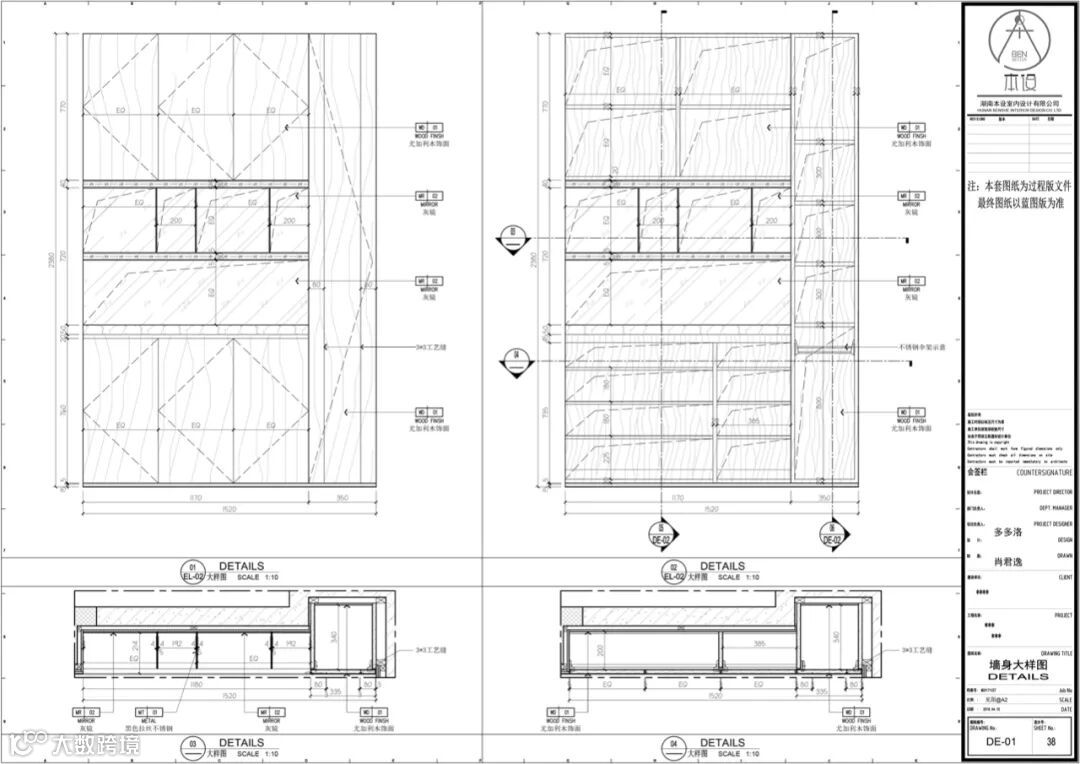
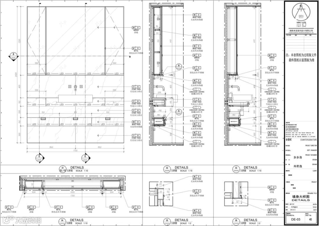
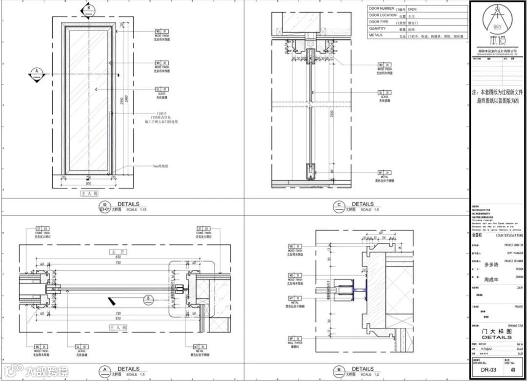
本次集训营共28天,内容涵盖CAD绘图中图层线型布局等基础讲解,同时包括全套国际标准化装饰施工图纸绘制,同时包含装饰材料的分类和收口工艺及定制装饰材料下单,公装空间功能解析及深化细节把控。从新手小白快速逆袭成专业深化设计师,精准把控项目从设计方案到落地效果。
如何才能掌握室内施工工艺?

郭征(网名:多多洛)
本设室内深化设计高级讲师
本设教育联合创始人
深圳象限装饰设计有限公司联合创始人
曾就职于HY、YANG、CCD等国际酒店设计单位,9年施工图深化相关工作经验。参与完成多个五星级酒店、售楼部、办公写字楼、会所、展厅、餐饮、商业中心的施工图深化设计、工地现场设计对接以及地产公司设计管理工作。
《往期线下施工现场考察》
《往期线下酒店现场考察》
KEYSTONE
课程时间
第六期:2021.12.01-2021.12.28
课程内容




选择正确的机构 善待每一份付出












实体学员工地考察照片
▼






实体学员酒店实地考察照片
▼


多哥给学员们从门口讲到卫生间,从洗手台上说到洗手台底,事无巨细,学员们也听的津津有味。


淋浴间的踢脚线和地漏也不能放过

圆角的收边与材质的拼接

总结和答疑
▼




▲部分学员照片墙▲
课程时间
第六期:2021年12月01日—2021年12月28日
上课地点
中国-湖南-长沙
(食宿协助安排)
课程费用
高级班原价:5500元 团购价:4500元
套餐一:《室内方案特训营》+《7 天施工深化总监班》
套餐二:《室内方案特训营》+《室内施工深化特训营》
咨询电话
18229814127(静静)
名额有限,招满即止
扫码联系助教协助拼团
课程详情咨询
请添加微信


