平面图优化思路 | Plan optimization
室内面积:106㎡
居住人员:3人
方案优化:殷永贵「壹墨DESIGN」
这间套房的原始屋况很特别,整个空间都是开敞的,并没有隔出独立的区域来,只能通过顶上的梁来区分空间格局,不过这样的户型也更有利于设计师的发挥。对于一家三口而言,还是需要先隔出两个独立的卧室区域,以保证业主基本需求,夫妻俩也希望有个独立的书房,能够用来学习、办公和辅导孩子完成家庭作业,所以完善空间功能分区是设计关键。

△
原始户型图

△
问题一:进门是一个超大的阳台,采光虽好,空间却显得浪费。

△
问题二:公共空间虽然很通透,但是缺乏餐厅、厨房等基本空间。

△
问题三:由于原空间并没有隔出卧室区域,需要重新规划出合理的动线。

△
问题四:两间卫浴同样碍于面积问题,无法满足业主的基本需求。

△
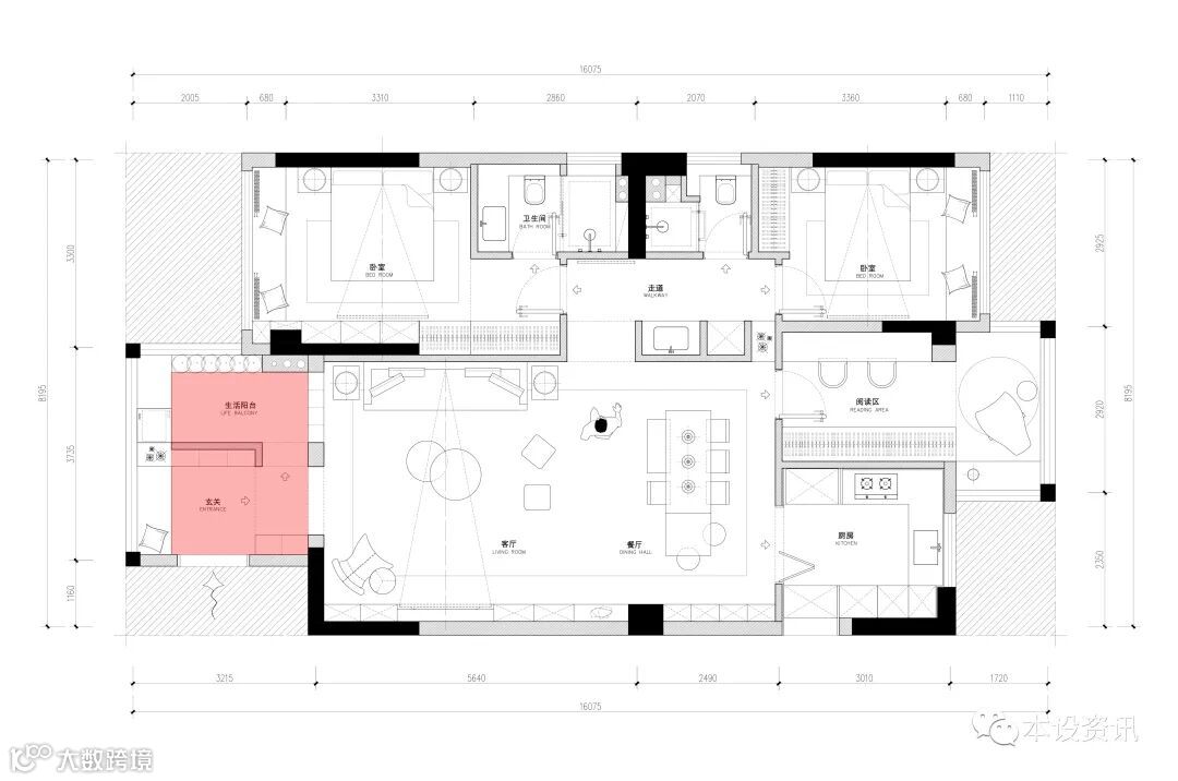
破解一:增加一墙,扩展空间功能>入户花园采取整合功能方式重新调配格局,划分出两个新的功能区,虽然降低原本空间的通透性,却加强了空间整体的实用性。

△
破解二:增加墙体,重新确定空间功能>压缩原有的公共区域,隔出厨房与书房空间,还依然保留一个大大通厅,而且每个区域的使用功能更加明确。

△
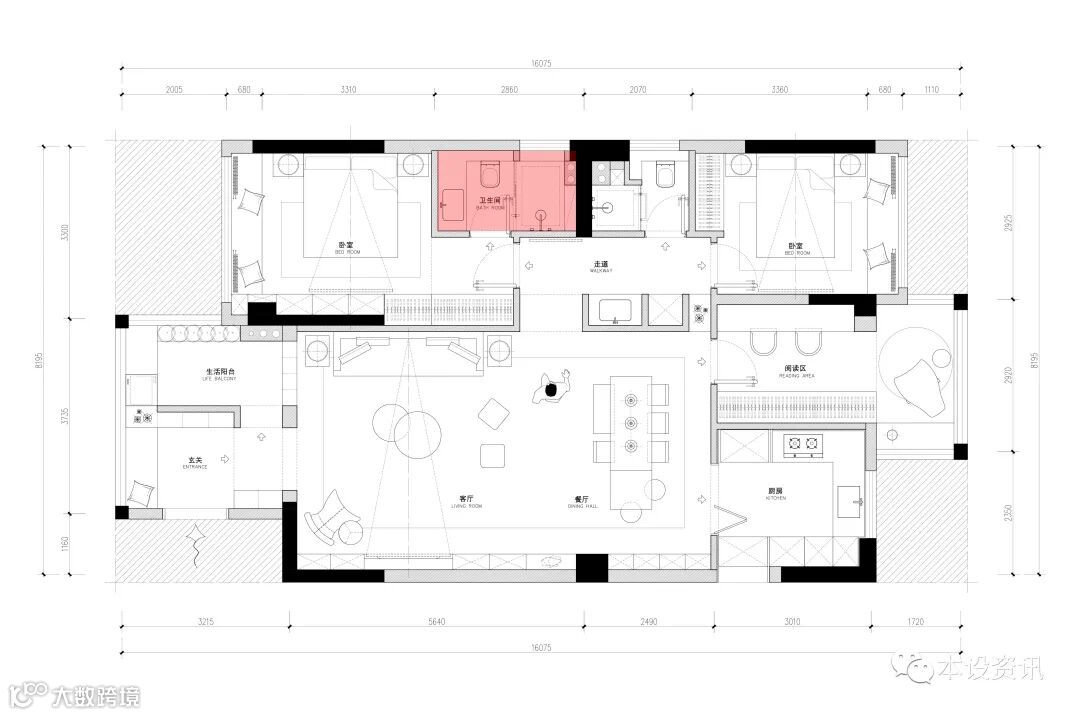
破解三:横向卫浴,享有舒适尺度>将原有主浴进行横向加长,既能提升空间使用舒适性,又能拥有完善的干湿分离配置,而且还能预留出主卧的过道动线。

△
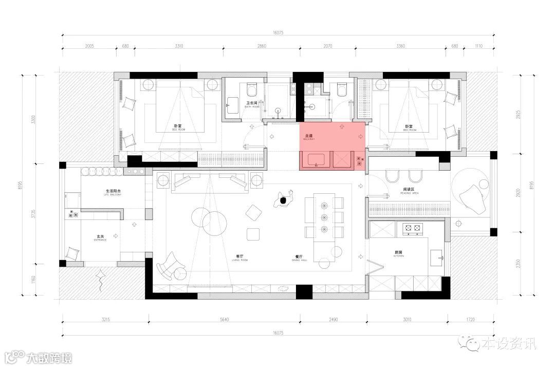
破解四:洗手台外置,隔出流畅动线>将公卫的洗手台放置外面,即形成餐厅与卫浴之间的隔断,又能增强卧室的私密性,同时动线也更为合理流畅,也多了更实用的功能。

△
单色彩平表现






