平面图优化思路 | Plan optimization
室内面积:134㎡
居住人员:我家有个小公主
方案优化:彭波「尼古拉斯·三哥」
这个房子平面布局有很多惊喜,除客厅空间是很开敞外,其它空间相对较小,且采光相对较差,没有独立的就餐空间。由于此房是业主为女儿结婚准备的婚房,且不需要过多的卧室空间,这样设计师就有了更大的发挥空间。对于新婚夫妻而言,主卧的舒适性及品质感是我们需要优先考虑的;同时客厅、餐厅空间品质及互动性一定要好。要满足入户玄关的功能性和仪式感。所以重新进行空间的板块划分,完善空间功能是设计的关键。

△
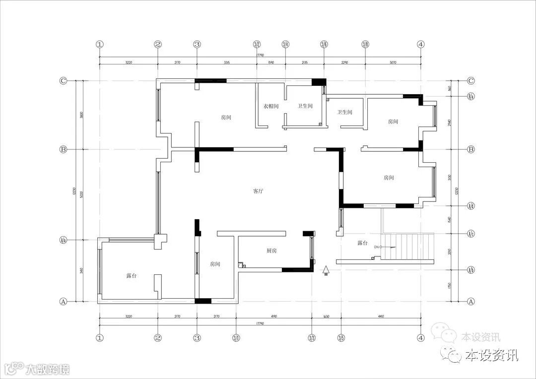
原始户型图

△
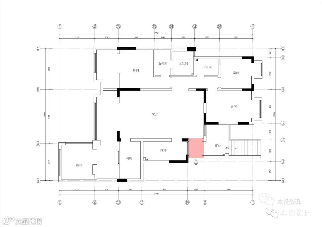
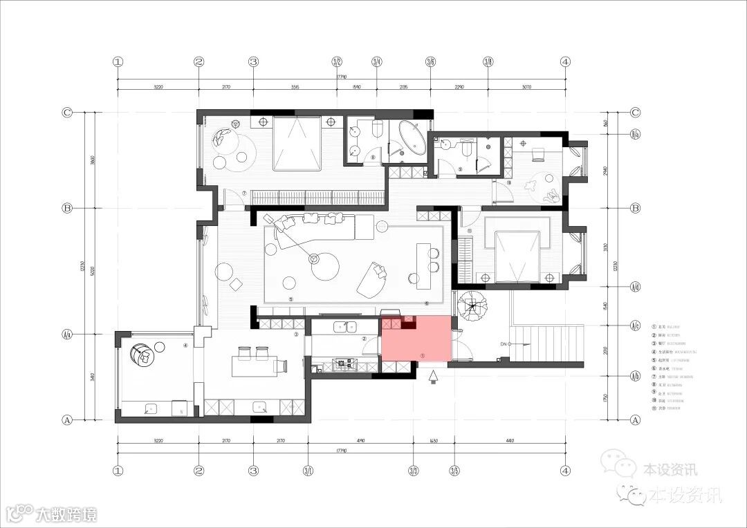
问题一:入户后是一个相对狭小的厅,且是两个入口的交汇处,动线较多,空间采光相对较好,但是缺少储物空间。
P.01

△
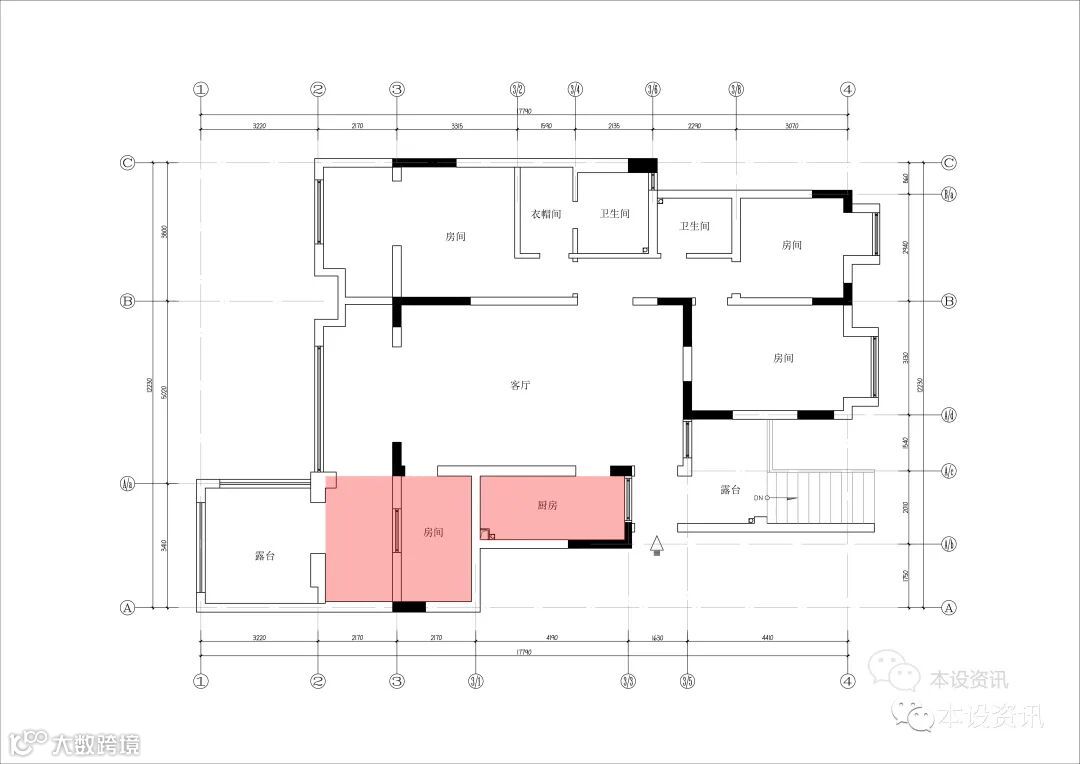
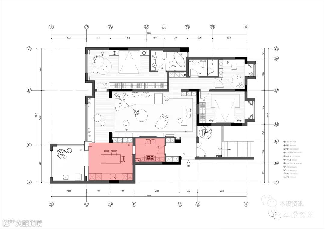
问题二:厨房空间小,且采光不好;厨房左侧两空间都比较小,使用性不好。
P.02

△
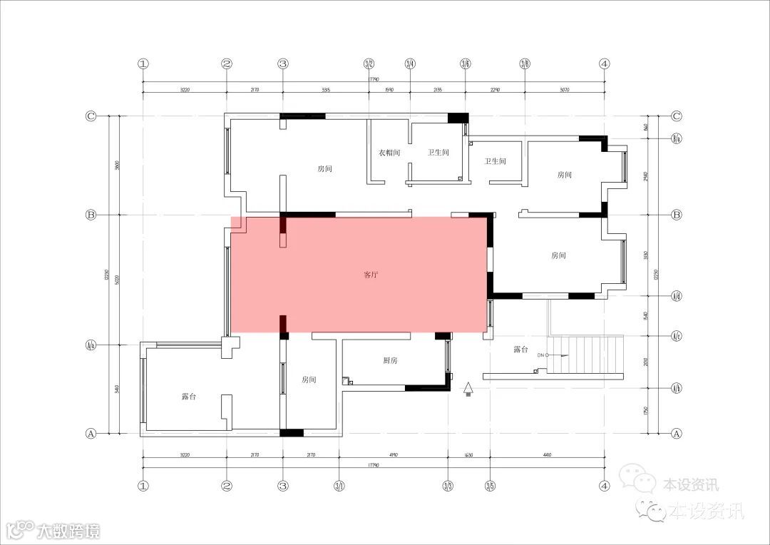
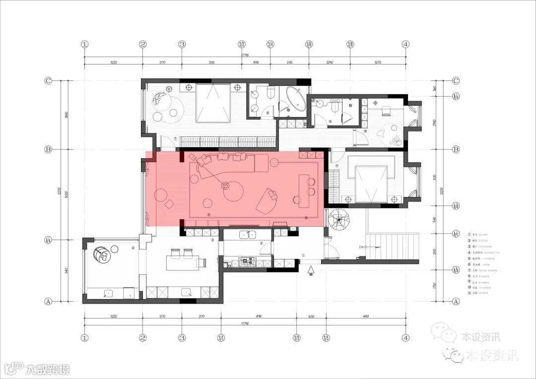
问题三:公共空间开敞,采光充足,但是缺少餐厅空间。
P.03

△
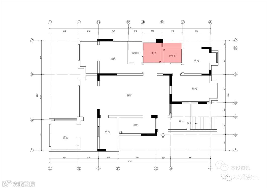
问题四:公共卫浴空间由于面积问题,无法满足使用者的基本需求。主卧卫浴空间同样由于面积问题,无法满足使用者的增值需求。
P.04

△
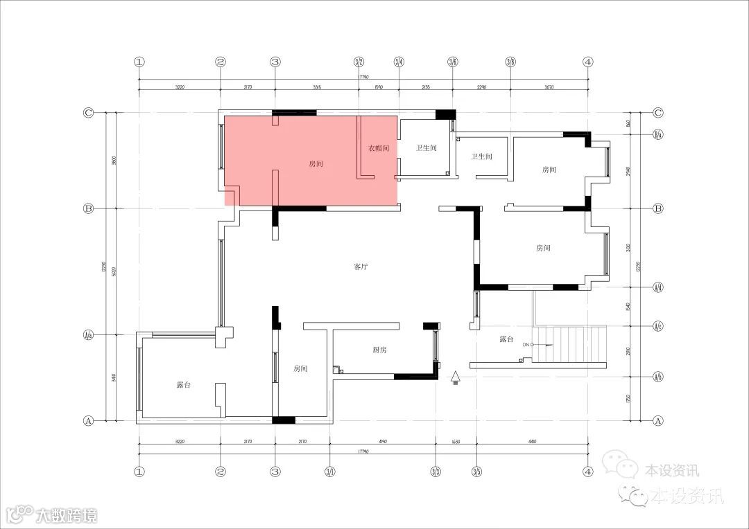
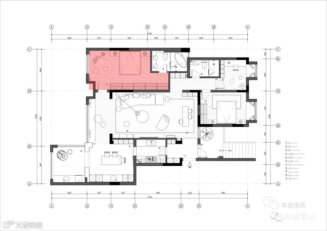
问题五:主卧空间虽然拥有独立的衣帽间,但是由于空间过小,储物空间明显不足。且睡眠空间品质不足。
P.05

△
手绘方案
P.06

△
破解一:借厨房空间,扩展空间功能,设置储物空间。虽然占用了厨房空间,但门厅的整体实用性加强了。
P.07

△
破解二:重新界定空间,分解空间功能,设置中西厨,同时拥有了独立的餐厅空间。
P.08

△
破解三:重新进行空间的板块划分,找出更多的空间可能。休闲、交流、观影、品茗,即保证了空间的功能和空间的开阔,又增加了空间的使用功能。
P.09

△
破解四:卫生间要充分发挥建筑原始形体的组合关系 比如长方形分数量的段落 正方形建立周边式布局。卫浴空间横向加长,满足了基本的卫浴需求,同时满足了使用者的品质需求。
P.10

△
破解四:调整主卧的进入动线,增加了大量的储物空间,且增强了空间的私密性。
P.11
如果把衣服比作女人的战袍,那么衣柜就是女人最大的装备库。此案的设计过程中,设计师着重思考了新婚业主的使用需求,增加了主卧的空间储存功能,及主卫的品质感。对于公共空间,设计师多发点时间思考空间充足的弹性,舍弃不必要的空间,扩大了空间功能,同时将空间开放或半开放,增强空间的交流与互动。通过软装及立面的延申,让空间更具趣味及层次感。

△
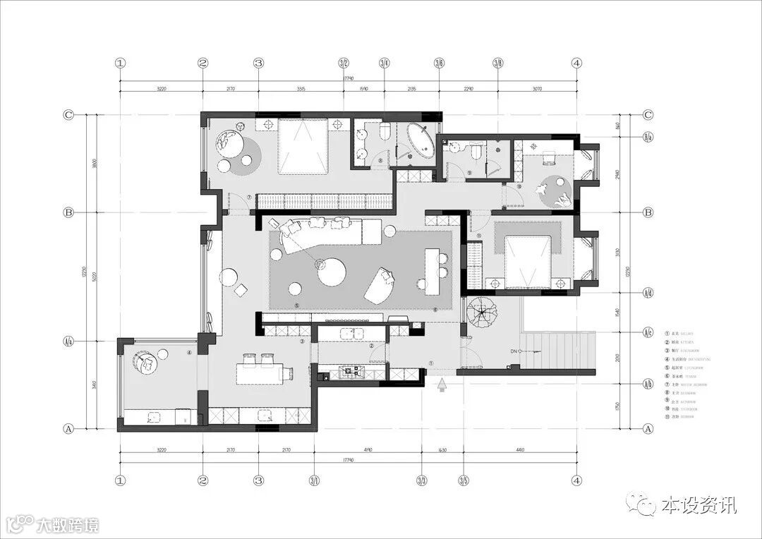
改造后的平面方案





