平面图优化思路 | Plan optimization
室内面积:78㎡
居住人员:3人
方案优化:殷永贵「壹墨DESIGN」
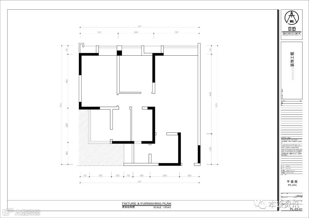
原户型整体比较周正,但是受内部的承重墙的影响,整个户型很难做大的改动,只能在一些细节上和空间尺度上进行调整,尽量满足空间整体的使用舒适性。对于三口之家来说的话,如果将房间都规划成卧室肯定比较浪费,无法提升空间整体的品质感,而且主卧的功能也比较单一,舒适度不足。

△
原始户型图

△
问题一:如果这个空间作为卧室来使用的话,虽然采光是这个空间最大的优点,但也是这个空间最大问题点,因为无法合理的安排床的摆放,导致空间实际很不好利用。
P.01

△
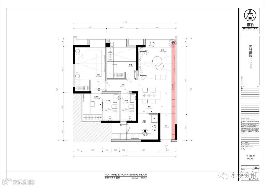
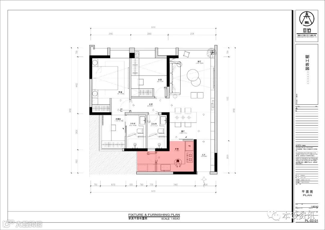
问题二:厨房的空间太小,操作台面不足,对于喜欢料理的屋主来说并不方便。
P.02

△
破解一:满墙衣柜,提升收纳◄从入户到客厅做满墙的收纳柜,日后可以将家里小孩的玩具、零食以及其他小东西收纳起来,这样能得到一个非常舒适整洁的居家环境。
P.03

△
破解二:合并露台,提升空间◄将原本放置空调外机的位置与生活阳台合并进来,在把阳台外移,扩大厨房空间,L形厨具与冰箱呈完美的三角动线,做饭时更舒适、实用。
P.04

△
破解三:单房变套房,空间更舒适◄将原本的两房合并成一个房间,强化功能。整个房间本身只有一个卫浴,现在可以在主卧增加一个新的卫浴,提高生活舒适度,同时利用卫浴相邻关系解决排水问题。
P.05


△
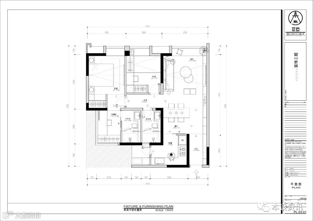
改造后的平面方案
想要提升自身的平面方案优化能力
请扫描下方二维码免费获取试听课程
让自己不要错过每一节精彩内容





