平面图优化思路 | Plan optimization
室内面积:67.6㎡
居住人员:三代同堂
方案优化:彭波「尼古拉斯·三哥」
这个房子平面布局有很多惊喜,得房率很高,但个别空间相对较小,且没有客厅和就餐空间,同时入口处的采光较差。由于此房业主要求保有三个卧室空间,和一个多功能的书房,这样设计师就有了更大的发挥空间。对于家庭而言,主卧的功能性及品质感是我们需要优先考虑的;同时客厅、餐厅空间品质及互动性一定要好。要满足入户玄关的功能性和仪式感。所以重新进行空间的板块划分,完善空间功能是设计的关键。

△
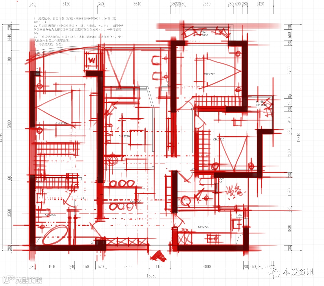
原始户型图

△
问题一:没有入户门厅,缺少储物空间,此处空间过于狭窄,无法兼顾门厅、餐厅及会客空间。
P.01

△
问题二:此处为三个入口及走廊动线的交汇处,且采光不好。卧室门洞正对走廊入口,卧室空间的私密性不好。
P.02

△
问题三:此处空间的设置严重影响内部空间的采光。
P.03

问题四:此处空间较宽敞且采光较好,考虑业主要求及整体空间布局而言,此处设置为阳台空间过于浪费。
P.04

问题五:主卫空间尺寸较小,公卫离次卧室较远,且此处三个入口动线的交汇处,空间过于拥挤。
P.05

△
手绘方案
P.06

△
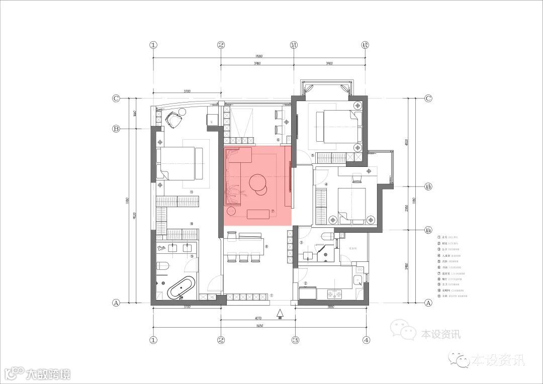
破解一:采用周边式布局,沿墙边设置鞋帽柜及酒水柜。通过改变主卧动线,为就餐提供了充足空间。
P.07

△
破解二:重新规划儿童房的入口,私密性更好,且动线更合理。
P.08

△
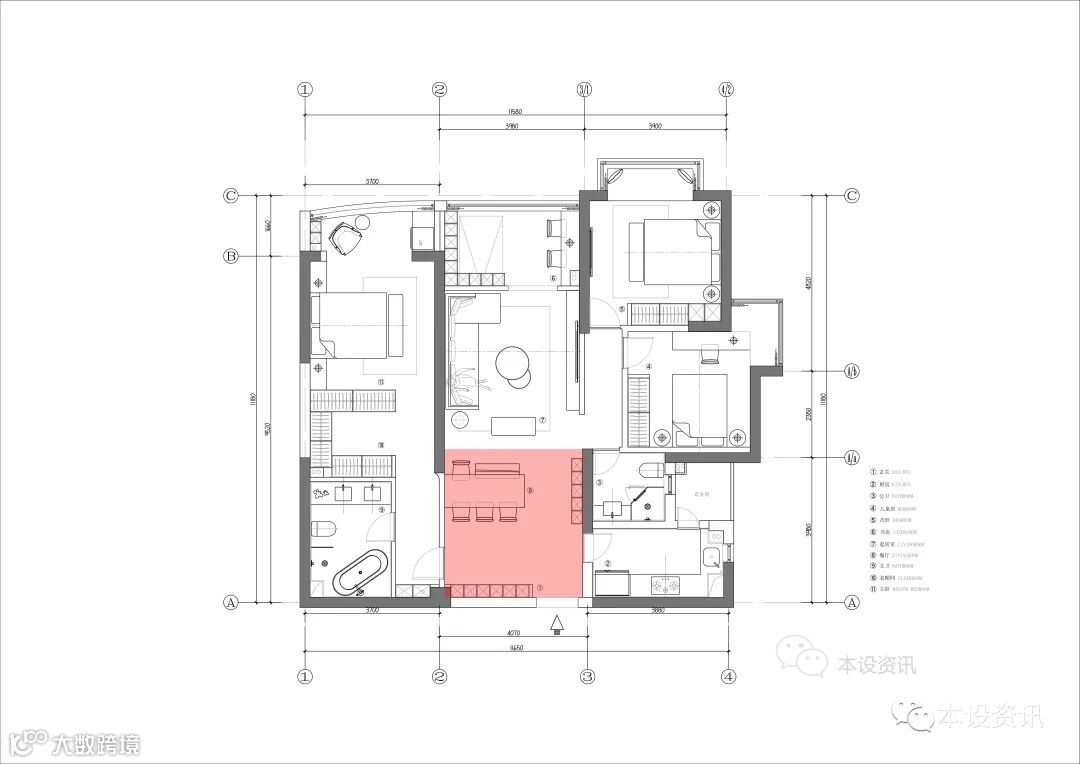
破解三:取消原有的封闭的卧室空间,设置为开放的客厅空间,使整体空间功能更完整,同时引进自然光,客厅、餐厅及门厅拥有自然的采光。
P.09

△
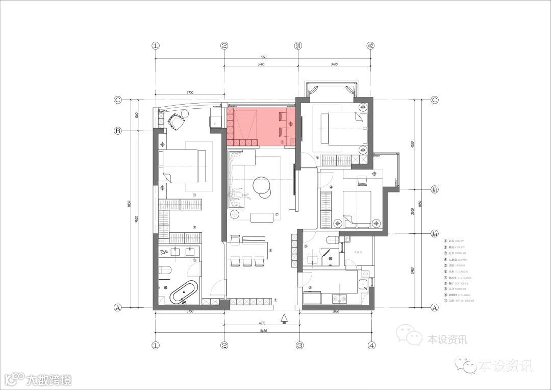
破解四:此阳台处可设置为景观阳台、休闲区、家政区,由于业主的要求此处设置为书房兼顾临时客房使用。且设置成可开可合空间,采用通透的玻璃分隔空间,不影响室内采光。
P.10

△
破解四:调整公卫的位置,动线更合理,使用更方便。主卧卫生间更开敞,功能齐全,主卧设置衣帽间,提高主卧空间的品质。
P.11

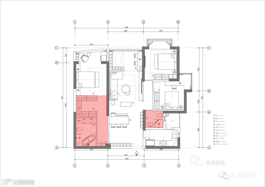
△
改造后的平面方案
想要提升自身的平面方案优化能力
请扫描下方二维码免费获取试听课程
让自己不要错过每一节精彩内容






