
小户型室内装修设计的常用方法
《一》
合理的平面布局规划
因为小户型的房屋面积比较小
必须要先进行合理的整体规划
使得各个区域的功能恰当配合又相互隔离
保证每个功能的完整化而又不会使得产生局促紧迫感

《二》
空间利用立体化
小户型的房屋面积有限
所以必须要更加合理的利用空间资源
使空间达到立体化多功能的使用
强调空间复合性
既在不同时段赋予同一空间不同的使用功能

《三》
选择多功能型的家具
因小户型空间有限
在家具的选择上既要满足使用功能
又要具备一定收纳功能
这样才能更灵活的利用空间

《四》
选择柔和亮丽的色彩
不同的颜色会给人不同感受
鲜艳明亮的色彩可以给人以视觉开阔
心情愉快的感觉
高明度色彩可以使视觉扩大
低明度的色彩能使视觉缩小

虽然小户型的空间有限
只要做好小户型设计
那将会打造一个温馨个性而又时尚的家
……
今天
小编给大家精心准备了这份资料
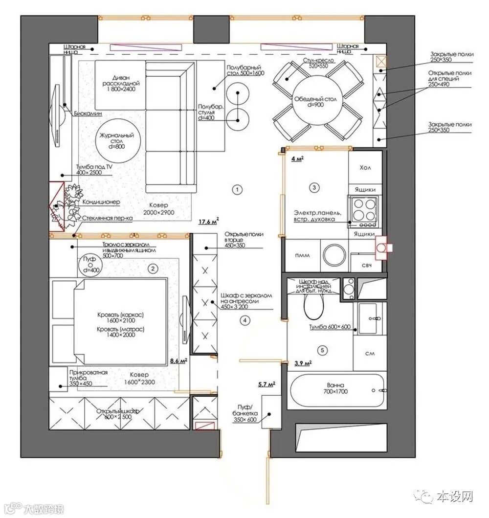
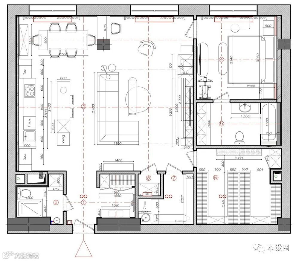
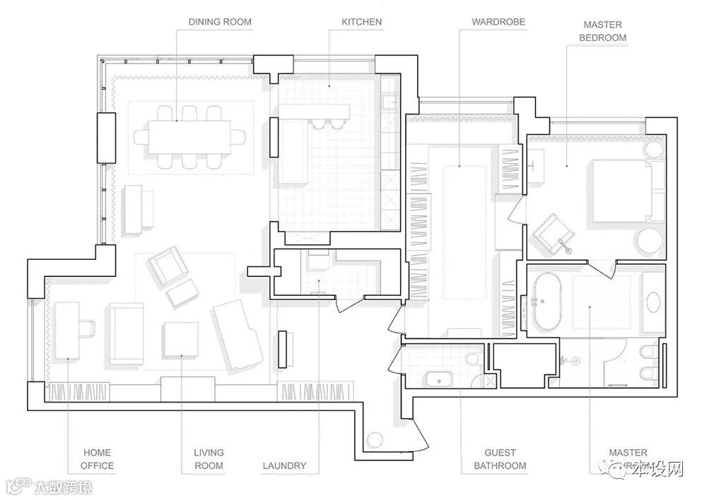
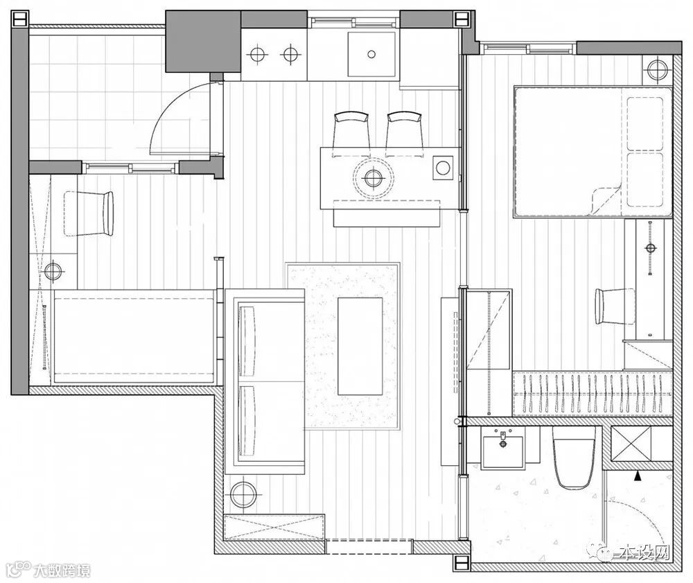
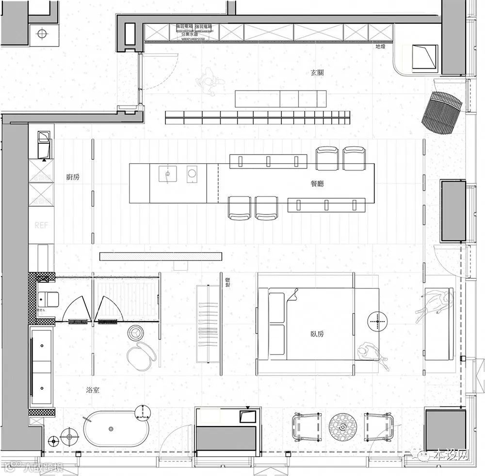
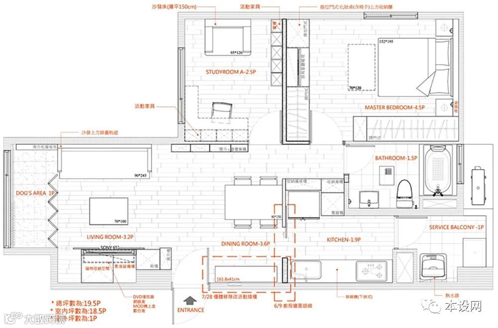
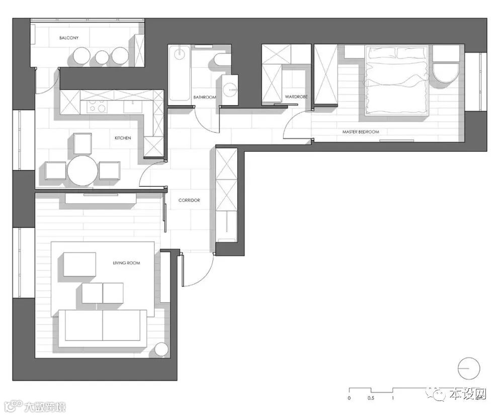
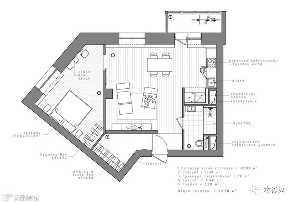
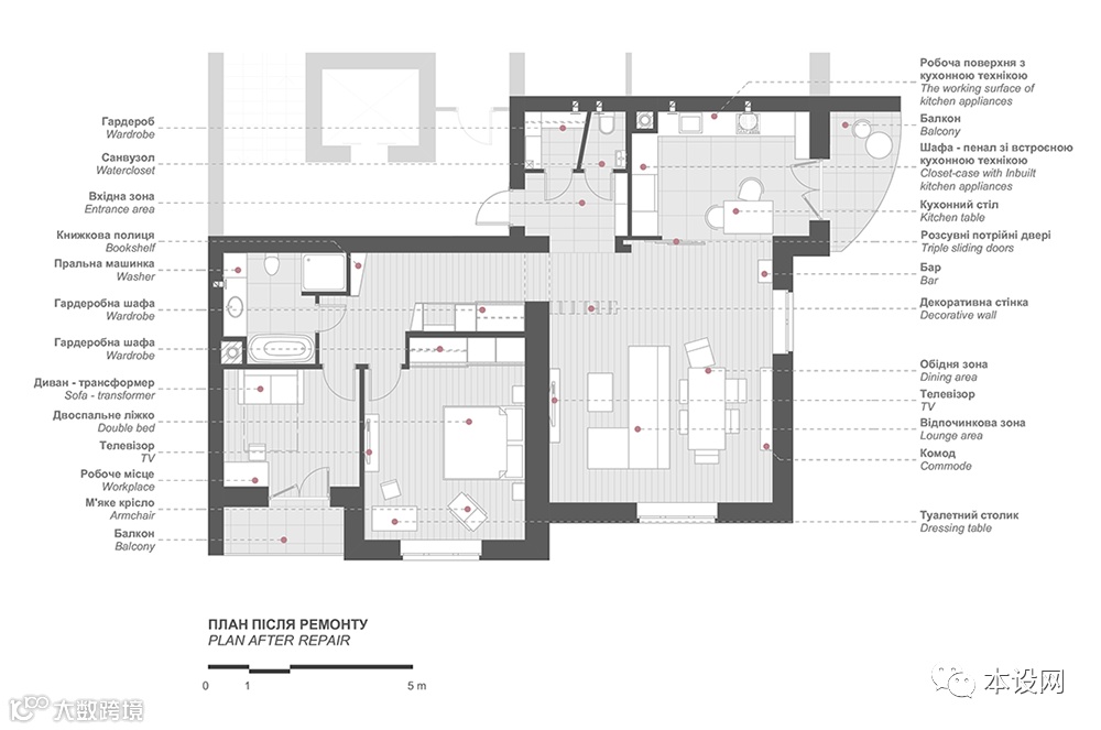
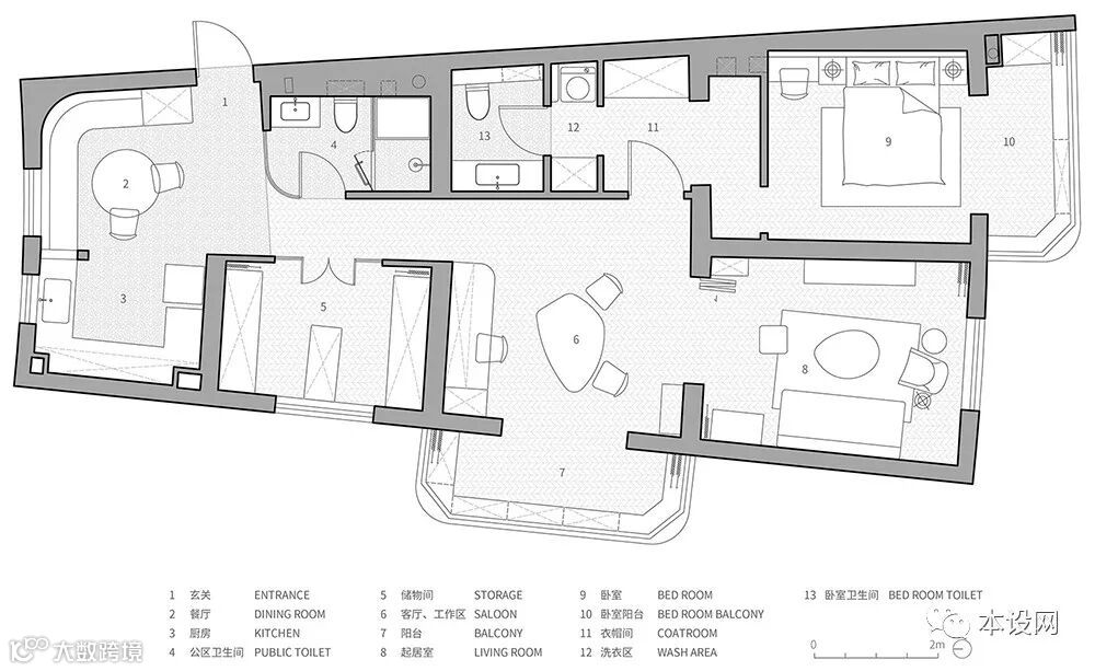
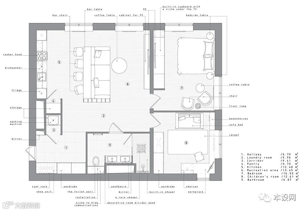
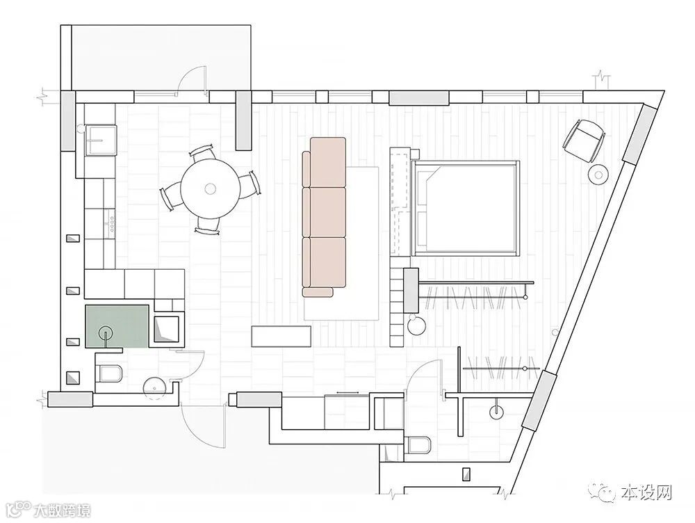
《 家装、公寓、一居室平面图参考合集》
— 设计师必备资料 —

资料包含
家装|公寓|一居室
共516张平面
资料大小149M,JPG格式
如何购买获取

扫描以上二维码即刻获取资料

























如何购买获取

扫描以上二维码即刻获取资料
—更多精品内容—









