
在繁多且复杂的装修环节中”前期的概念设计”奠定了最后呈现的整体质感,而优化并破解房子户型更是它的”灵魂所在”不容轻视。
跟随小设的步伐一起探索讨论”室内户型方案破解术图册”相信我,它将会带您破解一个全新且完美的户型。




图源:来源网络
“室内户型方案破解术图册”的名片:
在您打开我的这一刻,我不仅能够带您了解单一的“户型优化”,而且,我还能提供最优的户型破解方案,我会从一居室、二居室、三居室、大平层、复式全方面提供最完美的破解方案,不妨,此刻就把我带回家,进入更深的交流!

本篇文章从以下几个角度解析“室内户型方案破解术图册”
复杂且繁琐的户型如何优化至最完美?
1.)一居室如何合理性优化布局?
2.)二居室如何解救两房改三房?
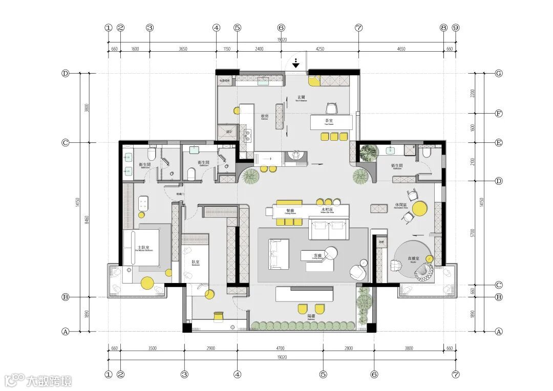
3.)三居室如何重整格局秒变豪宅?
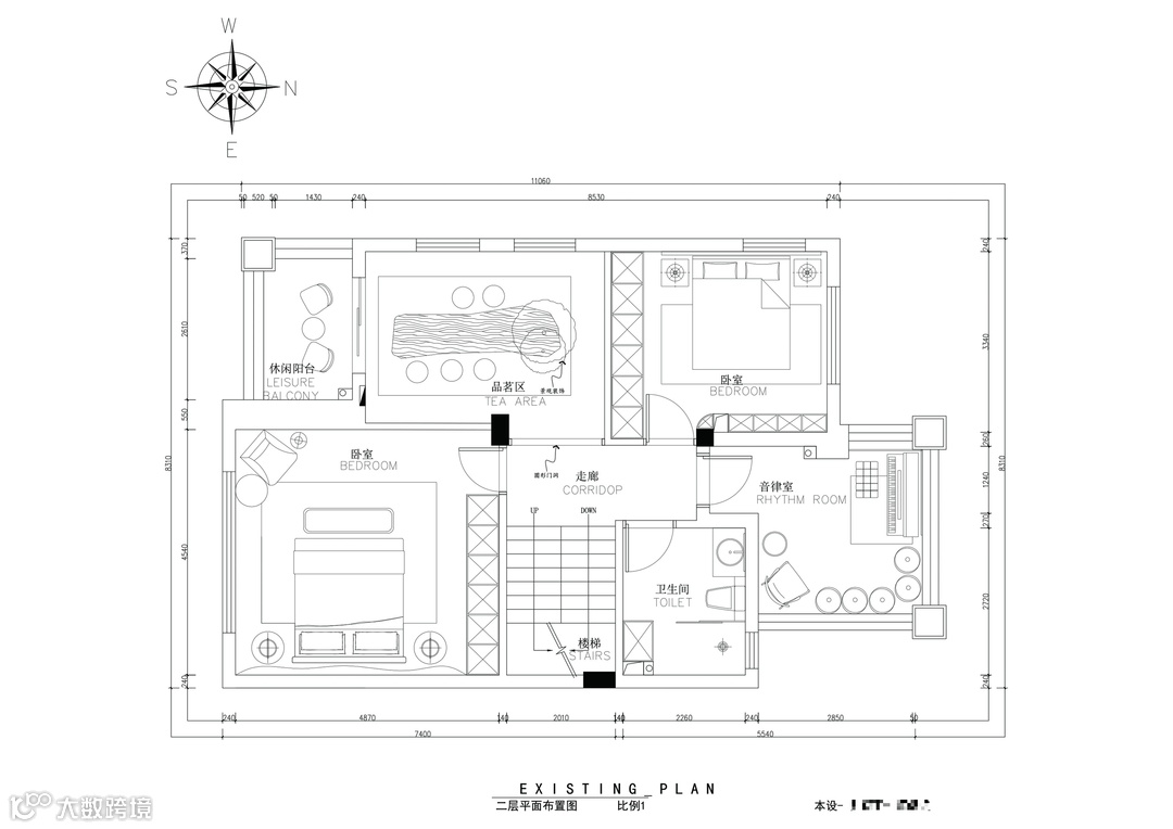
4.)复式格局如何将空间发挥到完美?
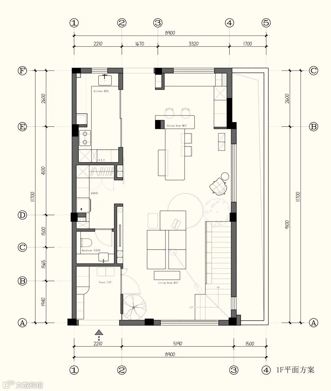
5.)大平层如何整合空间提高舒适性?
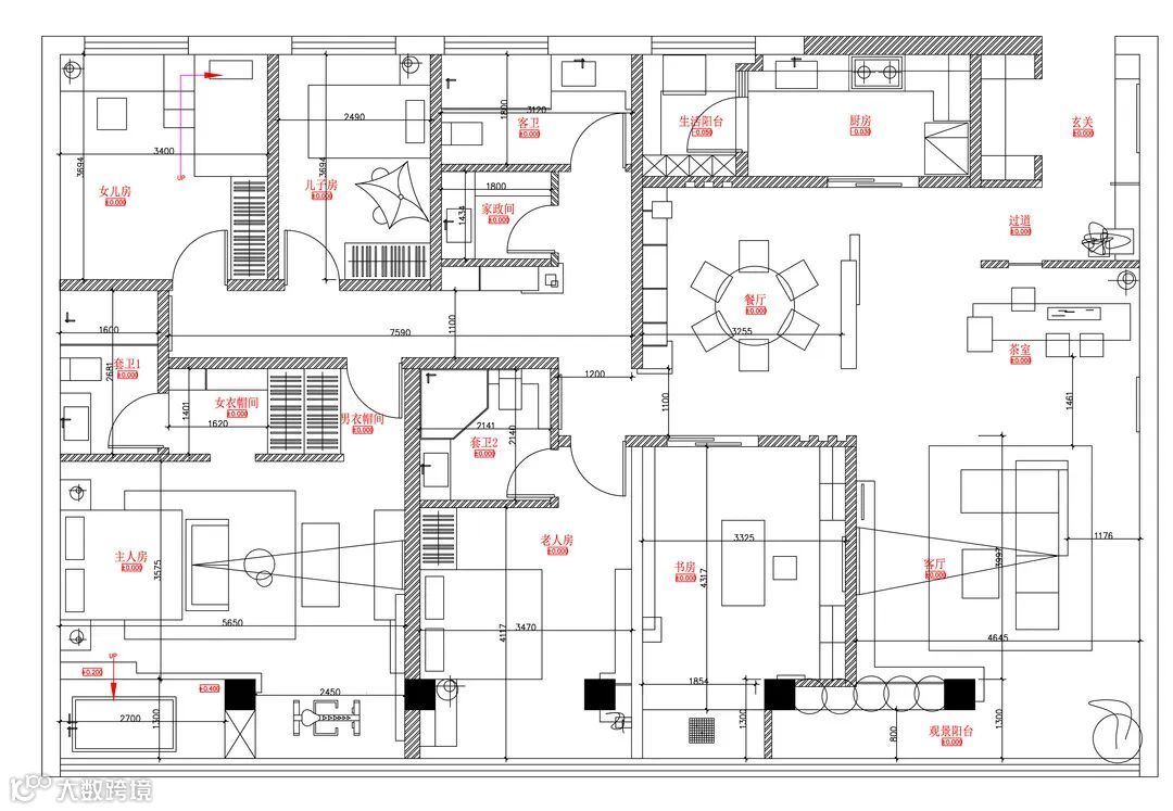
6.)关于“我的”提炼总结
俗话说”麻雀虽小,五脏俱全”在较小的住宅空间内,舒适度与空间感的体现是多么的重要,将现有的格局重新洗牌,跳脱小住宅空间的限制。


图源:本设学员作品
善用空间尺度,让一切不仅合理还舒适,完善空间隔墙、动线、功能、调整卧室尺度统整公共区域,提升空间受光面积,皆可呈现一个完美且舒适的三房需求。


图源:本设学员作品
“豪”不仅仅体现在奢华,舒适大气也是”豪”的形象;不如,我们从玄关创造双动线,串联出舒适的格局与空间感,”回”字动线,拉大空间尺度,普通住宅也能变豪宅。


图源:本设学员作品
“复式”不仅满足了你对楼层的需求,更满足了你对空间的创意;创意是极具个性的,可以活用挑高空间,打造夹层,功能与舒适性倍增,提升我们的”空间感”。


图源:本设学员作品
“空空荡荡,满满当当”这两者都是”弊端”的体现,合理性的平衡整体空间皆是完美;不妨拆除过多的琐碎隔断,创造更加开阔的格局,这样一来不仅整合了空间格局,还强化使用功能增加舒适性。


图源:本设学员作品
经过上面的自我介绍,我想您对我已经有了一个初步的了解,偷偷告诉您:”我除了有户型优化与破解方案,还有各类型户型给您实操练习”如您想要配套的电子版文件与图纸,小设也给您备好了。

















该书籍作者来自“本设教育”殷永贵设计师著作,加入本设一起成为优秀的设计师!
温馨提示:本图册为预售商品,预计2月28号发货,全国包邮!
领取方式:该图册所配套的CAD源文件和PSD彩平源文件,需收到货后根据图册上的领取方式获取!



