大数跨境

【户型改造】“去客厅化重构”仪式感与亲子互动的空间

【户型改造】“去客厅化重构”仪式感与亲子互动的空间 本设网
2026-02-10
0
导读:让家成为仪式感与亲子互动的核心场域—尼古拉斯·三哥

Plane scheme optimization thinking

:237

:4
-5人


**文章最后有:CAD源文件**


“宜居宅设计”(游戏休闲+宠物友好+轻厨轻食)

说明

房屋为四口之家居住,核心需求是保留4个卧室,其中1间作为备用客房,其余3间分别打造主卧、弟弟房、姐姐房,且三者均设计为套卧,充分兼顾每位家庭成员的隐私与使用便捷性。业主夫妻经商,偏爱开阔大气的门厅设计,追求强烈的空间仪式感;打破传统,采用去客厅化设计,预留充足亲子玩耍与成长空间,让家居环境更具温度与趣味性。房屋为一楼带花园,需在餐厅区域设计通往屋后花园的通道,实现室内外空间自然衔接,提升空间通透感。卧室布局需合理分区,弟弟房需靠近主卧,便于照料;姐姐房位要分开,且与客房有效分隔,保障各自隐私。功能区域优化方面,原有家政间改造为公卫,飘窗均能改造,提升空间利用率;厨房采用开放式设计,因平时做饭频次不高,无需考虑封闭性,兼顾美观与使用便捷。整体布局需打破常规,兼具创意与实用性,在满足所有基础居住功能的前提下,打造出兼具仪式感、趣味性,且适配家庭多元生活需求的居住空间,适配经商夫妻的审美与四口之家的日常居住、亲子互动需求。


/BEFPRE

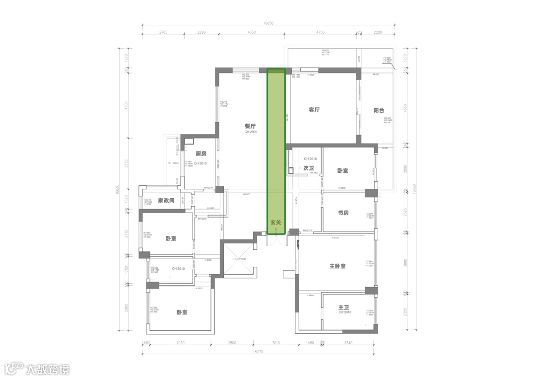
剖析1玄关进门视线太 长,无独立性?

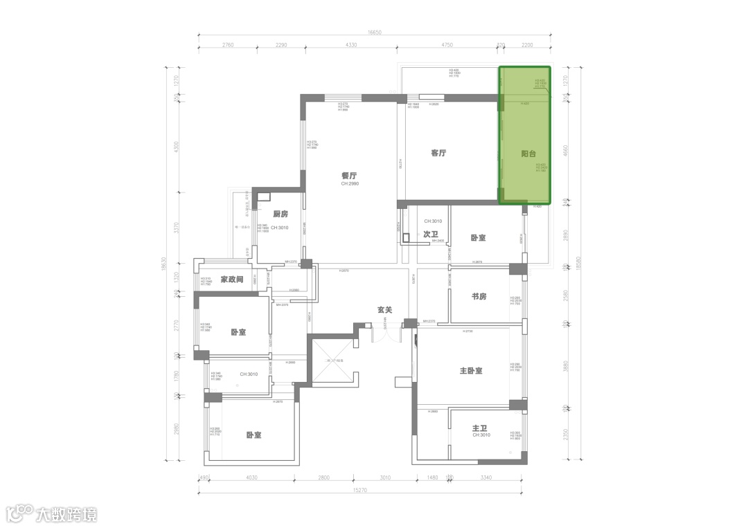
剖析2阳台的进深较长,影响客厅采光?

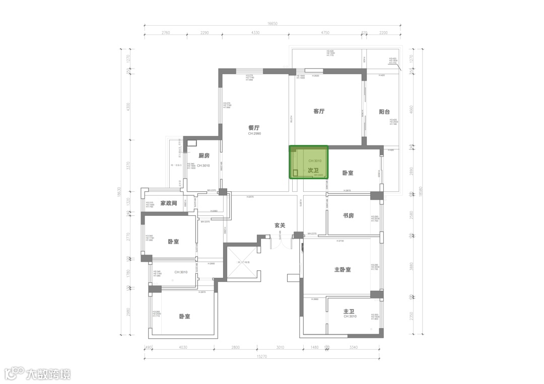
剖析3次卫缺采光,门洞正对主卧室?


剖析4主卧室过道视线较长,私密性弱?



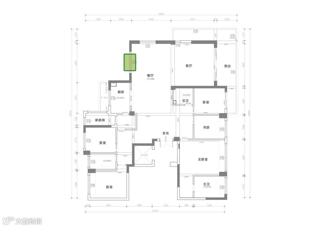
剖析5需要拆改,门洞引入花园?


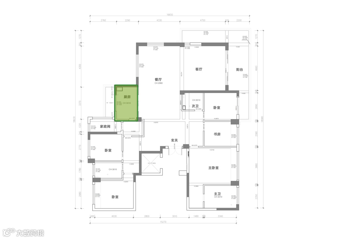
剖析6厨房尺度进深短设备台面不够?

以上就是原始户型中存在的一些主要问题,需要我们在后续优化时重点关注。其实还有一些其他的问题,但我个人认为这些问题对后续方案的优化影响不大。不过,大家也可以根据自己的经验来判断,找出你认为不合理的地方。
那么这个方案该如何设计呢?



改造之后/AFTER
解析1入户区域视野通透开阔,以弧形柔润墙体自然引导动线,让空间视线自然聚焦餐厅,强化用餐仪式感。整体采用洄游游动线设计,搭配流畅曲线墙体,赋予空间更灵动的柔韧性,进一步放大通透尺度。开阔舒展的格局,既满足家人日常交流、温馨小聚与自在玩耍,又让每一处互动都自在从容,尽显家的开阔与温情。

解析2将厨房与原有承重墙柱自然衔接,打造贯通洄游动线的水台,亦可兼作西厨早餐吧,功能灵活多变。整体采用开放式设计,空间向外延伸扩建至阳台,形成围合式布局,视野与尺度瞬间舒展。通透格局不仅让空间感大幅提升,更缩短了从备餐区到餐厅的传菜路径,效率更高。流畅动线串联起烹饪、备餐、用餐场景,日常使用便捷舒适,兼具实用性与生活氛围感。

解析3空房间规划为姐姐专属独立套卧,配套独立卫生间,采用三分离设计,使用高效又整洁。入户左右两侧定制柜体,一侧为衣柜,一侧为杂物收纳柜,可轻松存放行李物品,收纳充足。考虑过道较长的短板,在睡眠区旁设置独立学习区,书桌紧邻床侧布置,后方预留洞板或小黑板区域,可摆放装饰、挂画与学习用品。充足的操作台面,未来还能兼作梳妆台,集睡眠、学习、收纳、梳妆于一体,舒适又实用。

解析4这间房规划为弟弟专属独立套卧,借助窗边优质采光,紧邻窗户打造专属学习书桌。床侧设置舒适小沙发区,方便妈妈或家长陪伴孩子阅读、讲故事,温馨又有陪伴感。空间开阔舒展,清晰划分出玩耍区、学习区、收纳区,搭配三分离四组合式独立卫生间,功能齐全、动静分区,给孩子一个兼具学习、休憩与玩乐的成长小天地。
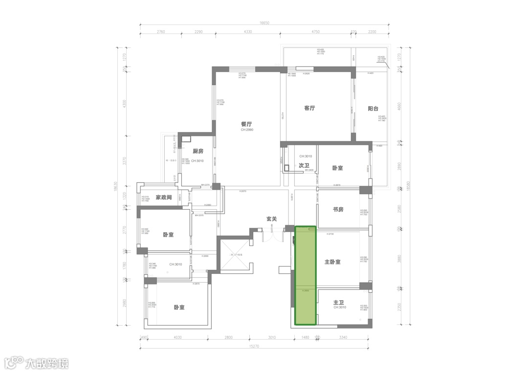
解析5主卧空间以舒适奢适为核心,床尾结合卫生间优势,打造步入式衣帽间。利用进门视线通透的特点,在角落设置挂衣区,使用便捷有序。床尾衣柜设置专属妆台,满足日常梳妆需求。卫生间采用三分离设计,双台盆、马桶、淋浴区各自独立,互不干扰。衣帽间柜体中间预留全身镜,出门整理更方便。卫生间尺度开阔,还预留出可放松泡脚的区域,兼顾实用与生活仪式感。

【声明】内容源于网络
0
0
本设网
本设网公众号隶属于本设网络科技有限公司旗下品牌,本设网致力于打造最精品设计的资讯平台。专注建筑、景观、室内、艺术、产品等领域的品牌建设,搭建各领域之间交流及服务的设计平台。
内容 278
粉丝 0
本设网 本设网公众号隶属于本设网络科技有限公司旗下品牌,本设网致力于打造最精品设计的资讯平台。专注建筑、景观、室内、艺术、产品等领域的品牌建设,搭建各领域之间交流及服务的设计平台。
总阅读265
粉丝0
内容278