
▼
平面布置是室内设计的第一步
也是最重要的一步
无论是家装还是工装
不管是做家装方案还是做工装方案
其实底层逻辑都是通的
都是需要从
功能、动线、需求、空间、格局
美观、实用等因素进行方案规划

既然所考虑的因素基本相同
那为什么很多家装设计师做不好工装项目呢
一
家装与工装最大的区别就是功能需求不同
家装空间的功能是我们都能接触到的
一般的住宅无非就是客厅、餐厅、厨房、卫浴
卧室、衣帽间、书房、茶室等等
即使别墅空间
也只是比普通住宅多一些附加功能
但是工装就一样了
不同的工装需求是不同的
经营的范围不同
所牵扯的东西就比家装要复杂很多
甚至有些空间都没有接触过
例如酒店、会所、民宿、酒吧等等
没有接触过的空间又怎能想象到底需要什么功能呢
所以这也是很多设计师做不好工装的原因之一

二
空间构成不同
家装空间面积相对比较小
而工装一般面积都比较大
家装空间内部格局开发商都不会隔好
每个空间的使用面积也会规划好
而工装大部分只是框架结构
内部没有隔墙
需要根据客户需求重新规划空间格局
还要计算出每个区域所使用面积大小

三
人员的组成不同
家装在规划平面的时候只需要考虑一家人的需求
而且工装要考虑很多人的需求
老总、经理、财务、技术、销售等等
工装因部门多样化
各部门的人员结构又非常复杂
所以需求考虑的因素就非常多

那是不是做家装的设计师就做不好工装呢
非也
既然我们已经知道问题的所在
就可以学习这些方面的知识来弥补自己的缺陷
那如何学习呢
就要从看别人做好的工装项目开始
首先
我们拿到一个项目我们先去拆分他们的功能划分
找到哪些是属于这个空间主要功能
哪些是这个空间的
只有知道空间需要哪些功能
才能做到真正满足用户需求

研究完功能还要看动线规划
一个好的平面方案
动线肯定是流畅而多元化的
工装在动线上的梳理
除了要满足各个区域的联动关系
还要考虑消防等规范

所以做好工装设计其实也没那么难
多看一些好的设计
多总结、多思考
从无到有总需要一个过程
这个过程就是你不断学习和积累的过程
……
今天
小编给大家精心准备了这份资料
《 工装平面方案布局参考图集 》
——室内设计师必备学习资料——

6179张工装空间平面布置图
包含以下7个空间
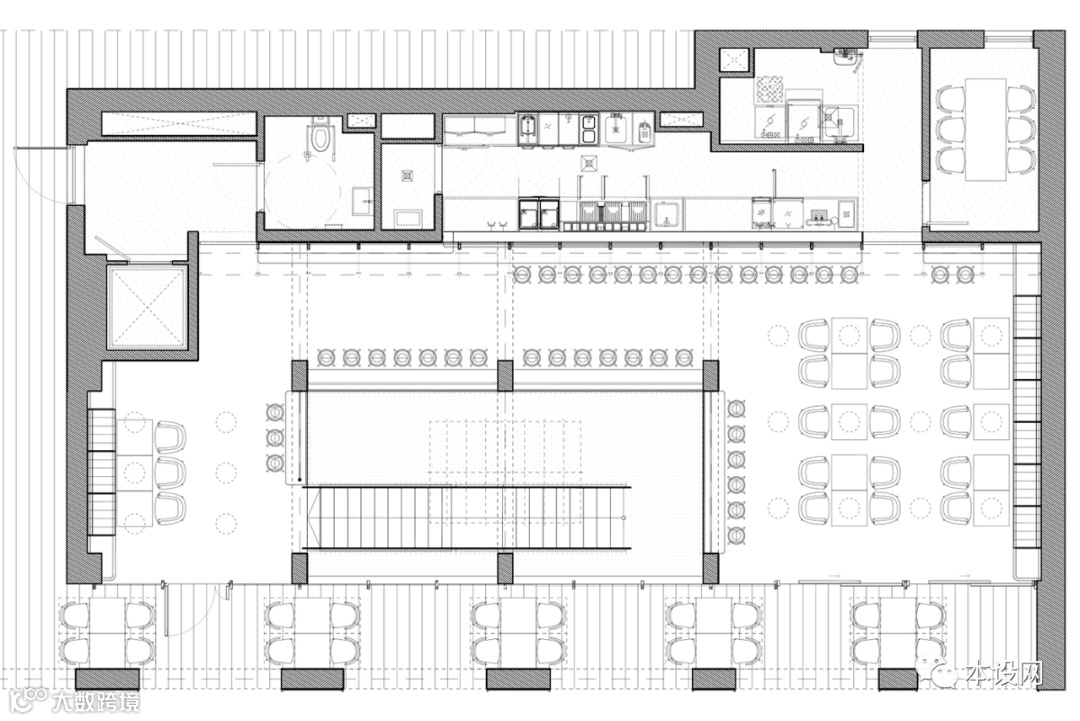
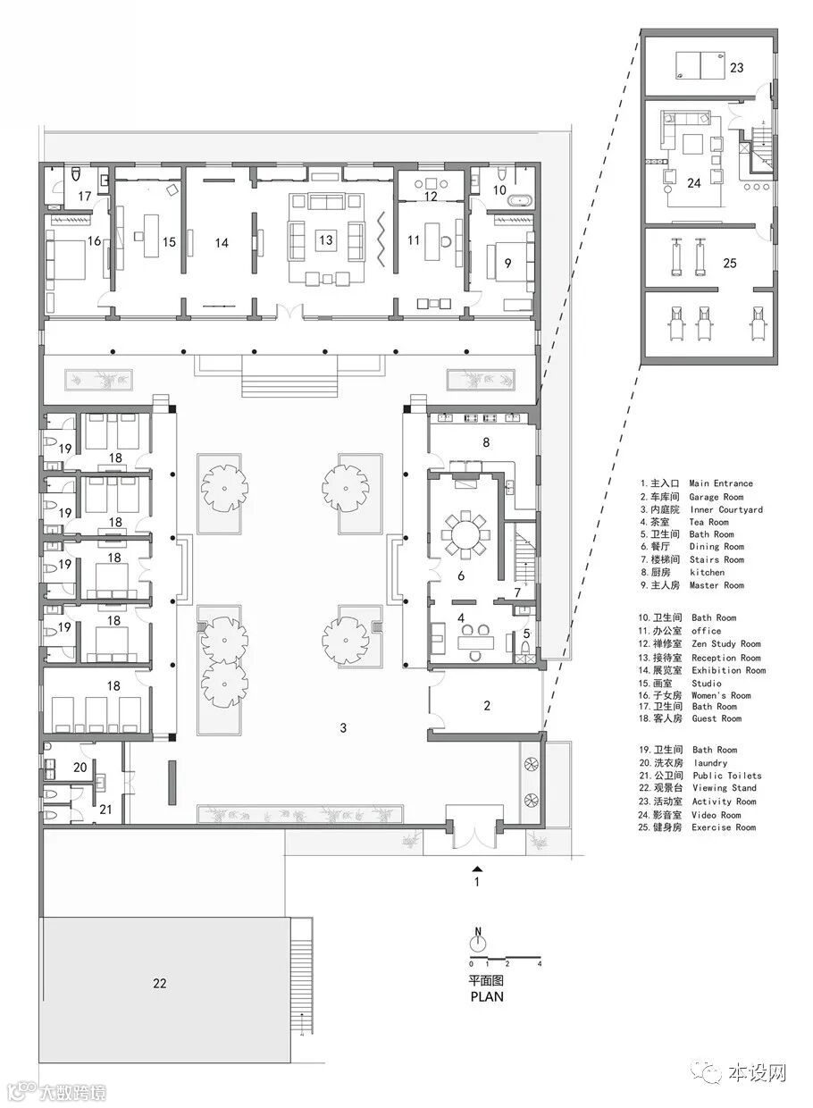
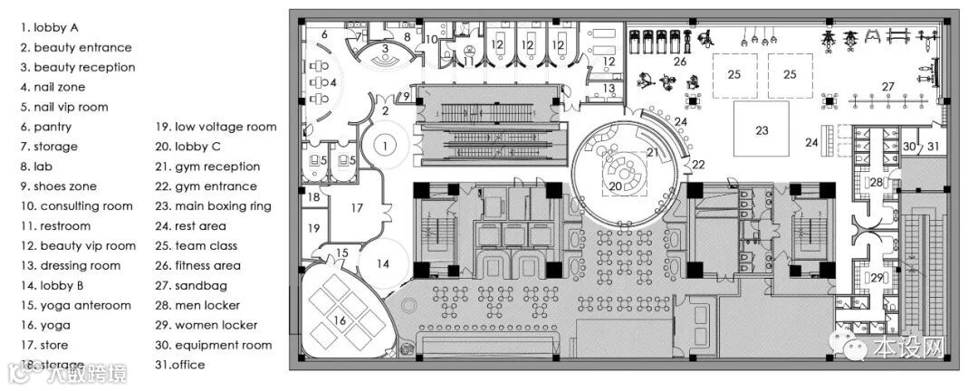
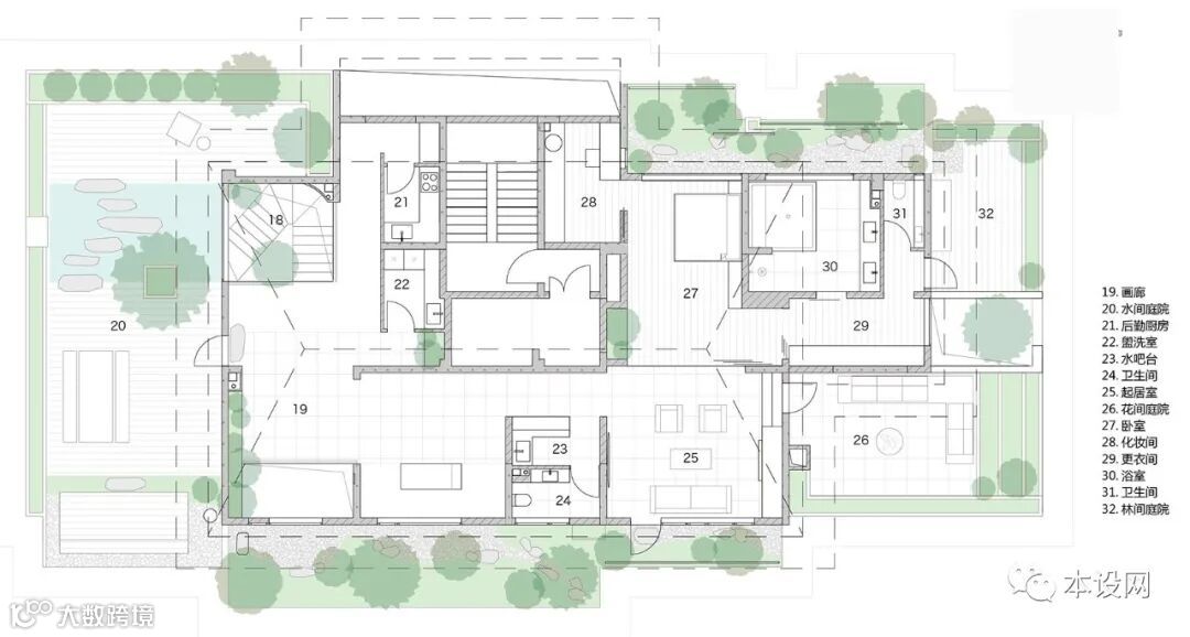
酒店空间 | 民宿客栈 | 展厅空间 | 餐饮空间
售楼处 | 会所空间 | 办公空间
均选自国内外优秀工装设计案例
资料大小共计:2.6 GB
资料格式 :JPG
如何购买获取

扫描以上二维码即刻获取资料
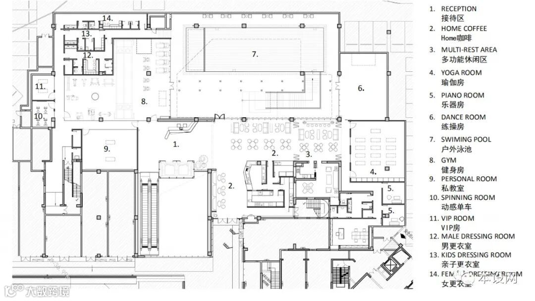
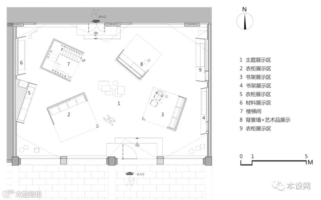
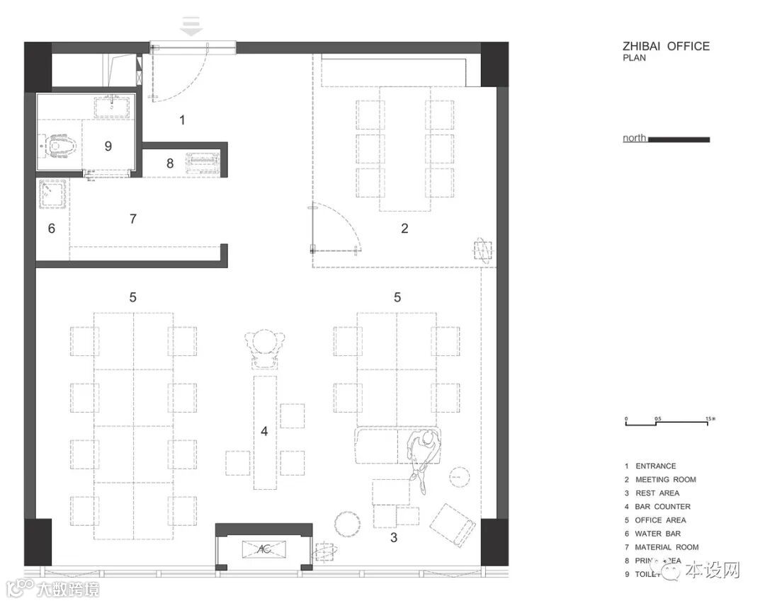
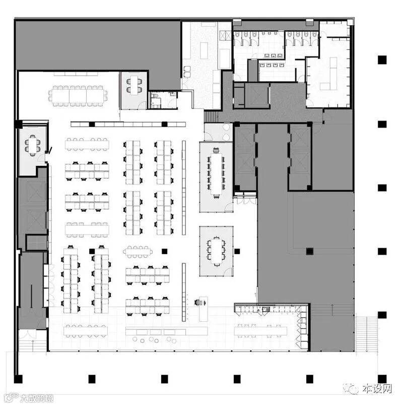
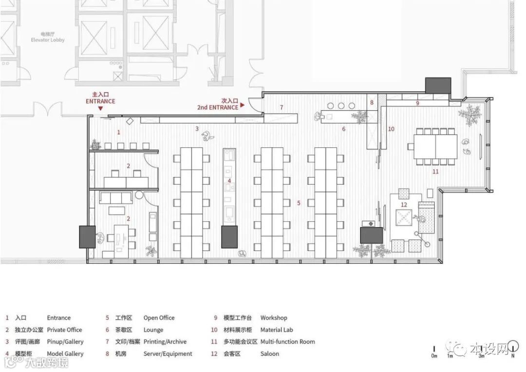
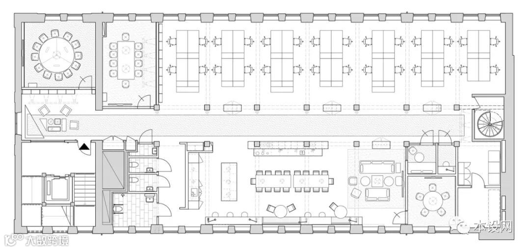
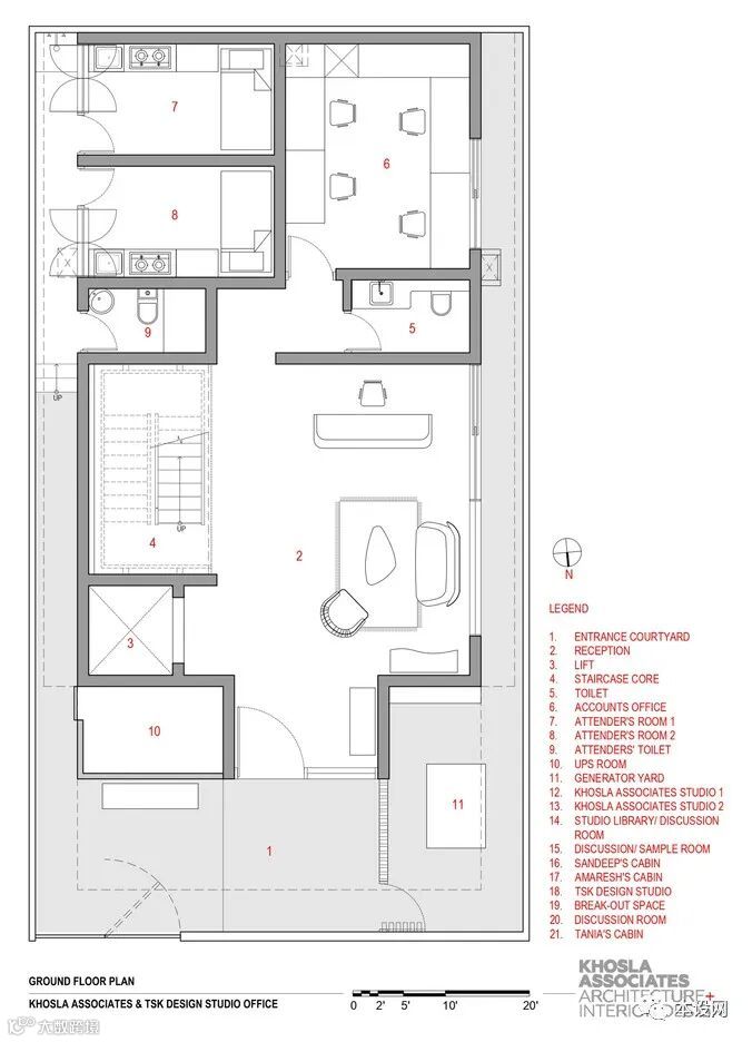
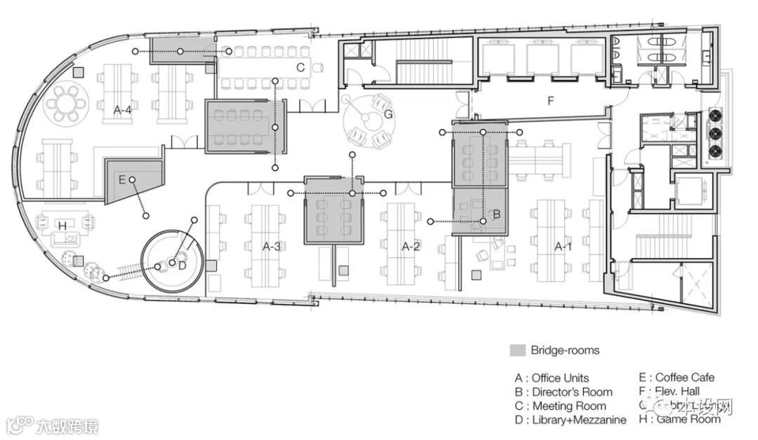
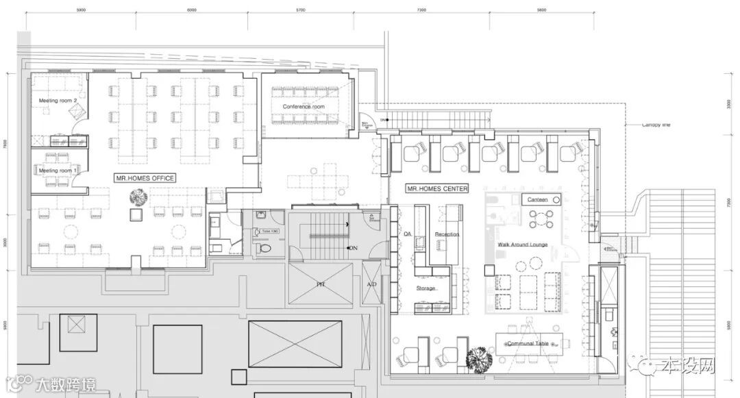
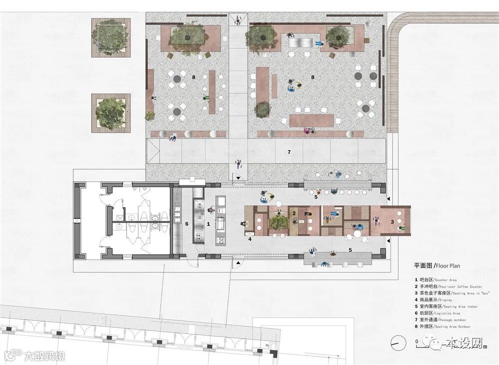
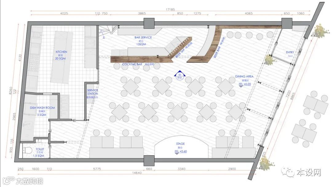
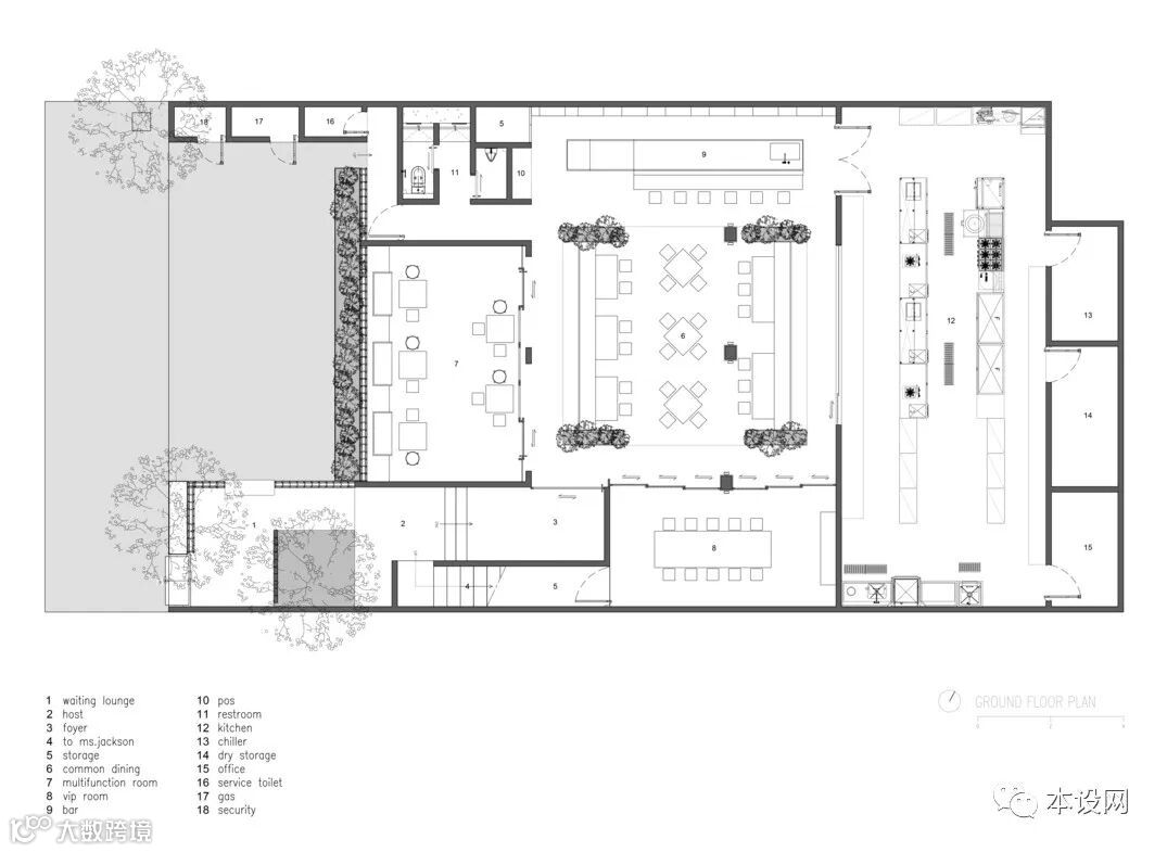
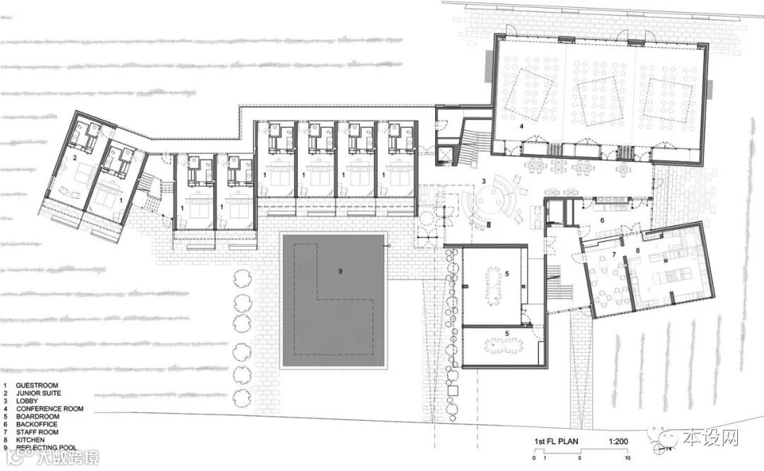
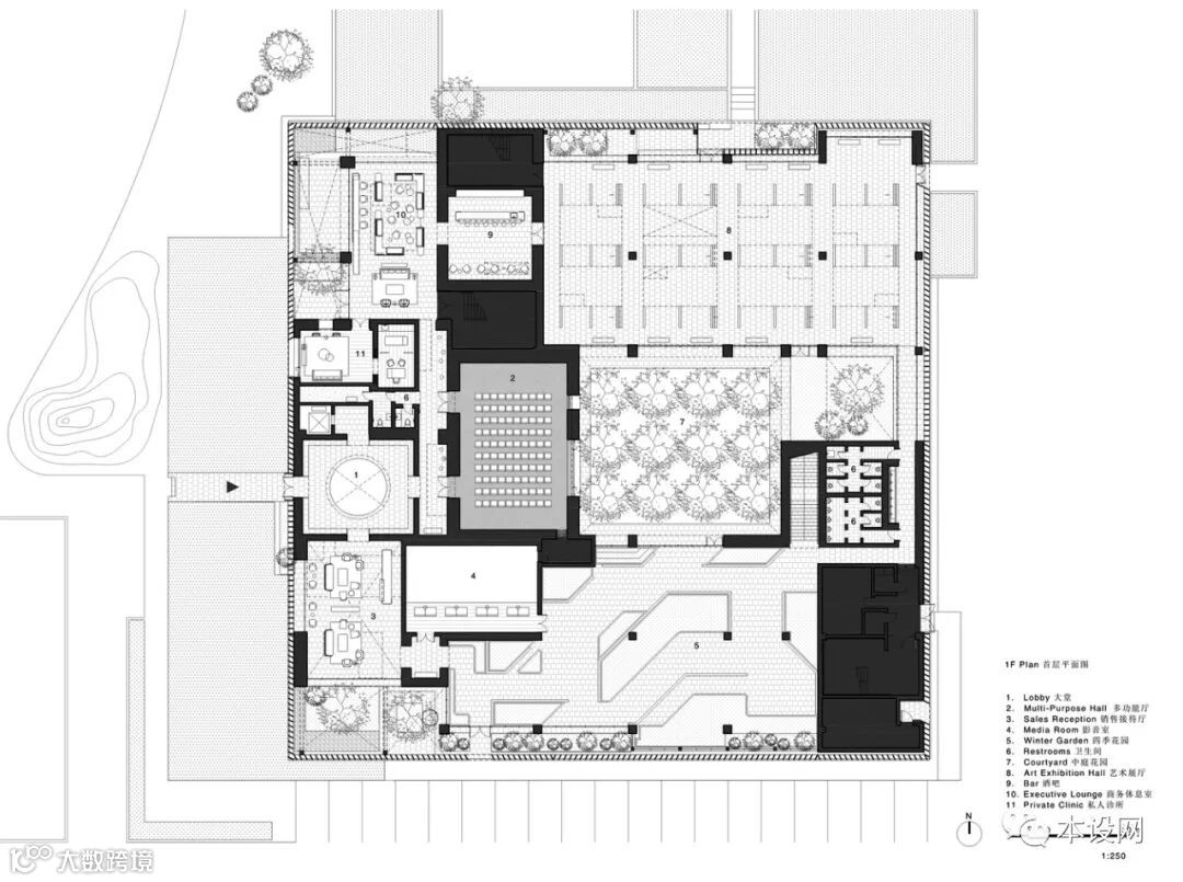
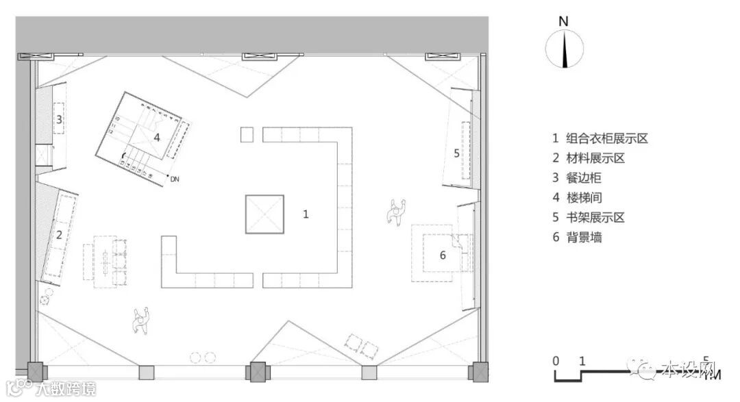
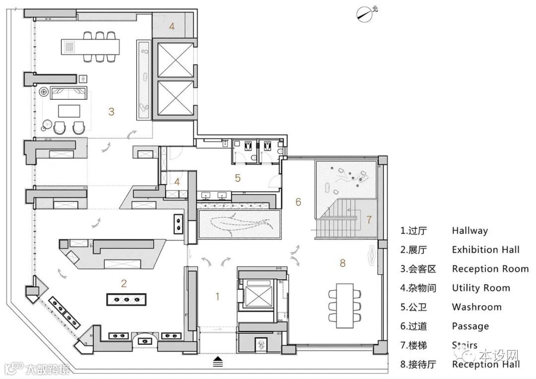
部分内容预览



































































如何购买获取

扫描以上二维码即刻获取资料
- 本设网 -
免责声明:
以上图片及资料内容来源于网络,由我方整理,版权归原作者及其公司所有;
本资料仅供学习研究之用,不得用作于商业用途,若此图库侵犯到您的权益,请与我们联系删除;
本文章版权归本公众号所有,未经同意不得随意转载 ,若恶意侵权将追究其法律责任。
—更多精品内容—




