“户型优化知识小课堂”
三哥老师通过一个户型教你如何快速
规划家装复式楼的平面布局

▲
原始户型图
设计要求
面积:101㎡
1、楼下会课,不考虑卧室
2、楼梯按照现有的位置预留就可以
3、喜欢做饭,可以做开敞式厨房
4、二楼位置考虑做自己的睡眠区
5、要又浴缸,平时就一个人住
6、可以安排一个钢琴
7、有留宿的情况,考虑楼下地铺

▲
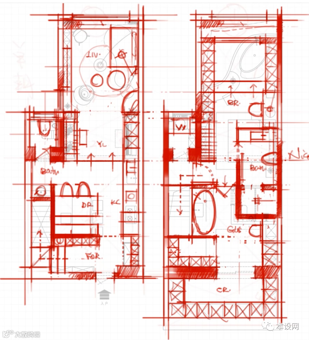
优化后的方案
视频教程
室内户型优化课程介绍
扫码预约课程
可立减300元优惠





本设网“户型优化知识小课堂”
三哥老师通过一个户型教你如何快速
规划家装复式楼的平面布局

▲
原始户型图
设计要求
面积:101㎡
1、楼下会课,不考虑卧室
2、楼梯按照现有的位置预留就可以
3、喜欢做饭,可以做开敞式厨房
4、二楼位置考虑做自己的睡眠区
5、要又浴缸,平时就一个人住
6、可以安排一个钢琴
7、有留宿的情况,考虑楼下地铺

▲
优化后的方案
视频教程
室内户型优化课程介绍
扫码预约课程
可立减300元优惠




