搜索
首页
大数快讯
大数活动
服务超市
文章专题
出海平台
流量密码
出海蓝图
产业赛道
物流仓储
跨境支付
选品策略
实操手册
报告
跨企查
百科
导航
知识体系
工具箱
更多
找货源
跨境招聘
DeepSeek
首页
>
【户型优化】长过道户型这样设计也可以很好住(户型优化小技巧)
>
【户型优化】长过道户型这样设计也可以很好住(户型优化小技巧)
本设网
2022-09-28
0
导读:点击“本设网”,关注设计师交流平台添加微信号:benshe88 或者收藏网站:www.benshevip.
点击“
本设网
”,
关注
设计师交流平台
添加微信号:
benshe88
或者收藏网站:
www.benshevip.com
获取各类室内设计教学资料!
“户型优化知识小课堂”
分享老师:
尼古拉斯·【三】
课程知识
长过道户型这样设计也可以很好住
▼
中间有视频讲解
▲
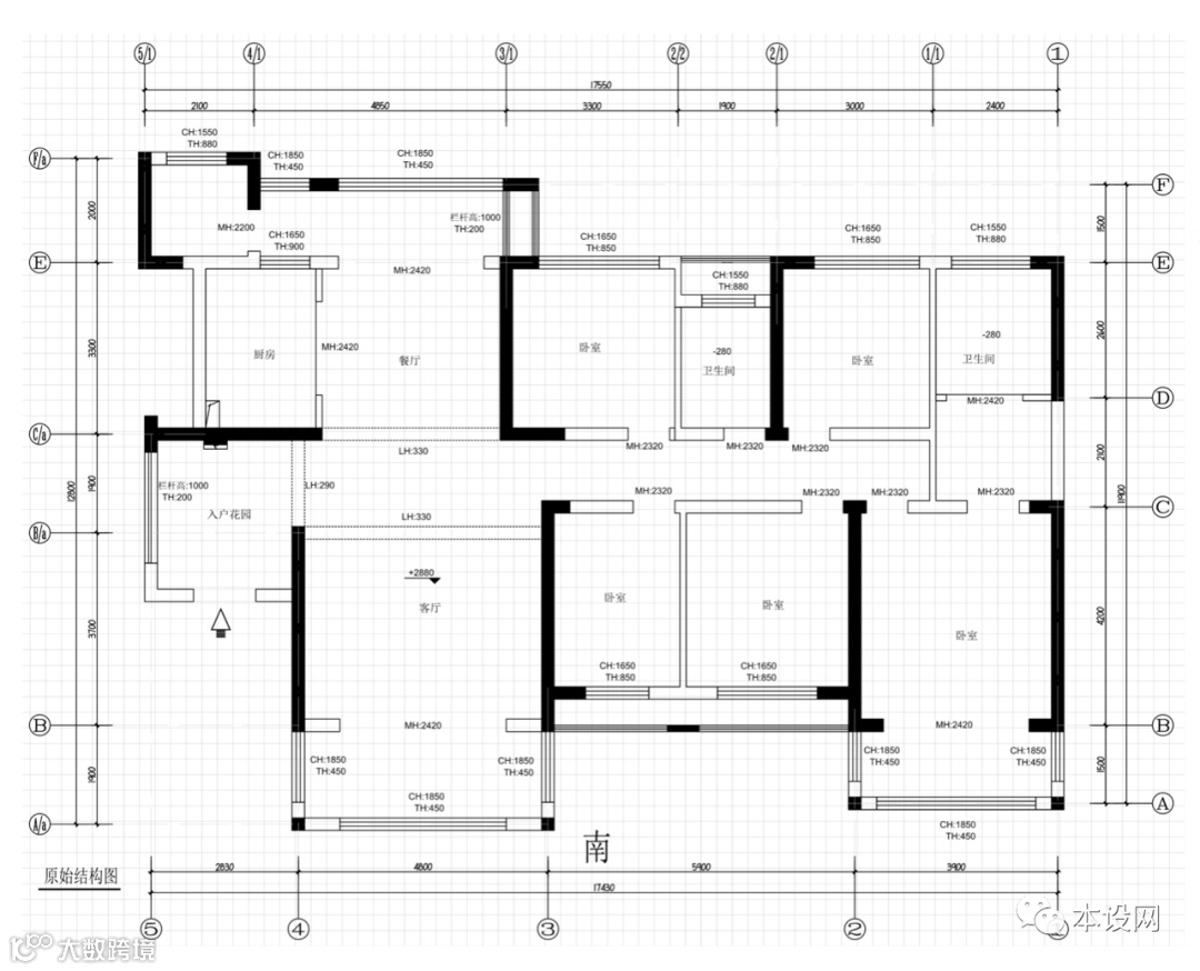
原始户型图
设计要求
主讲:尼古拉斯 • 三哥
面积135
㎡
1、夫妻两人和女儿初中,需要中西厨,做饭爆炒比较多;
2、入户需要一个相对独立的玄关空间;主卧需要衣帽间;
3、
女儿喜欢手办,异形房希望能做出惊艳的布置,
兼顾书房、客房、手办。
▲
优化后的手绘方案
▼
视频讲解
室内户型优化课程介绍
扫码预约课程
可领取课程
优惠券
▲
扫码免费预约直播课
将【本设网】设为“
星标
”
公众号
可第一
时间
接收设计圈最新精选内容
【声明】内容源于网络
0
0
本设网
本设网公众号隶属于本设网络科技有限公司旗下品牌,本设网致力于打造最精品设计的资讯平台。专注建筑、景观、室内、艺术、产品等领域的品牌建设,搭建各领域之间交流及服务的设计平台。
内容
278
粉丝
0
关注
在线咨询
本设网
本设网公众号隶属于本设网络科技有限公司旗下品牌,本设网致力于打造最精品设计的资讯平台。专注建筑、景观、室内、艺术、产品等领域的品牌建设,搭建各领域之间交流及服务的设计平台。
总阅读
1
粉丝
0
内容
278