

关于曾仕乾(Soo K. Chan)
他是SCDA建筑设计事务所创始人,首届新加坡总统设计奖、2006年新加坡年度设计师奖、SIA-Getz 亚洲新锐建筑奖、英国皇家建筑师协会国际大奖得主。
闻名世界的作品有新加坡的Lincoln Modern、新德里的Singapore High Commission、爱马仕全球首个高端品牌酒店The Marq等。
曾仕乾在1962年出生于马来西亚槟城,并在1987年考获美国耶鲁大学建筑学硕士,是新加坡和美国的合格建筑师。他曾经在新加坡国立大学兼职授课,在1998年秋季担任美国雪城大学 (Syracuse University) 的客座教授。
曾仕乾是首届总统设计奖得主,2006年新加坡年度设计师,也是2006年新加坡航空公司一Getz亚洲新兴建筑大奖的得主。美国《建筑实录》 2003年12月期刊评选SCDA建筑设计事
务所为2003年设计先锋之一。
曾仕乾也凭Lincoln Modern的设计,获得英国皇家建筑师协会国际大奖,并在2002年凭马六甲的一个私人住宅设计,获得ar+d国际新兴建筑大奖的高度推荐。
2008年,他设计的印度新德里新加坡最高专员公署入围巴寒罗那国际建筑大奖。
SCDA建筑设计事务所的作品在国际期刊和书刊获得广泛介绍,其中包括:《建筑评论》、《建筑实录》、 《Interniy、《Lotus》《Monme》《世界建筑》和其他国际建筑期刊。
曾仕乾参与的项目包括:总蓝图规划、度假村及酒店、公寓大楼、商业与政府建筑、私人住宅,作品遍布亚洲、非洲、欧洲、澳洲与美国。
曾仕乾,建筑师,曾获SIA-GETZ亚洲新镜建筑奖。
曾仕乾设计的代表作品有:巴厘岛Soori酒店,马尔代夫柏悦酒店,中国杭州“古翠隐秀”。

设计理念
曾仕乾认为自古以来每个区域都有自己原生的建筑形态,这种原生建筑形态是建立在当时的社会功能及需求之上的。
诠释、放大并落实本土建筑并不容易,在马尔代夫柏悦酒店的设计过程中,他并末昭搬“岛站建筑“,而是结合当地航海民族精淇的造船工艺.请他们为酒店接待处设计一艘倒置的船形,成品状美至极。
“设计永恒的秘诀. 在干场地规划做好,形式要清晰.比例要合理,在设计中加入象征或文化参考.让它与环境融合这样的设计便会永恒。
曾仕乾最为常见的创作方式是以现代的建筑语言作为始发点.结合各地的不同历史及背景元素,这使得他们的项目能顺利地延伸到世界的各个角落。

今天
小编给大家精心准备了SCDA曾仕乾老师的
项目资料
《SCDA曾仕乾名师项目案例合集》
——大师案例分享——

如何购买获取

扫描以上二维码即刻获取资料
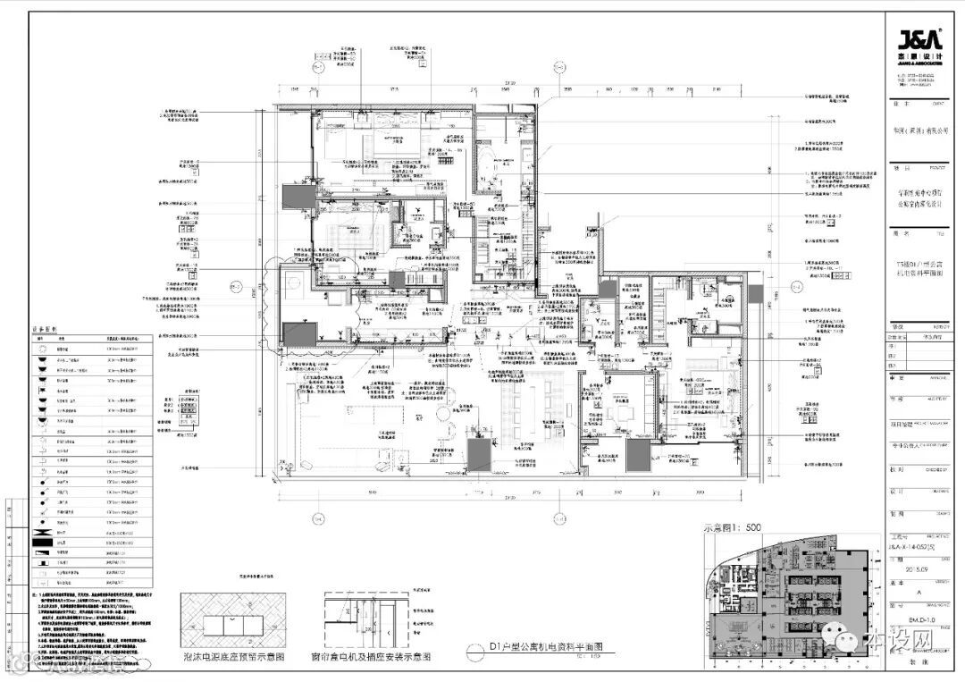
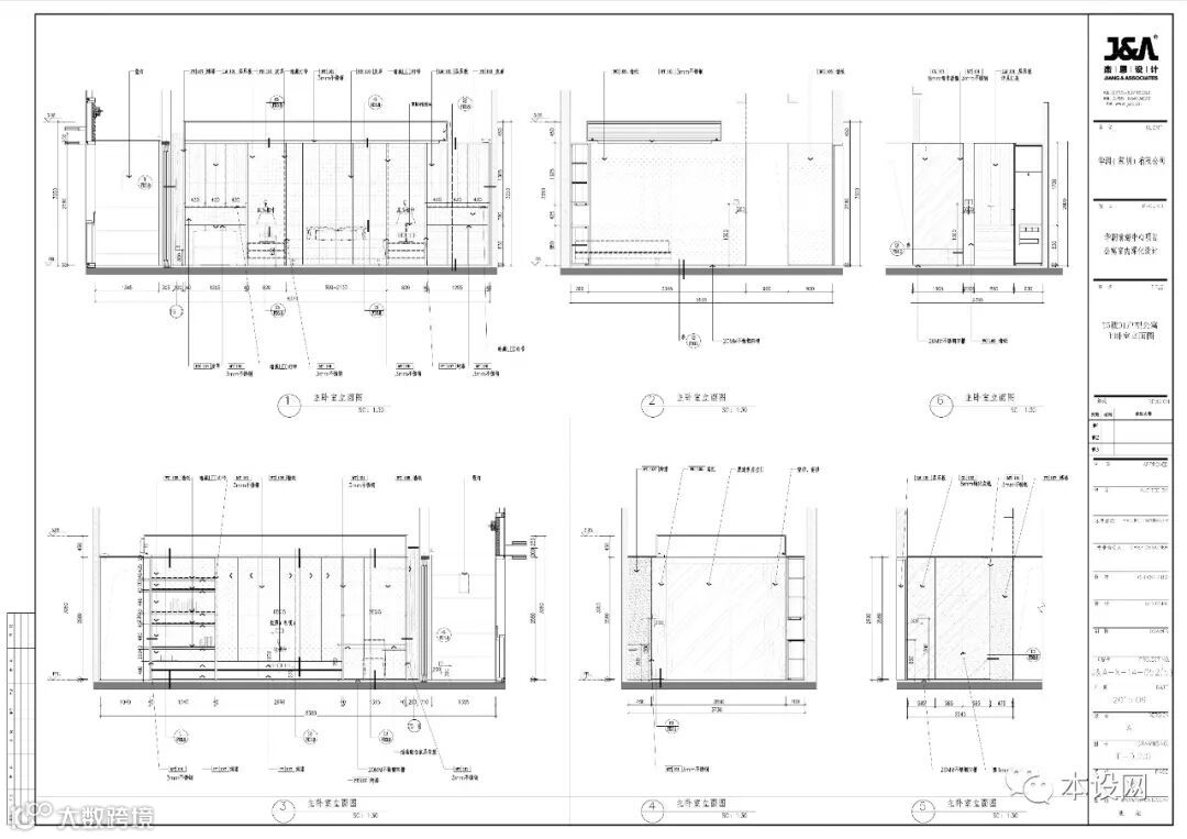
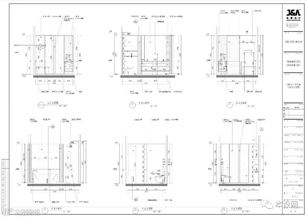
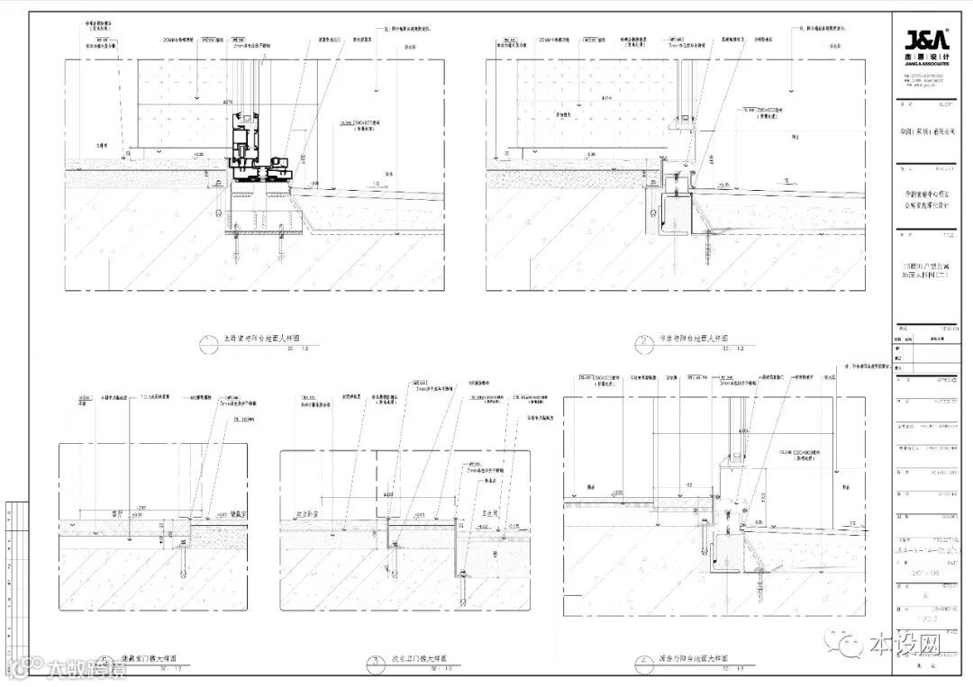
文件目录预览




































































如何购买获取

扫描以上二维码即刻获取资料
- 本设网 -
免责声明:
以上图片及资料内容来源于网络,由我方整理,版权归原作者及其公司所有;
本资料仅供学习研究之用,不得用作于商业用途,若此图库侵犯到您的权益,请与我们联系删除;
本文章版权归本公众号所有,未经同意不得随意转载 ,若恶意侵权将追究其法律责任。
—更多精品内容—



将【本设网】设为“星标”公众号
可第一时间接收设计圈最新精选内容






