平面图优化思路 | Plan optimization
室内面积:93㎡
居住人员:5人
方案优化:殷永贵「壹墨DESIGN」
刚需住宅,三室两厅的空间需要满足一家五口人的居住,因为家里有两个小孩,业主希望能够有个空间与孩子进行互动,在需求与空间大小上有明显的冲突。虽然房子看起来还是比较大的,但原始户型其实有很多不规整的结构,导致整个空间看起来非常散乱,缺乏完整的动线逻辑,因此优化空间格局与满足用户需求是设计的首要工作。

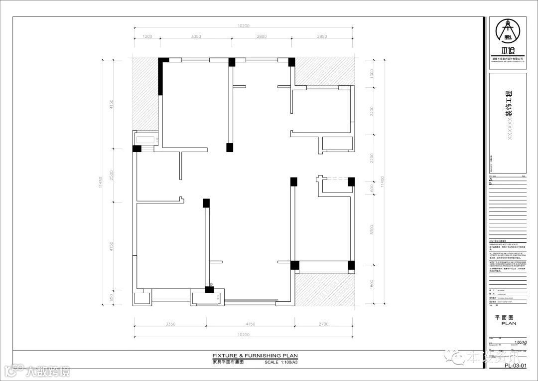
△
原始户型图

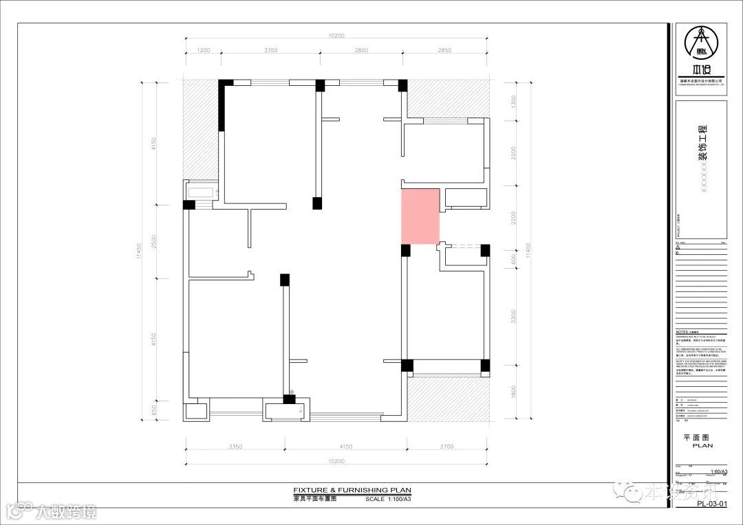
△
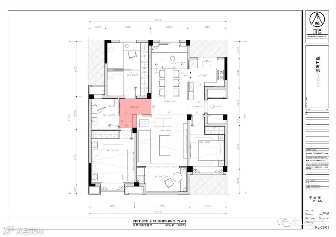
问题一:墙体不完整,导致餐厅区域显得非常零碎。
P.01

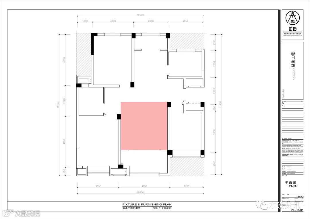
△
问题二:客厅两面墙体长度不统一,显得空间非常小,而又缺乏整体感。
P.02

△
问题三:卧室走道造成空间浪费。
P.03

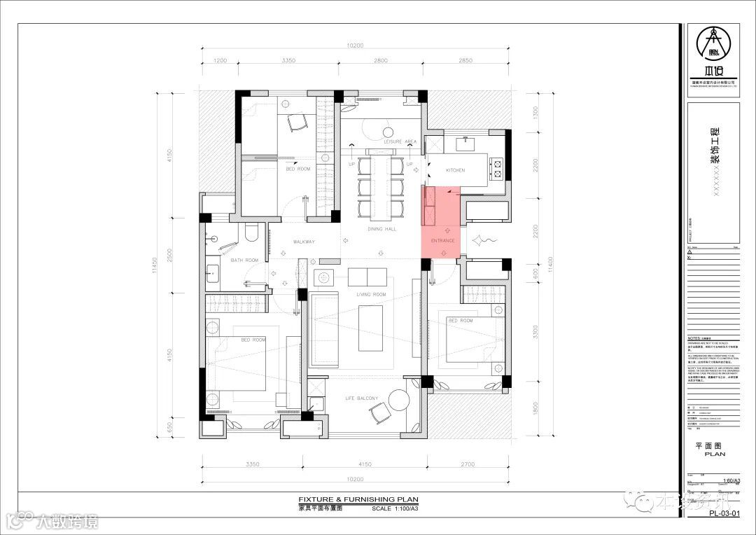
△
破解一:鞋柜移位,形成舒适动线◄原本传统的入户格局,使玄关显得非常呆板,因改变收纳柜的方向,打破常规的格局,得到一个新的动线,进入厨房更加方便,餐厅空间也变得更加方正好安排。
P.04

△
破解二:阳台变亲子区,满足格局与功能◄将原本生活阳台整合成亲子区,利用柜子分割区域,同时营造“图书馆”的功能氛围,孩子在这阅读、互动、嬉戏,也满足了父母与孩子有个独立交流的小天地。
P.05

△
破解三:隔墙加柜体,创造方正格局◄利用柜子延长沙发背景墙,扩大客厅空间,侧边新建的墙体分割客厅与过道区域,形成方正的格局,提升空间整体感。
P.06

△
破解四:利用移门,一房变两房◄利用移门将空间一分为二,可开可合,即可形成独立的功能分区,又能保证空间整体的通透性,满足最舒适的使用需求。
P.07


△
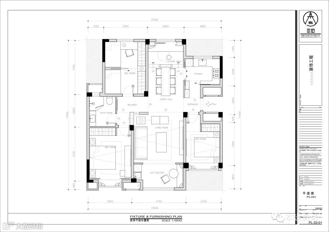
改造后的平面方案





