

点击“本设网”,关注设计师交流平台
添加微信号:benshe88 或者收藏网站:www.benshevip.com获取各类室内设计教学资料!
“户型优化知识小课堂”
分享老师:尼古拉斯·【三】
课程知识
设计师如何拯救狭长形户型
▼
中间有视频讲解

▲
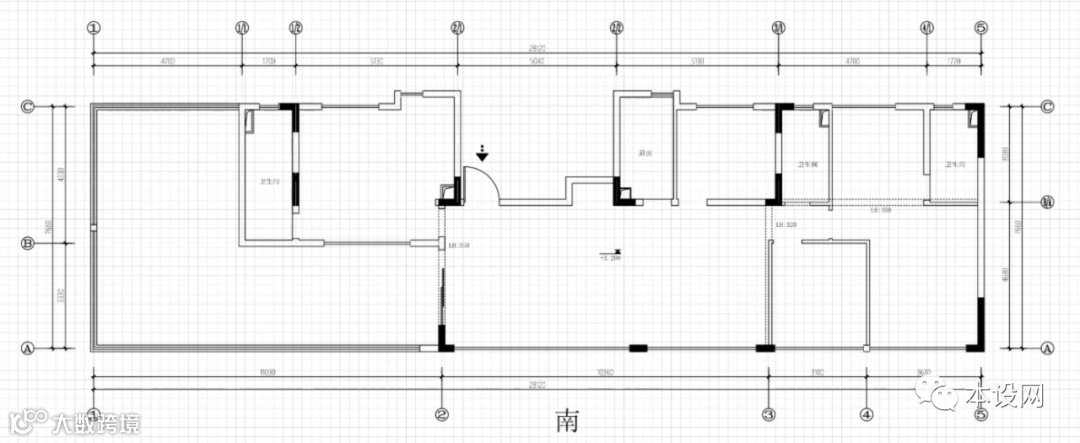
原始户型图
设计要求
主讲:尼古拉斯 • 三哥
面积185㎡
1、男主人是一位医生,年龄42岁,天文爱好者,喜欢观察星星;
女主人38岁,瑜伽教练,平时上班,只有周未有时间会在家里练一下;
2、需要一个品茗区;
3、主卫要求有浴缸、衣帽间 餐厅中西厨;
4、女儿在读小学喜欢跳舞;老人偶尔会来
厨房、卫生间排污管道在标识范围内,由设计师来设定位置

▲
优化后的手绘方案
▼
视频讲解
室内户型优化课程介绍
扫码预约课程
可领取课程优惠券

▲
扫码免费预约直播课





