大数跨境

【户型改造】重塑走道格局,用“游乐场”概念打造亲子活动区

【户型改造】重塑走道格局,用“游乐场”概念打造亲子活动区 本设网
2025-08-11
1
导读:这个优化方案不仅解决了原有户型中的不足,还通过合理的空间设计和功能布局,提升了整体的居住品质和舒适度。设计师注重细节,通过巧妙的设计手法,使得整个空间更具美感和实用性,为家庭成员创造了一个温馨、舒适且
平面方案优化思维|Plane scheme optimization thinking

住宅|复式别墅

室内面积:210㎡

居住人员:4人


购买后 可以下载CAD/彩平源文件


重塑走道格局,用“游乐场”概念打造亲子活动


问题说明

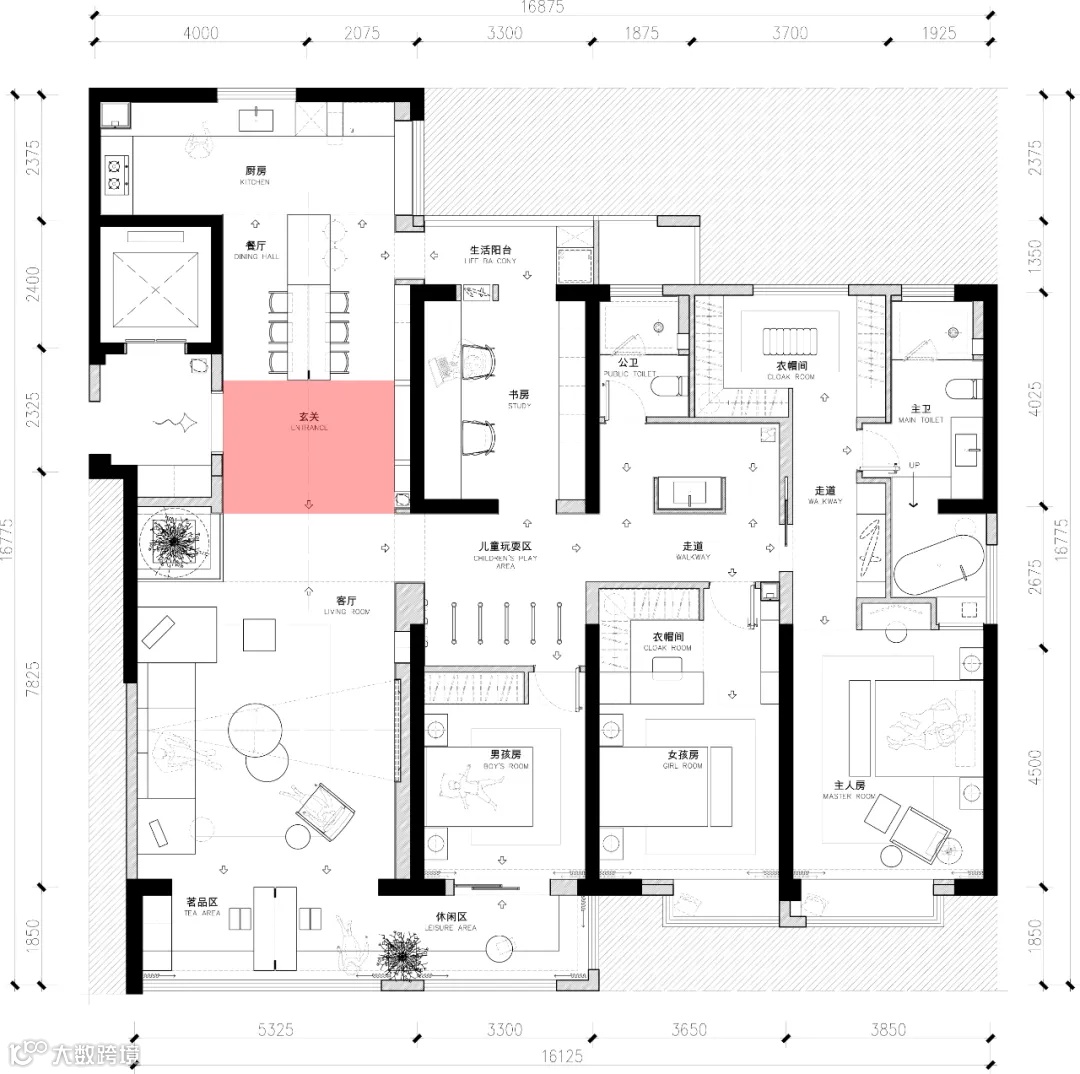
这个户型的内部可使用面积是210㎡,是一家四口人居住,有男女主人、一个女孩和一个男孩,两个小孩的年龄都不大。业主需要保留4个房间,两个小孩各一间,还要有一个独立的书房,主卧需要设计成套房,客厅的阳台区域要有一个喝茶的地方。这些是业主的基本需求。这个项目并不是业主委托我来进行户型优化的,而是设计师。设计师已经竣工了一套一模一样的户型,楼下的邻居看到后比较喜欢,就联系了他。但是设计师又不想重复以前的方案,所以找到我合作。对于这个户型优化,最主要的是如何打破设计师原方案的布局,这将是整个设计的关键所在。

图片
图片
《设计要求》
Design requirements
图片
图片

原方案


设计师把他的方案发给我看的时候,还担心会不会影响我的思路,其实有时候确实会存在这种问题,因为人的第一印象非常重要,这就是为什么我们大部分时候只能做出一版方案的原因。

如果看过我写的书的小伙伴,就会明白我做方案的套路和方法。我从来不会为了创意去做方案,而是以解决户型问题和用户需求为核心,然后才会赋予空间一些独特的创意手法,比如墙体构成、造景等设计元素。
原来他做的那个方案,我们就不去分析了,我们还是直接看下这个户型到底该怎么做吧。


改造之前/BEFPRE

图片
问题一:入户门厅没有太多可变性,无非就是进门的端景造型怎么设计,难以突破原方案的布局思路。


图片
问题二:走道区域过于狭长,且公卫的门正对着卧室门,不仅容易造成心理上的不适,还影响行走的舒适体验。主卧空间虽然宽敞,但布局显得有些浪费,需要重新整合内部格局,以打造一个高品质的套房。


图片
问题三:主卧空间虽然宽敞,但布局显得有些浪费,需要重新整合内部格局,以打造一个高品质的套房。

以上就是原始户型中存在的一些主要问题,需要我们在后续优化时重点关注。其实还有一些其他的问题,但我个人认为这些问题对后续方案的优化影响不大。不过,大家也可以根据自己的经验来判断,找出你认为不合理的地方。
那么这个方案该如何设计呢?既不能与原有方案相似,又要符合用户的使用需求。



改造之后/AFTER

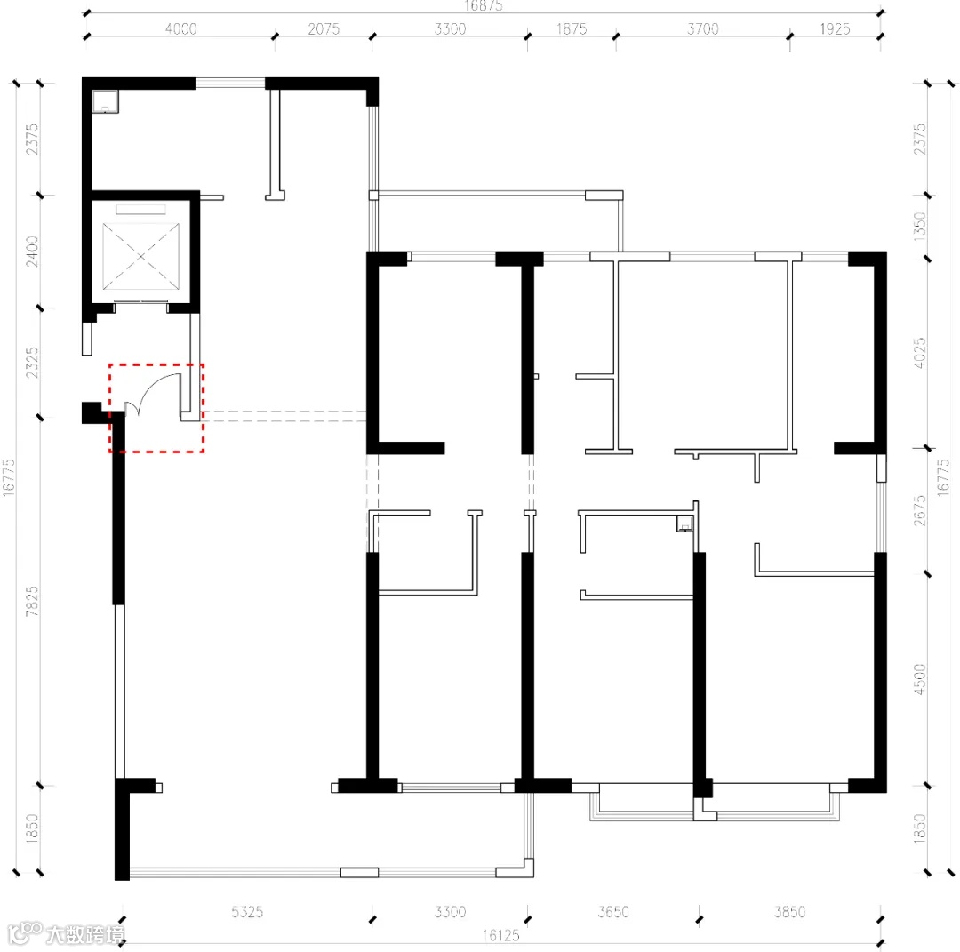
破解一:重新调整入户门的位置,不仅避免了入户与客厅相对,还使玄关区域更加开阔大气,进出动线也更加流畅舒适。

【声明】内容源于网络
0
0
本设网
本设网公众号隶属于本设网络科技有限公司旗下品牌,本设网致力于打造最精品设计的资讯平台。专注建筑、景观、室内、艺术、产品等领域的品牌建设,搭建各领域之间交流及服务的设计平台。
内容 278
粉丝 0
本设网 本设网公众号隶属于本设网络科技有限公司旗下品牌,本设网致力于打造最精品设计的资讯平台。专注建筑、景观、室内、艺术、产品等领域的品牌建设,搭建各领域之间交流及服务的设计平台。
总阅读1
粉丝0
内容278