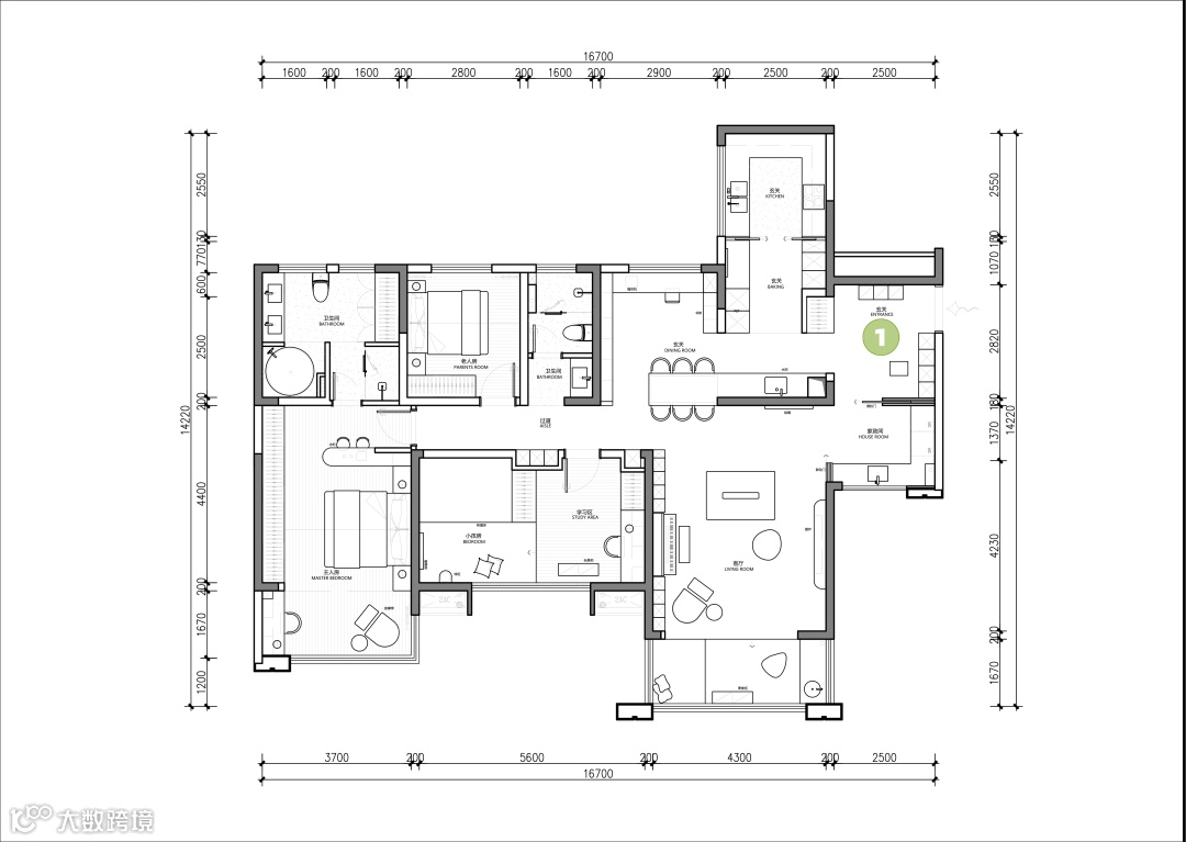
室内面积:162㎡
居住人员:4人
**文章最后有:CAD源文件**
三代人同住的房子,亲情陪伴式布局有“乐趣”
问题说明
三代同堂之家(夫妻、9岁孩子、帮忙带娃的婆婆同住),需兼顾多元生活需求:中西厨双配置,操作台面宽敞实用;独立家政间高效收纳清洁工具,让日常整理更流畅。摒弃传统封闭式客厅,打造开阔流动的公共空间——取消固定电视墙,沙发可灵活移动,既作孩子自由活动区,亦能化身钢琴演奏角。儿童房特别规划玩耍区,释放9岁孩子的活泼天性。主卧配备沉浸式浴缸,缓解一天疲惫;针对女主人衣物收纳需求,扩大主卫空间并增设充足储物,解决衣物分类难题。整体布局以"全龄友好"为核心,从夫妻的烹饪习惯、女主人的收纳焦虑,到孩子的成长空间、老人的日常动线,通过科学规划让每个家庭成员的生活需求都被温柔安放,构建既实用又有温度的家庭共同体。
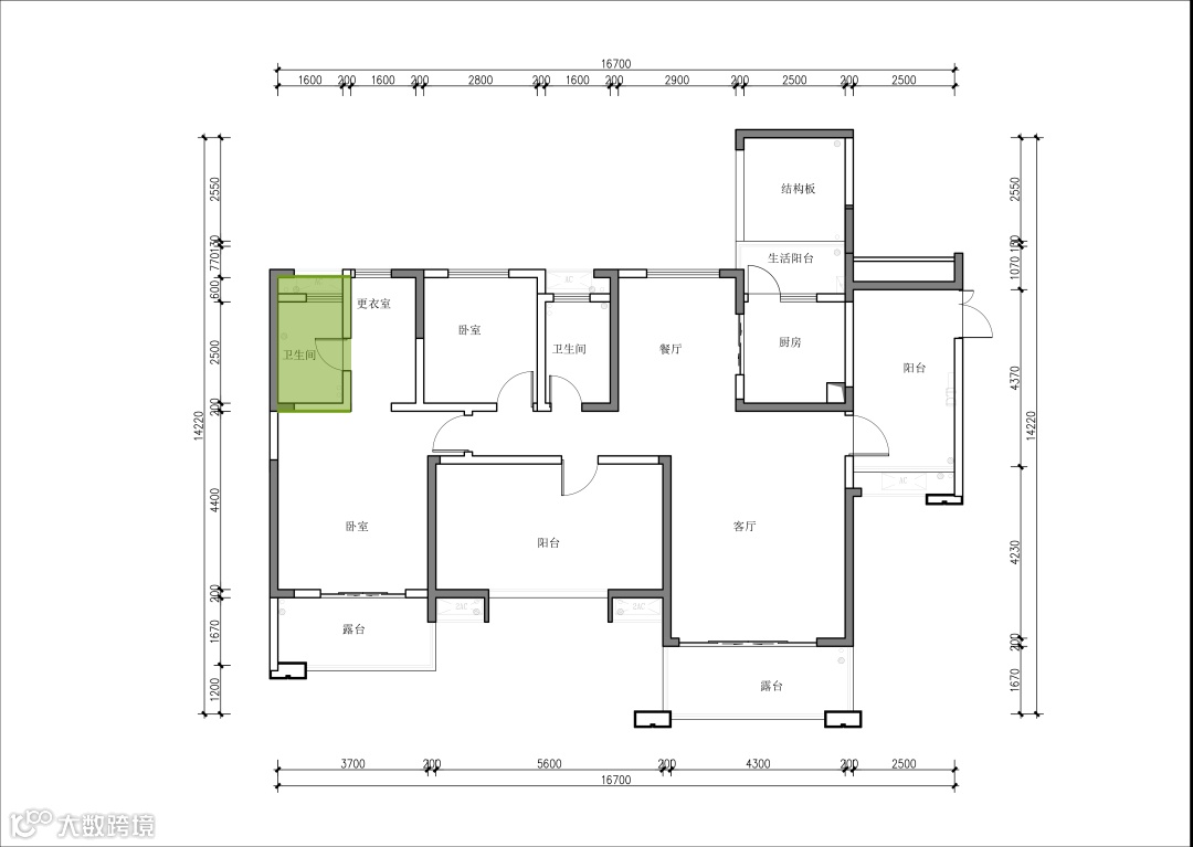
剖析1▶主卫生间尺度狭窄,浴缸摆放尺度不够,空间整体利用率不足
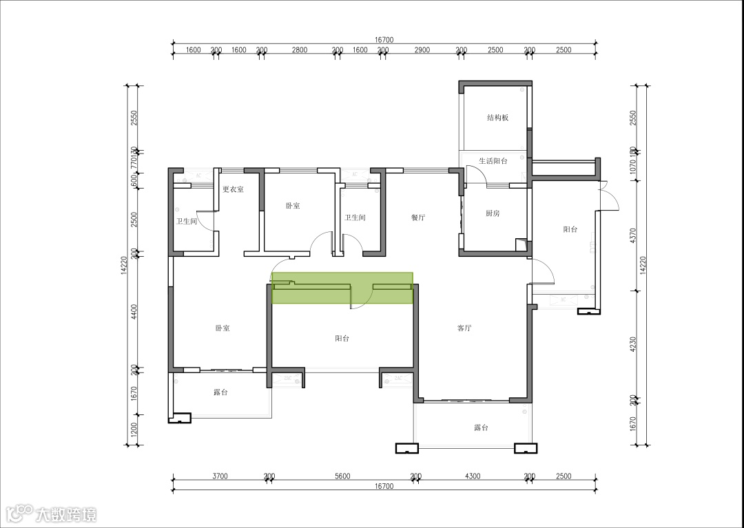
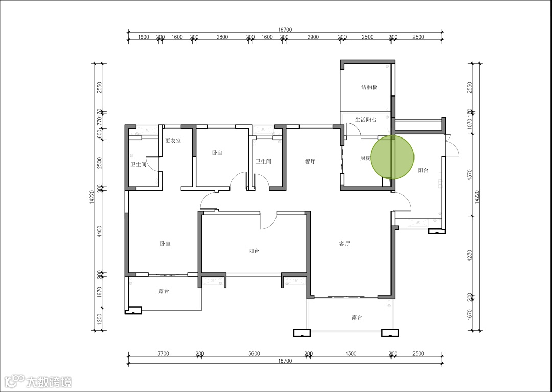
剖析2▶玄关进出厨房动线被隔墙遮挡,动线行走到厨房距离太远

