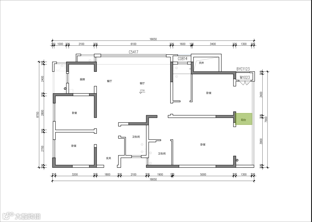
室内面积:149㎡
居住人员:4人
**文章最后有:CAD源文件**
客厅+书房“一体化”家庭亲子互动与成长型空间改造
问题说明
二胎家庭,姐姐刚上初中,弟弟读小学,满足全家互动与学习需求。希望整体空间开阔通透,减少冗余隔断,提升视觉与活动舒适度。动线设计上,想融入趣味元素,比如在走廊或功能区过渡地带设置互动节点(如地贴游戏、可移动引导架),既满足孩子活泼好动的天性,又保障安全。重点是将书房“客厅化”,需要功能房、书桌或动线有趣味,其次姐姐写作业、弟弟翻绘本时,家人坐在沙发上也能随时陪伴,增强空间连通感。同时,强化客厅的亲子互动属性,打造能让全家人自然围坐交流的区域。考虑到姐弟年龄差异,活动区需预留灵活调整空间,姐姐的房间需要考虑更大,安排独立的学习区,弟弟房间安排独立睡眠区。
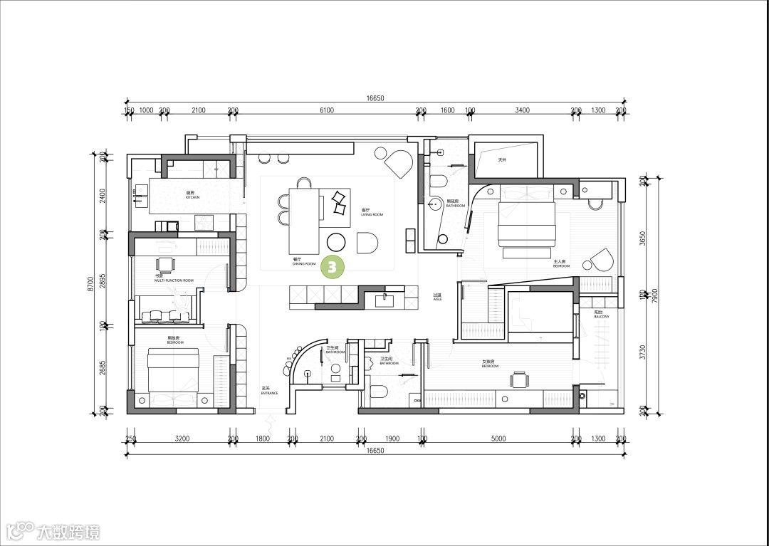
剖析1▶过道狭窄,卫生间门洞正对过道门垛,立面不整齐。
剖析2▶门洞正对卫生间,且直接与客厅区相邻,私密性差。
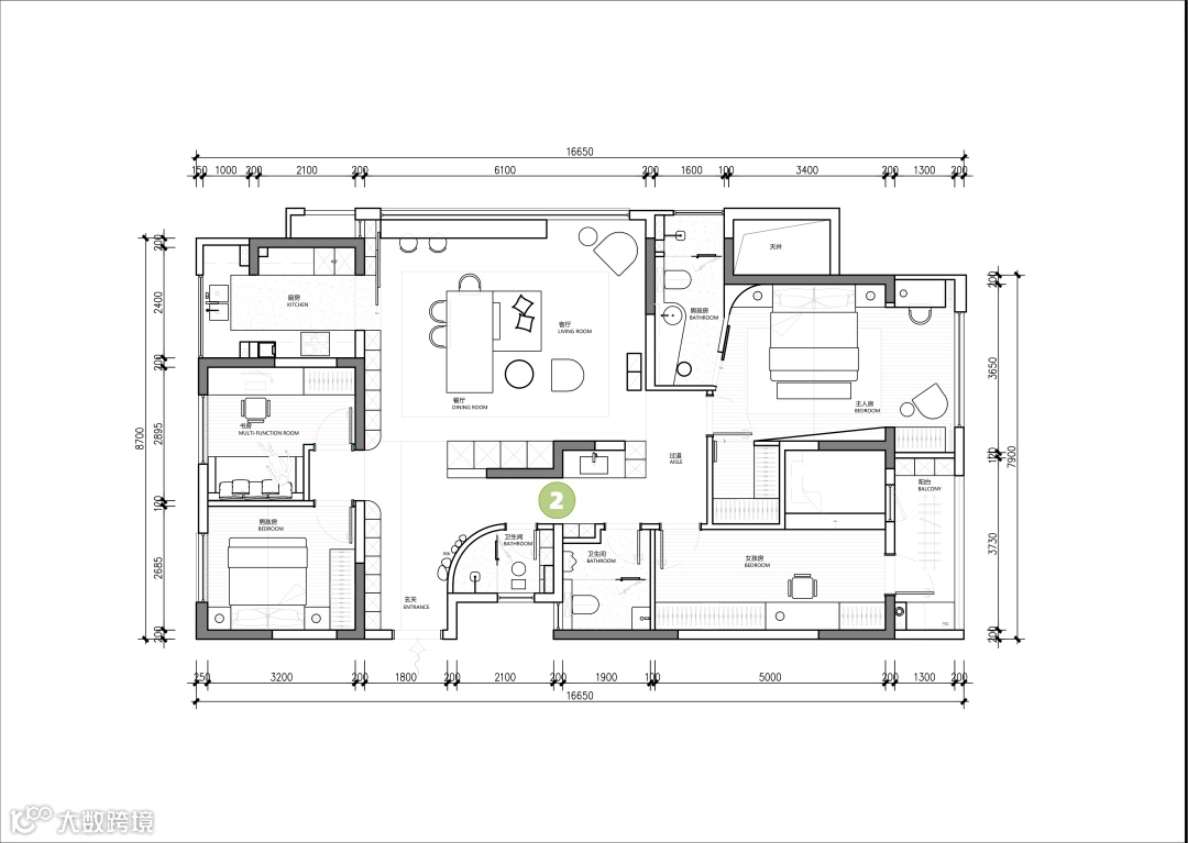
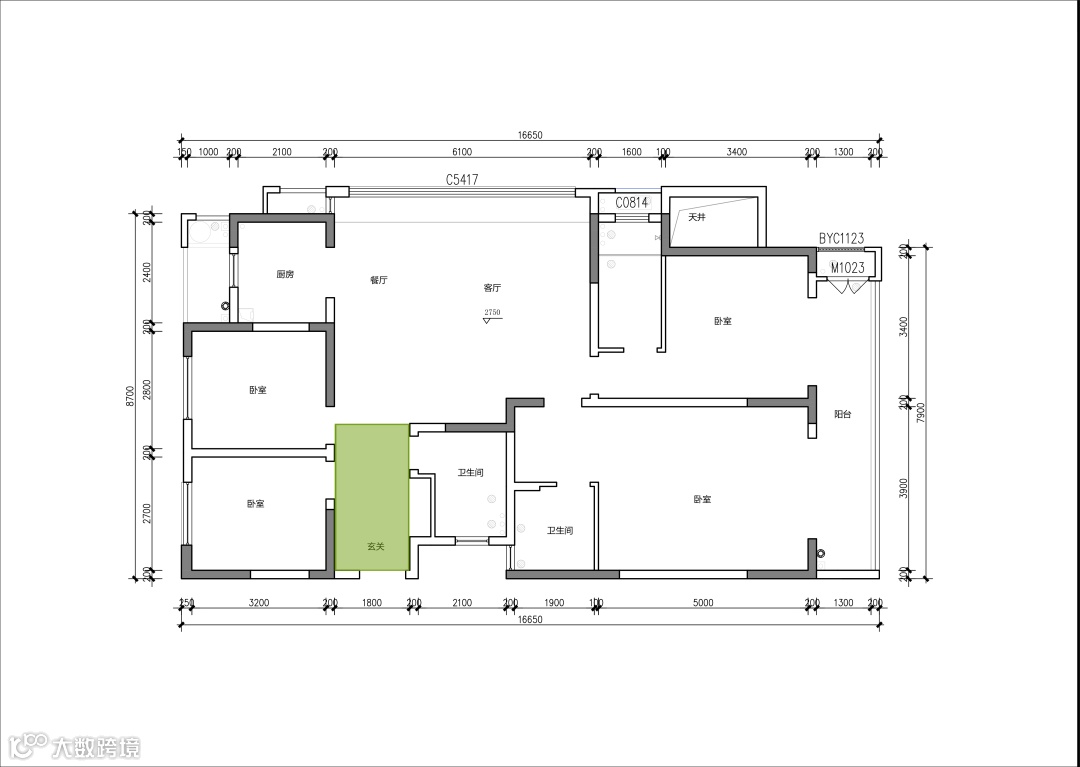
解析2▶将原本独立的卫生间墙体打通,整合为一个开阔通透的大空间,巧妙保留Z字形承重墙结构,既确保建筑安全,又形成流畅的环形动线穿插。左侧规划为相对独立的淋浴空间,还能考虑泡脚的位置;右侧则合理布局马桶与洗漱区,满足日常洗漱需求。在Z字形墙体旁精心划分出洗手台盆区域,台面选用耐污易洁材质。其侧面贴心设置家政收纳柜,采用分层分区设计,便于分类存放清洁用品,让空间既实用又整洁有序。


