导语:2023年的旅程已经完美收官,但新的一年我们不会停歇!我们将倾注更多的心血和努力,确保每一位热爱学习的设计师都能得到精心教导,砥砺前行,绽放无尽的光彩。
欢迎大家来到三哥方案设计特训营第二期!在第一堂课上,我们深入研究了室内设计的基本原理,了解了方案设计的核心概念和技巧。并通过讲、练、评的教学模式,让学员在第一节课都收获颇丰,释放出了自己的设计思维能力。
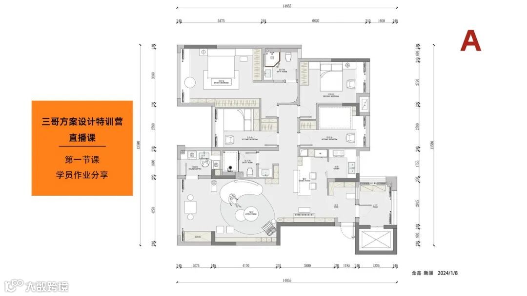
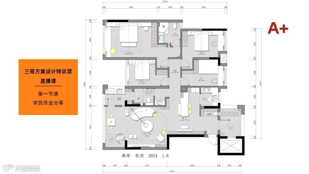
现在,我们将分享一些学员精彩的作业。



、

















这套课程不仅仅教你如何优化方案,更重要的是它会帮助你拓展思维。因此,在每堂课上,我们都会提供多种不同的思路,以确保学员真正理解方案优化的核心思维。
课程特色:我们注重培养学员的创造性和解决问题的能力。每一堂课都会以实际案例为例,演示多种设计思路和解决方案,以启发学员的创意潜力。
学员互动:课程鼓励学员积极互动,分享他们的设计思路和经验,从而推动学习氛围,加深对核心思维的理解。
▲学员最真实的反馈,才是对老师对大的肯定



▲老师真正在社群里1对1点评哦!

▲将来你一定会感谢现在努力的你

▲不管在忙,都抽时间做作业,你还有什么理由不学习呢?

▲高要求,一直是我们的教学标准



▲看到你们这么努力,三哥的付出是值得的
学习实际上是一种修行,只要付出努力,就一定能够达到目标,获得自己期望的结果。
经常有人问我,什么才算是一个好的方案?我的理解是,一个好的方案是那个能够被客户接受,满足他们需求的方案,因为这才是最关键的。虽然独特性和创意在设计中也很重要,但并不是决定方案好坏的唯一因素。
在设计中,以人为本是至关重要的。这就意味着我们需要深入了解我们的目标受众是谁,是那些真正欣赏并接受我们的创意,还是更注重实用性的客户。对于教学,我们始终秉承一个理念,即教授给学员最实用、最符合市场需求的知识和技能。
在本期,我们分享到这里,如果您想了解更多信息,欢迎联系我们的三哥助教!


