大数跨境

【户型改造】刚需双套房打通,创建自由布局“去样板化”

【户型改造】刚需双套房打通,创建自由布局“去样板化” 本设网
2026-02-07
0
导读:刚需双套房打通,创建自由布局“去样板化”

Plane scheme optimization thinking

155

3


**文章最后有:视频讲解 / CAD源文件**


刚需双套房打通,创建自由布局“去样板化”



常住夫妻及4岁女儿居住的房子(两套打通),保留三间卧室(其中一间做书房)。儿童房需要紧邻书房便于学习。洗衣晾晒需要配备升降晾衣架及独立的洗衣间。可以考虑开放式厨房,最好能有中西厨。餐厅区域需要备餐准备,满足收藏展示需求。客厅需要去“样板化”,增添生活乐趣。打造亲子陪伴为主题,打破传统的布局思维。主卫需要预留浴缸位置,提升舒适度。飘窗均可拆除,整体布局兼顾功能性与家庭温馨感。




/BEFPRE

剖析1T形承重墙影响横厅整体布局,直接硬性分割客厅;满足不了双厅的整体性。

剖析2厨房尺度紧张,操作台面不能满足家电设备摆放,操作效率低。

剖析3入户主双入口选择困难,门厅尺度并不开阔,收纳存储面积不足。
以上就是原始户型中存在的一些主要问题,需要我们在后续优化时重点关注。其实还有一些其他的问题,但我个人认为这些问题对后续方案的优化影响不大。不过,大家也可以根据自己的经验来判断,找出你认为不合理的地方。
那么这个方案该如何设计呢?




改造之后/AFTER
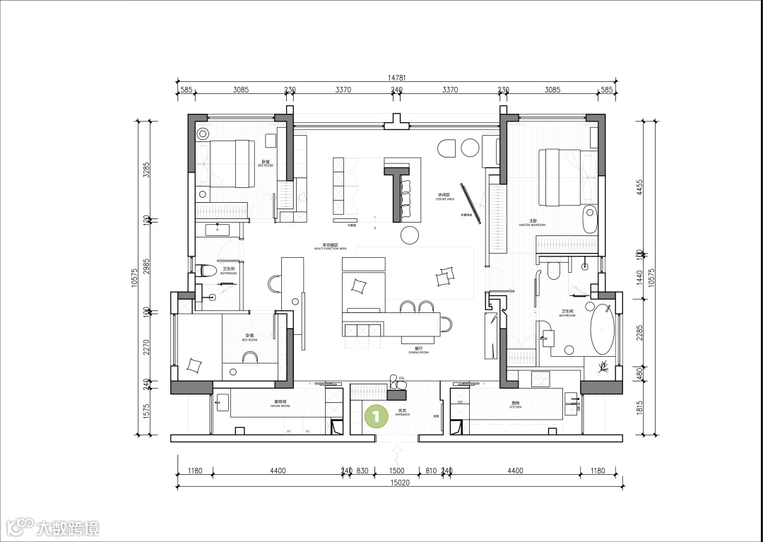
解析1玄关以满足日常收纳为基础进行改造,首先封闭左侧门洞,顺势规划出衣帽间与鞋物架区域;开阔的空间不仅满足拆快递等临时需求,更自然形成内外过渡的独立门厅。整体收纳以L形布局为主,兼顾实用性与空间秩序,让玄关从单纯的过渡区升级为功能复合的生活场景。

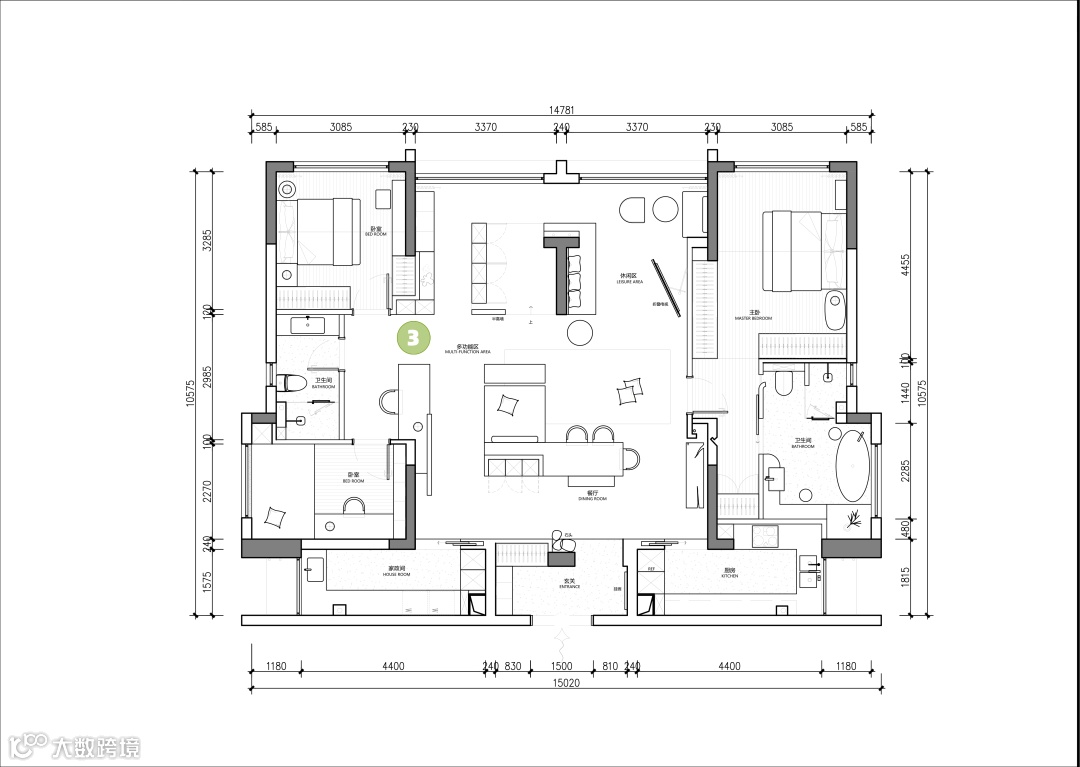
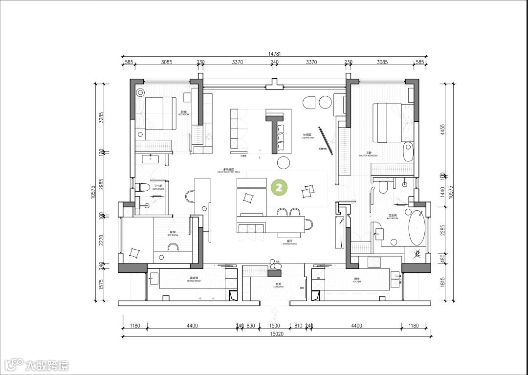
解析2多元组合式餐岛一体化设计,打破传统边界,营造多元交流与互动场景。模块化单人沙发灵活组合,随需落座;定制吧台柜体通顶设计,清晰划分过道边界,引导动线分流。中央区域特别规划儿童表演小舞台,延展空间活动范围,让家成为亲子共乐的活力场域

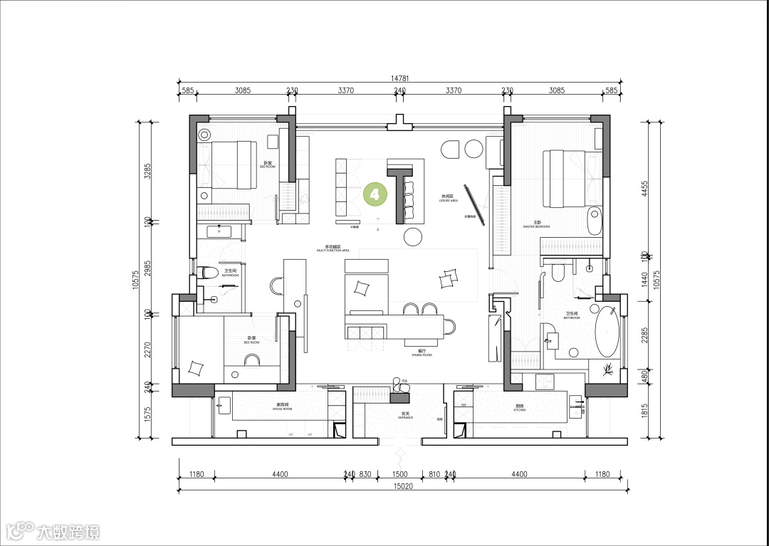
解析3公区规划临时办公/学习书吧台,既能满足日常书写需求,又与相邻空间形成良好互动;吧台区域增设咖啡机,丰富使用场景。定制隔墙板特别融入涂鸦墙与小黑板设计,为孩子提供创作天地。通过错位布局增强空间视线的通透感,让功能性与美观性自然融合,构建更具活力的公共活动场域
解析4为好动的宝宝定制地台,打造独立学习启蒙空间;内置绘本收纳柜,既存放书籍又兼顾亲子陪伴的私享场景。后期移除柜体即可转换为健身区,让地台随孩子成长实现功能的多阶段升级,实用性与灵活性兼具。
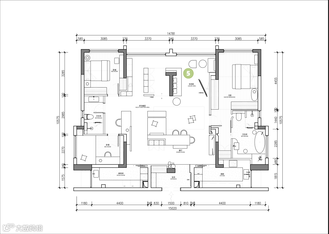
解析5配置折叠电视,既满足宝宝观影乐趣,折叠设计又适配用餐区观影场景;阳台单体沙发组合灵活,便于家长陪宝宝讲故事。拓展空间功能的自由度,与后空间动线穿插联动,整体连贯性更优。
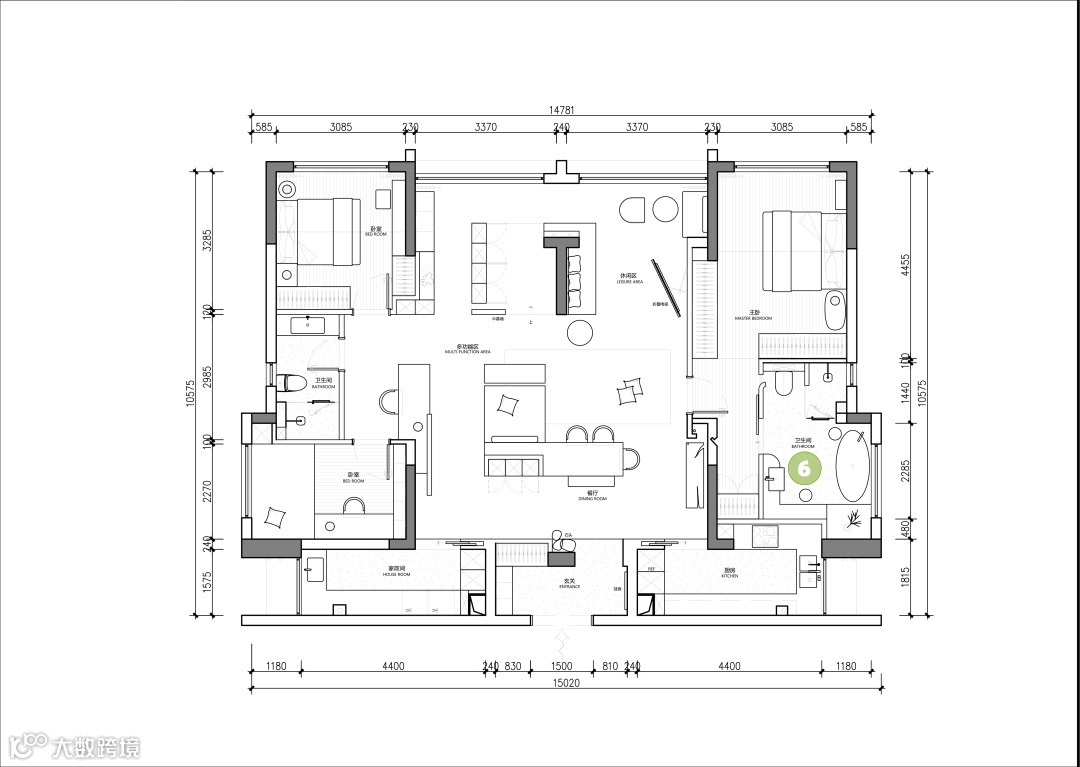
解析6主卫生间以四件套独立分区设计,独立淋浴房内台盆、马桶、浴缸以方正四角布局,中心留出宽敞活动区;马桶入厕区墙体采用局部弧形截断构造,中部嵌入艺术玻璃隔断,既优化使用动线,又提升空间通透感。
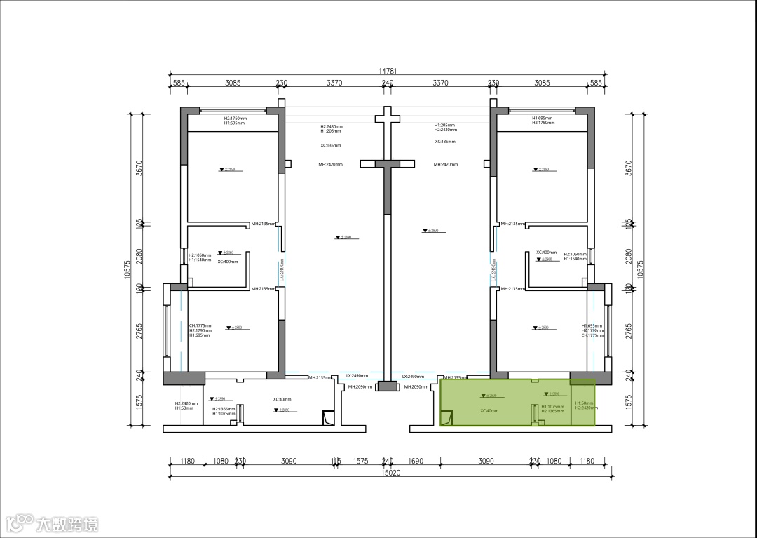
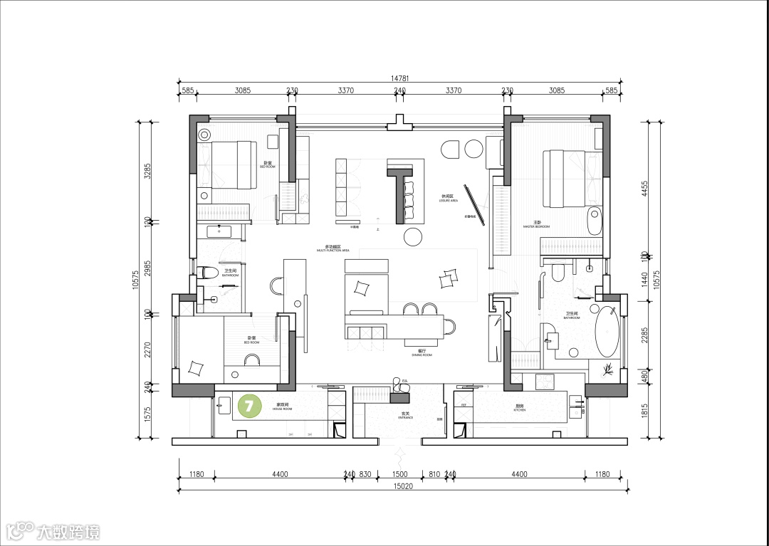
解析7原左侧厨房区域改造为独立家政间,既保留排水功能又兼顾通风条件。此处衣物清洗归类更便捷,可收纳扫地机器人、拖地机、吸尘器等清洁设备,还能满足熨烫需求,同时整合烘干晾晒功能,形成从清洗到收纳、护理的全流程家政空间,家务操作动线更集中高效。


Designer  设计师

INFO


- Designer | 设计师 -

彭波|尼古拉斯·三哥

- Project area | 项目面积 -

155㎡

-

内容策划 / Presented

策划 Producer :殷永贵

撰文 Writer:三哥

图片版权 Copyright :本设


**购买可获取**

CAD源文件 / 视频讲解



【声明】内容源于网络
0
0
本设网
本设网公众号隶属于本设网络科技有限公司旗下品牌,本设网致力于打造最精品设计的资讯平台。专注建筑、景观、室内、艺术、产品等领域的品牌建设,搭建各领域之间交流及服务的设计平台。
内容 278
粉丝 0
本设网 本设网公众号隶属于本设网络科技有限公司旗下品牌,本设网致力于打造最精品设计的资讯平台。专注建筑、景观、室内、艺术、产品等领域的品牌建设,搭建各领域之间交流及服务的设计平台。
总阅读1
粉丝0
内容278