室内面积:275㎡
居住人员:三代人+两个小孩
**文章最后有:CAD源文件**
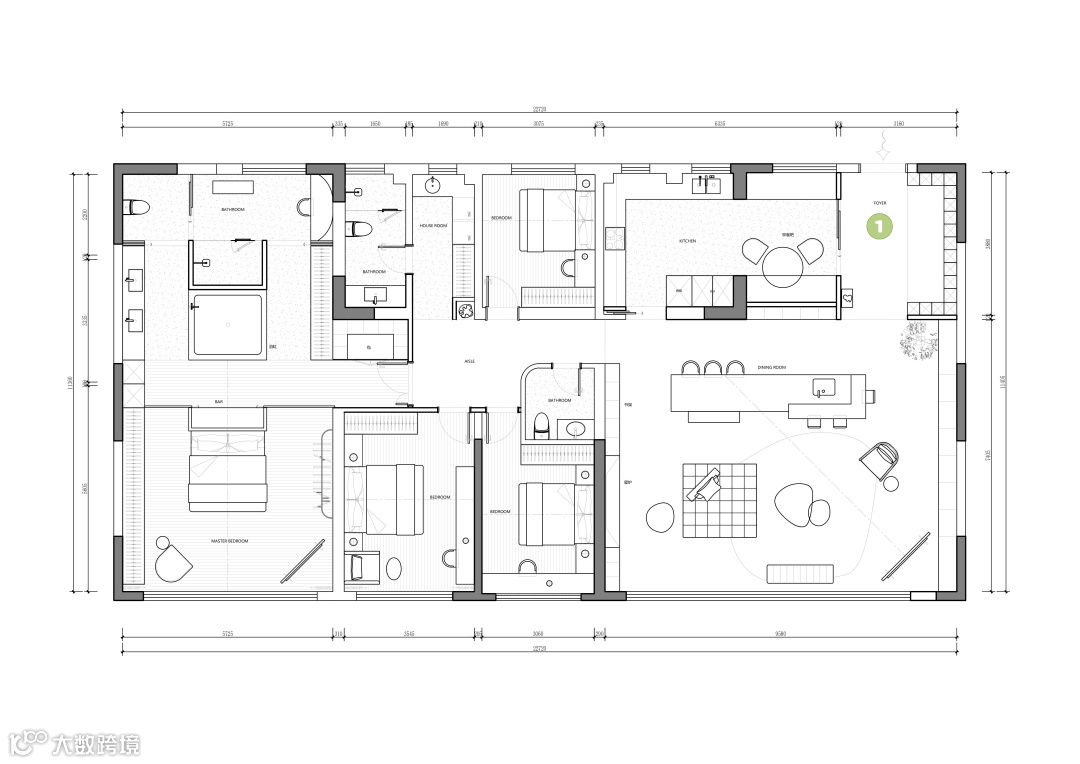
“全功能住宅”松弛感+酒店风主卧+互动吧台
问题说明
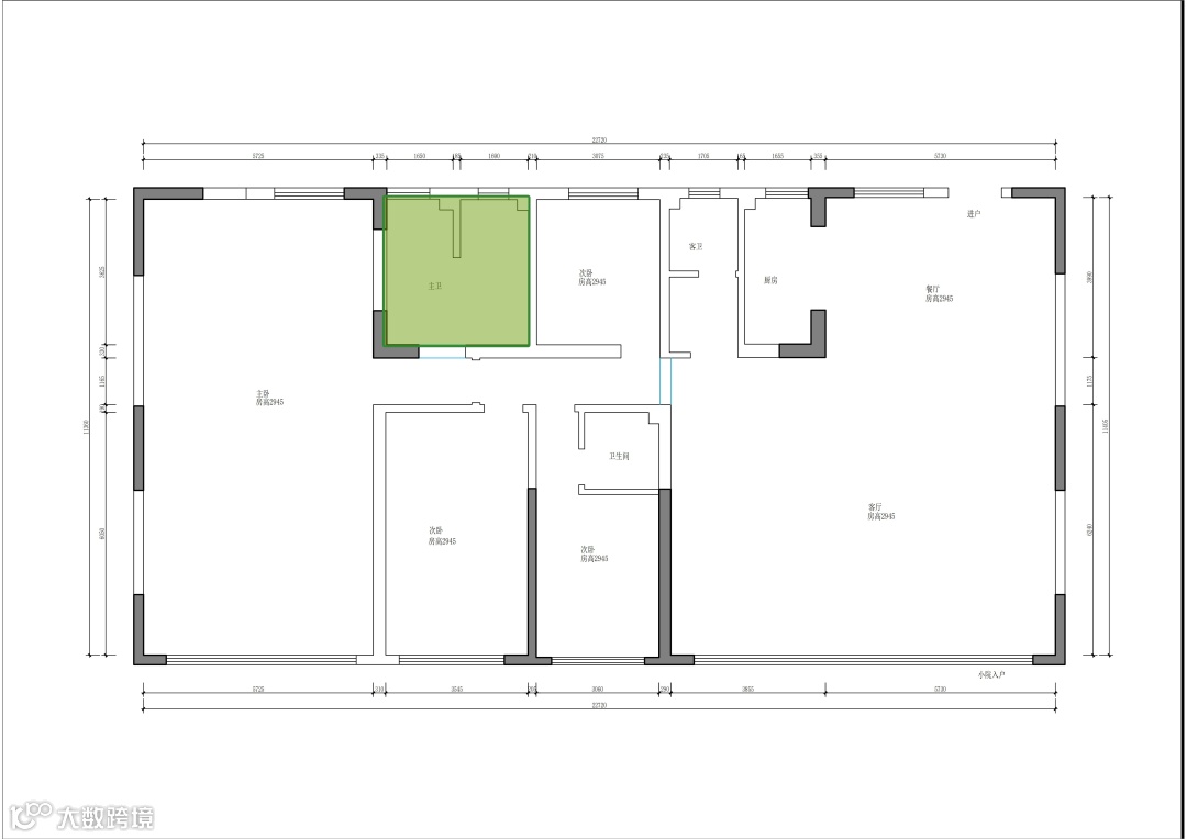
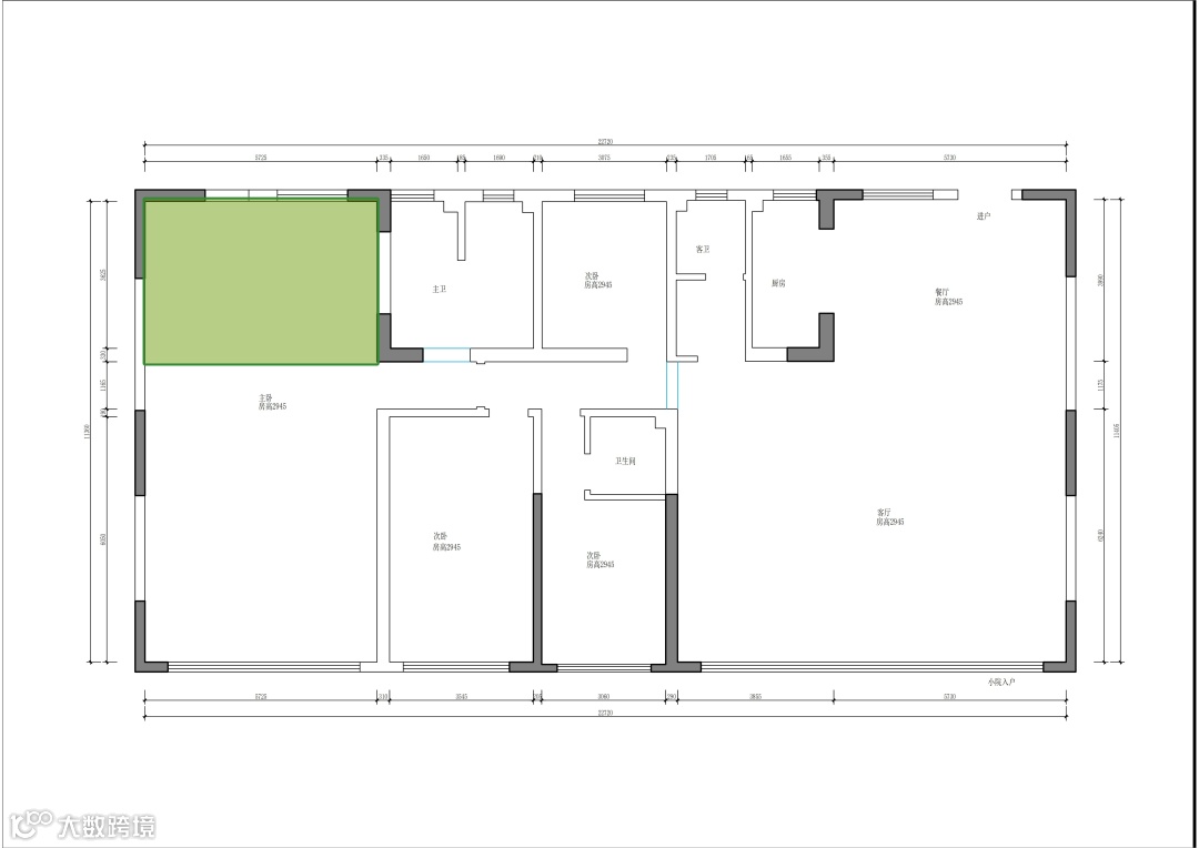
275㎡住宅需满足三代人居住需求,核心保留4个房间——南侧专属老人房(适配老人偶尔入住的舒适需求)、两间儿童房(贴合孩子成长居住)及一间客房(承接亲友来访),同时增设独立客人卫生间,提升访客使用私密性与便捷度。玄关作为入户第一空间,需规划充足收纳区域,妥善容纳鞋履、杂物等日常物品。厨房采用可开可合的开放式设计,既保证烹饪时的通透互动,又能灵活隔绝油烟,搭配大吧台设计,兼具料理辅助、休闲小聚等多重功能。此外,需单独设置独立家政间,集中放置清洁工具、洗衣机等,让家务处理更高效有序。整体空间布局以“松弛感”为核心基调,主卧室重点参照酒店民宿风格打造,主卫生间可以改造(位置替换就近区域),围绕宽松自由的核心需求,营造兼具舒适感与惬意感的休憩氛围,让居住者在日常中既能享受功能完备的生活便利,又能感受松弛自在的空间体验。
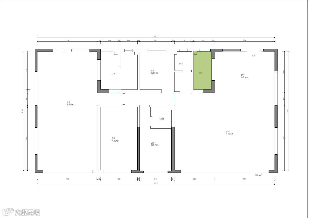
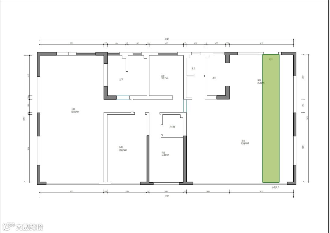
剖析1▶进门无遮挡形成穿堂格局,缺乏独立玄关空间?
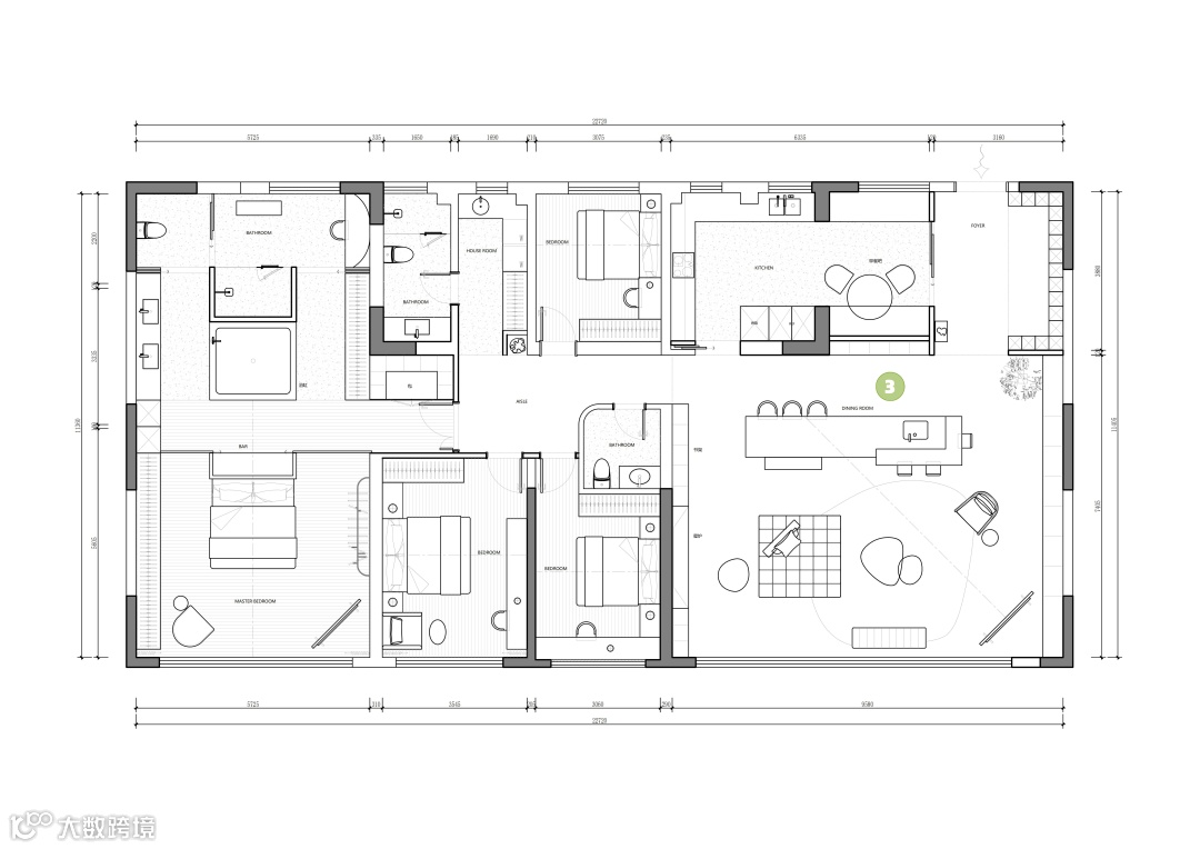
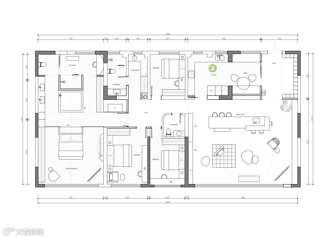
剖析2▶承重墙垛限制,厨房窄小?
解析2▶厨房内部采用L 型 + 一字型双台面组合设计,在 L 型台面旁的承重墙区域,定制嵌入冰箱、烤箱的一体化电器柜,实现厨电集中收纳。进出餐厅的位置,加装上下暗藏式推拉门,可灵活开合厨房门洞,打造出流畅的环绕式动线。改造后的厨房空间开阔,预留出充足操作尺度,即使两人同时下厨,也能拥有互不干扰的活动范围,大幅提升烹饪效率与使用舒适度。


