大数跨境

【户型改造】“宜居宅设计”(游戏休闲+宠物友好+轻厨轻食)

【户型改造】“宜居宅设计”(游戏休闲+宠物友好+轻厨轻食) 本设网
2026-02-09
2
导读:“宜居宅设计”(游戏休闲+宠物友好+轻厨轻食)

Plane scheme optimization thinking

:204

:2


**文章最后有:CAD源文件**


“宜居宅设计”(游戏休闲+宠物友好+轻厨轻食)

说明

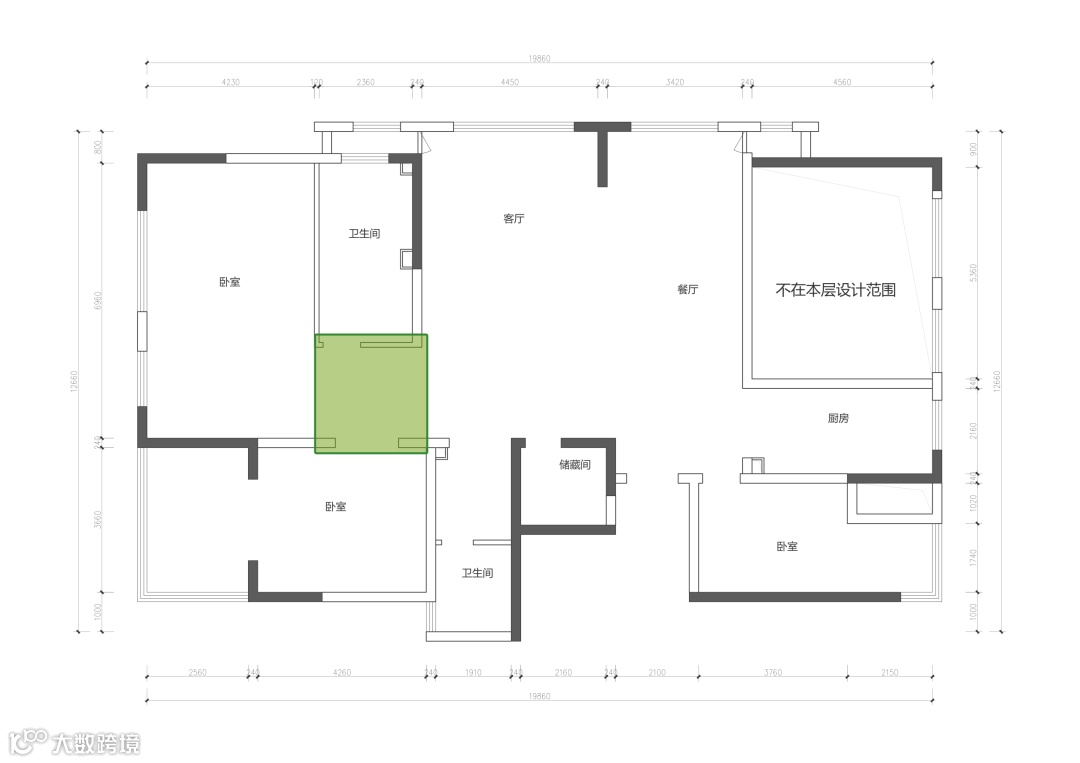
本住宅为夫妻二人专属居所,核心打造轻松自由、无拘无束的居住氛围,整体采用去客厅化布局,打破传统空间功能划分,构建灵活通透的一体化核心活动区。夫妻二人酷爱打游戏,需在此区域设计可容纳两人同时沉浸式游戏的空间,搭配舒适座椅与合理动线,兼顾视觉舒适与操作便捷,同时预留休闲休憩角落,让空间兼具娱乐与放松属性,彻底摆脱布局束缚。需深度适配养猫养狗需求,专门预留宠物专属活动、休憩区域,动线规划贴合宠物习性,避免与主人活动区冲突。保障人与宠物舒适共处、亲密互动。厨房定位轻厨模式,因夫妻极少下厨,仅用于制作简餐及宠物餐食,无需复杂布局。设计突出简洁便捷,预留基础烹饪设备摆放位与充足收纳空间,分类存放简餐食材、宠物粮及厨具,兼顾操作效率与空间整洁,适配二人随性的饮食节奏。




/BEFPRE

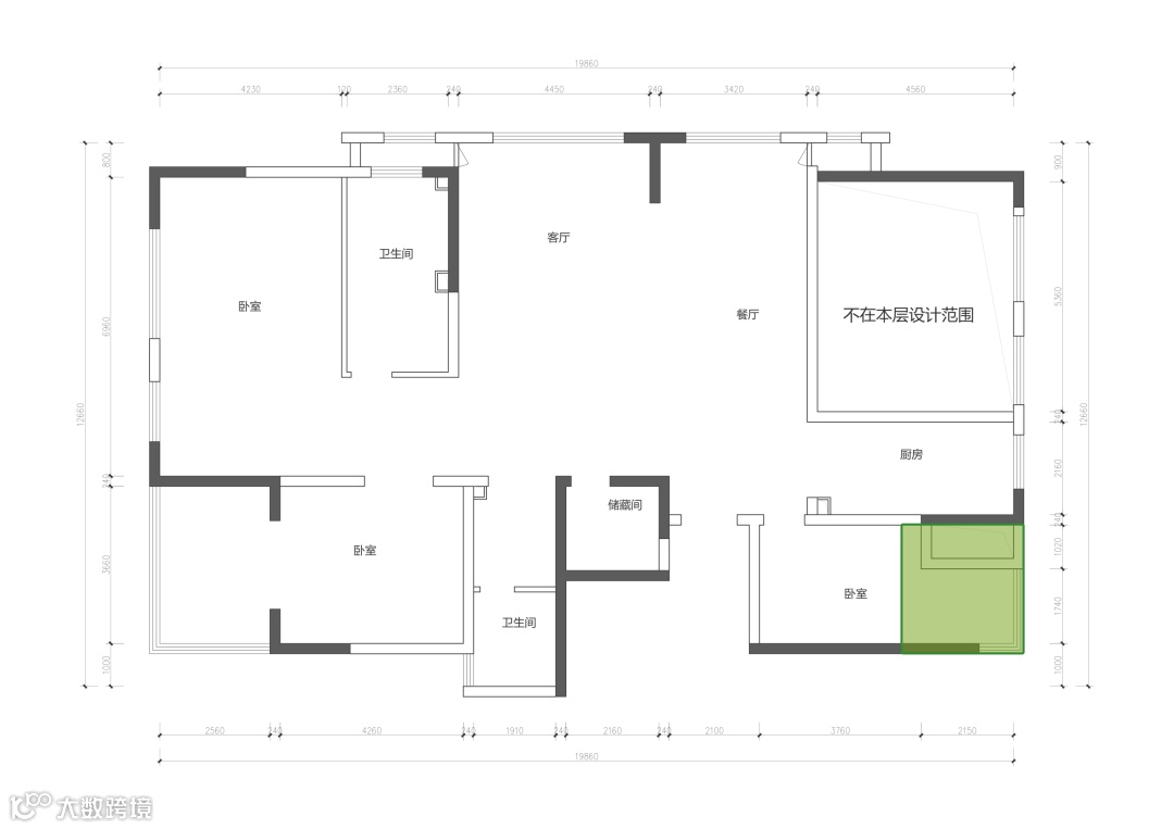
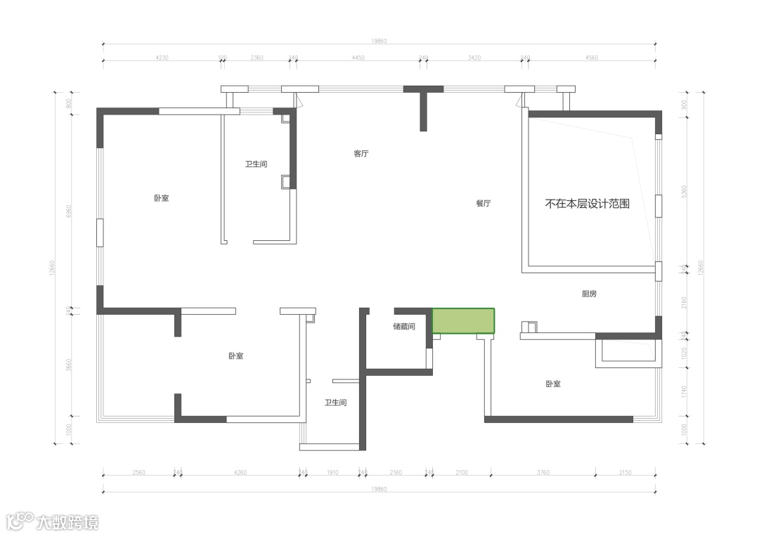
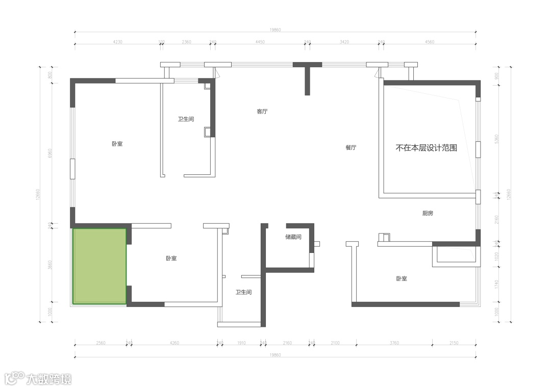
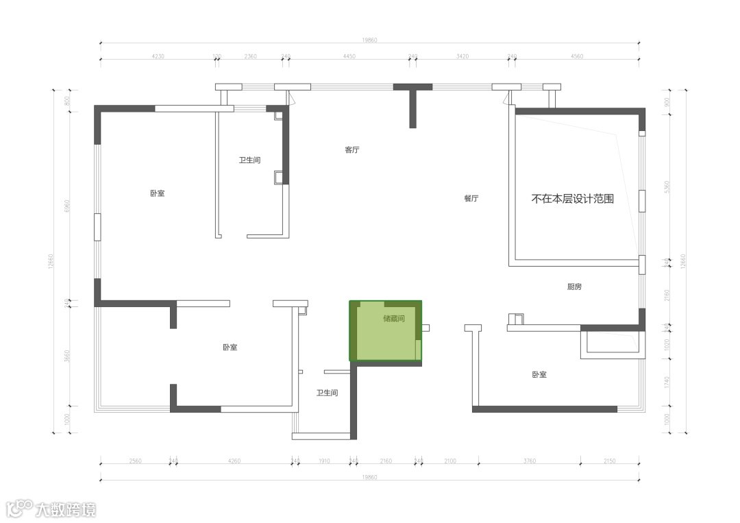
剖析1主门厅鞋物收纳尺度不足?

剖析2房间阳角突兀家具组合不灵活?

剖析3门洞位置分布不整体?

剖析4功能利用单一,使用频率不高?

剖析5内阳台扩建,创意主题不明确?
以上就是原始户型中存在的一些主要问题,需要我们在后续优化时重点关注。其实还有一些其他的问题,但我个人认为这些问题对后续方案的优化影响不大。不过,大家也可以根据自己的经验来判断,找出你认为不合理的地方。
那么这个方案该如何设计呢?



改造之后/AFTER
解析1打造超有氛围感的二人专属小火锅区,以吧台为核心,两人位用餐区;搭配高脚凳围坐涮锅,视线通透无遮挡,边吃边聊互动感拉满。玄关进门动线巧妙右引,专属外卖台藏着拆快递的小快乐,功能分区清晰,烟火气与趣味感双双拉满,氛围感直接拉满。

解析2厨房采用环绕动线吧台设计,完美衔接简餐功能,打造多功能互动区。将厨房布局于角落,规划成 L 型高效动线,兼顾收纳与操作。虽平日下厨频次不高,但核心设备一应俱全,更贴心预留宠物专属用餐加工台面,满足毛孩子日常饮食需求。动线流畅且细节拉满,烟火气与生活趣味双向在线。

解析3空间专为猫狗打造专属活动区,布局清晰且贴合习性。外侧设置 L 型攀爬柜,搭配定制猫爬架,为猫咪提供充足的攀爬与玩耍空间,满足其天性需求。中央预留开阔活动范围,搭配专用水槽,方便日常清洗打理,同时巧妙规划通风角度,保障区域空气流通。墙面打造成长记录墙,留存毛孩子点滴瞬间,狗狗则拥有独立房间,人宠互动的场景温馨且有序。

【声明】内容源于网络
0
0
本设网
本设网公众号隶属于本设网络科技有限公司旗下品牌,本设网致力于打造最精品设计的资讯平台。专注建筑、景观、室内、艺术、产品等领域的品牌建设,搭建各领域之间交流及服务的设计平台。
内容 0
粉丝 0
本设网 本设网公众号隶属于本设网络科技有限公司旗下品牌,本设网致力于打造最精品设计的资讯平台。专注建筑、景观、室内、艺术、产品等领域的品牌建设,搭建各领域之间交流及服务的设计平台。
总阅读0
粉丝0
内容0