大数跨境

【户型改造】“二胎 + 老人同住”住得下、住得好、不乱糟糟

【户型改造】“二胎 + 老人同住”住得下、住得好、不乱糟糟 本设网
2026-03-18
2
导读:四室三卫二胎全龄住宅—尼古拉斯·三哥

Plane scheme optimization thinking

:156

:三代人


**文章最后有:CAD源文件**


“二胎 + 老人同住”住得下、住得好、不乱糟糟

说明

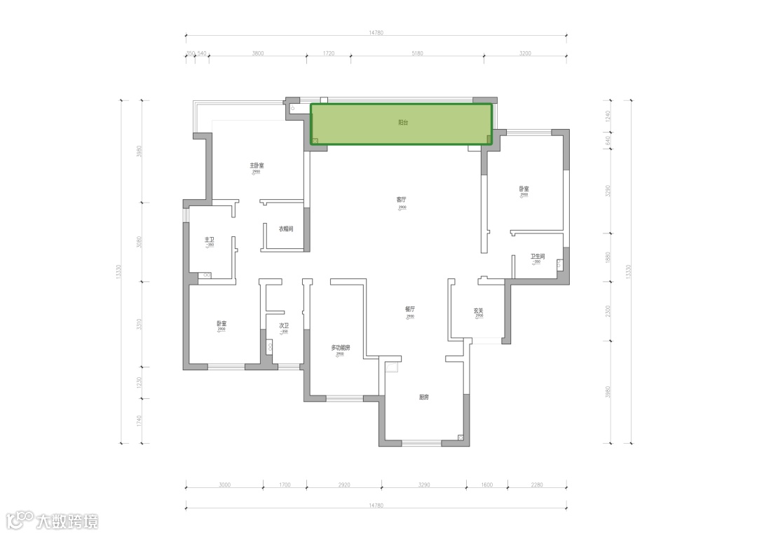
该住宅原户型为四间房,业主要求在空间优化改造的基础上,保留四室,同时保留两个套间并设置三个卫生间,满足多代同堂的居住与隐私需求。家庭成员包括夫妻二人、10 岁孩子及即将迎来的二胎,且需接老人长期同住,整体空间设计需兼顾儿童成长、老人居住便利与家庭日常使用。功能布局上,要求客厅开阔通透,具备充足的活动与互动空间,满足家庭休闲、孩子玩耍及待客需求;必须设置独立家政间,梳理家务动线,提升空间整洁度。厨房要求面积充足,可采用封闭式搭配岛台形式,预留足够操作台面与储物空间,满足女主人高频次烹饪需求。全屋需强化收纳系统设计,针对衣物、杂物、儿童用品、老人生活用品等做分类收纳,提升空间利用率。男主人从事经营工作,注重居住环境的整洁与秩序感,整体改造以实用、舒适、宜居为核心,在有限空间内实现功能最大化,让动线更合理、空间更开阔,适配二胎家庭与老人同住的长期生活模式,兼顾安全性、舒适性与成长性。



/BEFPRE

剖析1飘窗改造,打造趣味性功能,还能观景?

剖析2衣帽间尺度窄,收纳不充分,很难归类存储?

剖析3阳台利用扩进客厅,衣物晾晒遮挡视线?



剖析4进出动线厨房太绕,视野不开阔?


剖析5改建卧室房间尺度小?


以上就是原始户型中存在的一些主要问题,需要我们在后续优化时重点关注。其实还有一些其他的问题,但我个人认为这些问题对后续方案的优化影响不大。不过,大家也可以根据自己的经验来判断,找出你认为不合理的地方。
那么这个方案该如何设计呢?



改造之后/AFTER
解析1玄关进门左手侧墙体拆除,打造通透开阔的 L 型玄关格局,整体更显利落大气。搭配斜凳设计,兼顾实用与美感,归家瞬间便有舒适从容的体验。L 型鞋柜作为核心收纳,分区清晰,满足一家人日常鞋物有序归置,专门区分干净鞋与外出鞋,既卫生又整洁。动线流畅、收纳合理、颜值在线,让入户第一空间兼具设计感与生活温度

解析2厨房向外拓展,大幅增加收纳、储物空间与操作台面,打造更从容的烹饪环境。考虑到家庭人口多、未来有二胎计划,且有老人同住,日常下厨频率高,特意将厨房布局优化为U 型布局,操作流畅、转身即取,使用效率更高。同时预留充足位置,将各类家电与柜体自然融入,整体整洁统一,既满足大家庭长期使用需求,又兼具实用与设计感。

解析3过道区域进行功能分割,与过道形成隔断式联动,巧妙划分出一处独立又通透的空间。在此打造一整排定制收纳柜体,兼具实用性与设计感,让原本单调的过道变身多功能储物区。充分考虑未来二胎家庭的生活需求,专门预留出儿童玩具、绘本等物品的专属收纳空间,分类清晰、拿取方便。既优化了动线与格局,又提前为孩子成长做好规划,让居家环境整洁有序、温馨又有秩序感。

【声明】内容源于网络
0
0
本设网
本设网公众号隶属于本设网络科技有限公司旗下品牌,本设网致力于打造最精品设计的资讯平台。专注建筑、景观、室内、艺术、产品等领域的品牌建设,搭建各领域之间交流及服务的设计平台。
内容 278
粉丝 0
本设网 本设网公众号隶属于本设网络科技有限公司旗下品牌,本设网致力于打造最精品设计的资讯平台。专注建筑、景观、室内、艺术、产品等领域的品牌建设,搭建各领域之间交流及服务的设计平台。
总阅读265
粉丝0
内容278