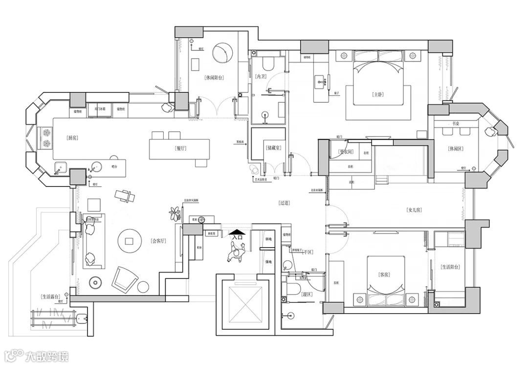
【平面布置图】

整体空间采取简约+北欧的格调基础,然后布置上文艺精致的软装,为主人营造出了一个简单舒适的生活空间,置身其中你会感受到满满的简洁与自然气息。
【玄关】
玄关布置原木色矮柜,柜门以灰白配的设计,墙上挂一个圆镜,布置绿植与花瓶摆饰,带来一个清新自然的画面感。
【客厅】
客厅、餐厅与厨房是一个开放的大空间,整体以北欧文艺的格调,布置出一个简约舒适的轻松氛围。电视墙面积稍小,因此在电视墙左侧加入一个屏风与芭蕉盆栽,增加了空间的清新气息。

水蓝色的布艺沙发,后方背景墙是白色文化砖的墙面,挂一个鹿头装饰,也让空间显得充满北欧的舒适气息。而沙发两侧则是窗户,这样明亮大胆的布置,也彰显出主人年轻不拘一格的生活态度。
金属架的边几与台灯布置,时尚造型的鼓凳,也是让空间显得更加华丽精致而高级。
原木托盘茶几,布置杂志与玻璃花瓶,也是显得更加清新自然。
餐厅厨房采取的是开放式的空间设计,布置餐桌与中岛台,天花木色的吊顶+无主灯设计,显得显得充满文艺与精致的气息。
餐厅与厨房之间的窗户,加入一个飘窗柜,不影响采光,又让生活空间更加情趣舒适。

厨房定制大体积的收纳柜,以白色小白砖的墙面,装上集成灶,让空间充满文艺轻松的实用体验。

在客厅与厨房之间,加入中岛台,这样可以挡住厨房的杂乱,保持客厅区域的美观。
原木餐桌在台面加入岩板,而餐桌则是轻奢范金属材质,整体布置显得更加时尚耐用而高级。旁边过道加入黑板墙的设计,也显得更加小资而情趣。
餐桌上的餐具与玻璃杯、花瓶,也让用餐氛围更加端庄有仪式。
【书房】
书房空间以复古木为假梁造型吊顶,装上一个球形的透明亚克力吊椅,结合透明亚克力的小凳子,也让空间显得更加情趣舒适。看书工作累了,就坐在吊椅上放松片刻,生活轻松而惬意。
【走廊&卫生间】
简洁朴素的过道,木色门框与洗手盆等元素,让空间充满轻松优雅的简约感。而过道右边则是加入了洗手盆+杂物间的设计,让空间更加实用。
洗手盆斜角的设计,结合台上盆,台盆上方是吊柜,布置香薰烛台,整体设计显得精致而文艺。
卫生间以仿大理石的深灰色地砖,结合长条小白砖墙面,壁挂马桶后方的小台面以木质垫上,整体空间也是干净优雅而文艺大气。
【主卧】
主人房整体空间也是以朴素为主,洗手盆也是大胆地设在浴室门外。

分离式的设计,让卫浴空间的利用率更加高效。
蓝色的床头墙,在靠窗位置定制的书桌,布置素雅的床单与窗帘,整个空间显得轻松舒适而自然。
床头左侧摆个木色床头柜,上方极简的金属制吊灯,也让卧室显得更加舒适自然而惬意。
【儿童房】
儿童房采取上下床的设计,布置小帐篷,墙面也加入软木板的设计,软木板上挂满小照片,让空间显得童趣舒适而活泼。
小帐篷,是孩子玩耍的乐趣圣地。
多边形的小角落空间,也是布置飘窗柜与书桌椅,成为孩子学习写作业的私密小区域。
【次卧】
次卧采取实木床铺与床头柜,摆上简约灰色床单,给人简洁而耐用的感觉。
原木床头柜,加入空格,方便随手物品的收纳放置。好了,本次小编的分享就到这里啦,关注小编不迷路哦!
END
让艺术融入生活
在这里发现美好家居生活
金泰恒业装饰
品质家装,好家装精工艺
对您进行一对一专属设计服务
为您匠心筑爱巢

