今天要和大家分享两个相同户型,但因为不同业主的不同需求进行了不一样的设计。对生活的需求不同,方案真的不一样。看别人家的户型图真的没有用哦~还是要根据自己的需求来做设计 (防杠指南:镜像户型,东西户区别)
本案的装修风格是美式风格,房子是男女业主加一个男孩和一个女孩居住,老人会偶尔过来居住,需要保留一个老人房,所以需要保留了四个卧室。女业主比较喜欢柔和温暖的色调,所以选用了淡淡的米黄色系,主要以温馨舒适为主。




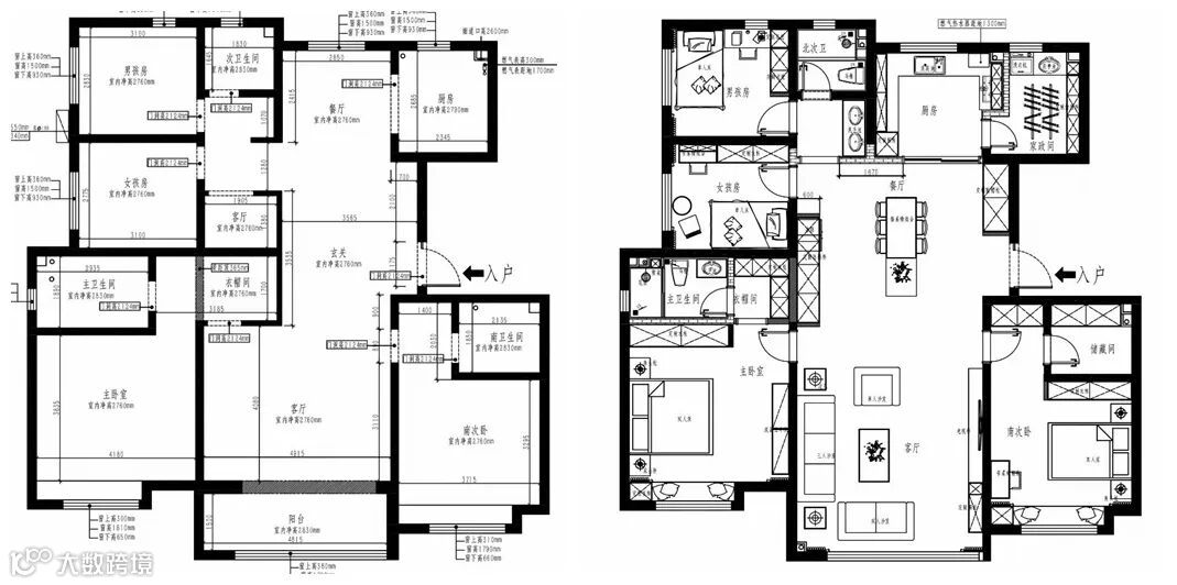
本案设计风格为现代简约风,居住人口为业主夫妇,两位老人常住,一个男孩一个女孩。前期与客户沟通时,同样需要保留四间卧室,然后满足六口人的功能需求,男业主工作需求希望在家里可以增加书房,风格简约大方就可。


餐厅空间在窗边加了一组餐边柜,用来补充收纳的空间。无论设计用最少的元素,去满足客户的设计需求,为客户呈现安静、舒适、宽敞明亮的生活环境。
您是否还在为如何装修房子而闹心?
您是否还在为如何找到靠谱装修公司而一筹莫展?
您是否还在为如何避免装修踩坑而忧心忡忡?

获取装修灵感与干货
寻找实用装修方案
还在等什么?快来关注!

