

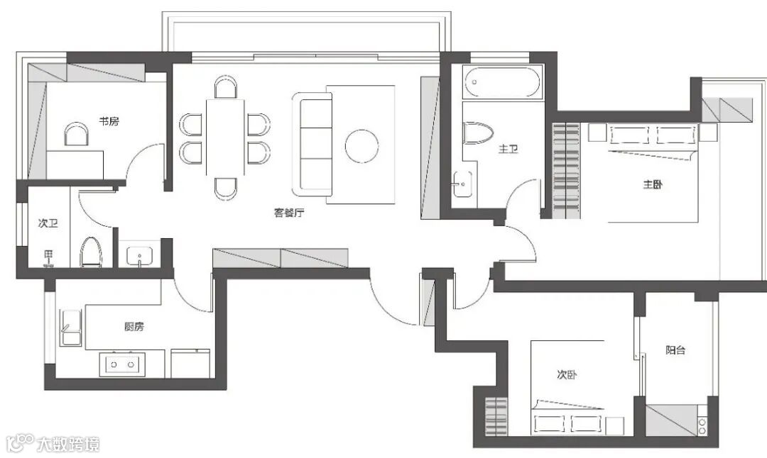
▲ 平面布局图
屋主需求:
1. 设计风格偏向现代简约。
2. 色彩不要过于冷淡压抑,希望多融入一些提气的暖色调和对比色,提升空间温度。
3. 空间规划上,目前独自居住为主,次卧偶有父母过来短住,书房需要大书柜摆放书籍。
4. 原始户型收纳空间不足,需要解决收纳问题。
5. 后期计划养猫,需提前考虑养猫带来的问题。
6. 希望主卧不要暗沉压抑,配色明快阳光些。
1. 房屋交付质量和硬装基础条件较好,在预算有限和入住时间有要求的情况下,打算不动硬装格局,仅做软装部分改造。
2. 平面布局基本按照原始户型,主要考虑的是收纳问题和屋主生活需求的匹配,以及具有美感的设计。

整面落地窗,给室内带来充足的采光,餐厅和客厅以沙发作为界线,隔而不断。

▲ 茶几
大面积的竖百叶简洁大气,半透的效果既可调节光线,又保护隐私。茶几视觉轻盈、方便移动。

全屋采用无主灯设计,客餐厅灯光色温都选择了3000K,轻松营造温馨怡人、让人放松的空间氛围。
定制的电视柜悬空设计,避免卫生死角,简洁利落,柜门选用哑光烤漆材质,颜色则根据墙漆定制。

▲ 沙发
考虑今后养猫,沙发材质放弃了真皮和疏松的布料。权衡颜值和坐感,屋主亲自去实体店体验后最终选择了这款沙发,拥有极其舒适的坐感。

结束一天工作后,回家可以放松地窝在沙发上。科技布的材质避免了猫抓的损坏,平时只需使用粘毛器即可轻松打理。
客餐厅走道边设计整面墙的定制柜,结合餐边柜和日常收纳功能,底部悬空增加光带,视觉效果更加轻盈,也可放置扫地机器人,方便清洁。

▲ 客厅一角

▲ 餐桌
餐厅并没有做过多的装饰,简约风格更显空间干净大气,精心挑选的实木餐桌,桌面圆弧细节触感温润。

餐椅款式坐感比预想中更舒适,坐面面料亲测猫抓不会有任何问题。
基于屋主希望主卧配色明快阳光些的需求,设计师将作为视觉焦点的背景墙留白,侧面衣柜用深蓝色定制哑光烤漆面板,质感温润。
虽然是整面深色衣柜,但是在整个空间中的占比不大且不在主视觉面,视觉感受不显沉闷。

综合对比了多款灰色系面料的床体,且做了造型尺寸上的细节改动,使得床铺完美契合卧室的空间尺度,同时优化床腿造型,让床背完全贴合墙面不受踢脚线影响。

▲ 床头柜

同色系飘窗柜的设计既减少飘窗空间的浪费增加收纳,又在视觉上延伸了背景墙,有扩大空间的视觉效果。

▲ 台灯
蓝白灰的卧室点缀黄色折纸台灯十分提气,镂空底座造型不占用床头柜空间,实用好看。

▲ 床
次卧主要作为屋主父母偶尔来居住的房间,储物空间有限的情况下,选择了抽屉收纳床,增加收纳。
▲ 台灯
小号充电款台灯可随不同生活场景的需要自由挪动,实用方便。

▲ 书桌
书桌设计贴心实用,隐藏了电源线和插板,卡槽可放置手机和pad等。围绕窗下做了整排的矮柜,用于收纳屋主的电子设备和产品,台面可放置书籍和植物。
书房的设计在小空间内满足办公、储物、阅读等多种功能,兼具设计感和实用性。
整面的开放格实现了屋主想拥有大书柜的需求,是屋主宅家看书,享受独处时光的一片小天地。