一、 概述
本产品为三相五柱防谐振电压互感器,可有效防止铁磁谐振烧毁互感器,该产品在系统发生100%接地故障时,仍可长时间正常运行,同时保护绕组(da.dn)产生100V电压使继电器动作;适用于交流50Hz,额定电压为10kV电力系统中作电压测量及继电保护使用。
二、 执行标准
GB20840.3-2013《互感器 第3部分:电磁式电压互感器的补充技术要求》
JJG314-2010《测量用电压互感器检定规程》
GB311.1-2012《高压输变电设备的绝缘配合》
三、 使用条件
1. 环境温度在-5℃至45℃之间,日平均温度不超过35℃;
2. 相对湿度:日平均值不超过95%,月平均值不超过90%
3. 海拔不超过1000米(高海拔地区使用时请提供海拔高度);
4. 安装类型:户内安装;
四、 技术参数
1.额定绝缘水平:12/42/75kV;
2.功率因数 cosΦ=0.8(滞后);
3.技术参数表:
型号 |
额定电压比(kV) |
准确级 |
额定二次输出(VA) |
极限输出(VA) |
JSZW-10FR |
10/√3/0.1/√3/0.1/√3/0.1 |
0.2/0.5/3P |
15/15/50 |
300 |
10/√3/0.1/√3/0.22/√3/0.1 |
0.5/3/3P |
30/300/50 |
500 |
五、接线原理图

1、一次N点直接接地,二次绕组(da,dn)为接继电器或微机监控使用,本产品不允许重复接入一次消谐装置及二次微机消谐装置,否则会烧毁PT。
2、一、二次除标注接地点外严禁其它点接地,否则会烧毁PT。
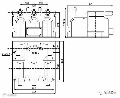
六、安装尺寸图

欢迎咨询订购

