大数跨境

【户型改造】“双主理人”的居家+办公的创业场

【户型改造】“双主理人”的居家+办公的创业场 本设网
2026-03-01
0
导读:三代同堂,岂止是家?—尼古拉斯·三哥

Plane scheme optimization thinking

:227

:三代人


**文章最后有:CAD源文件**


“双主理人”的居家+办公的创业场

说明

本项目为三代同堂常住的一梯一户住宅,核心需兼顾长辈适老、高中子女成长,以及男女主人高效居家办公的核心需求。老人房保留双床设计,适配长辈长期居住的舒适与安全;儿童房贴合高中生独立学习与生活节奏,预留充足的学习与储物空间。男女主人的独立工作室是本次设计重点,需紧邻主卧布局,打造便捷的办公动线。工作室需配备独立水点与简餐区,构建 “办公 + 轻食” 一体化功能体系,满足二人同步办公、临时简餐、灵感碰撞的多元需求,让居家办公更具效率与温度。主卧卫生间需配齐马桶、淋浴、洗手台盆等四件套,主卧室重点扩容衣物收纳空间,打造整洁有序的私域。厨房采用中西厨分离布局,兼顾中式烹饪的烟火气与西式轻食的便捷性,提升日常使用实用性;入户门厅改造为专属收纳区,解决全家杂物与鞋履的储物需求。阳台采用分段式设计,兼顾景观观赏、休闲互动与情调营造,让居家办公与生活烟火和谐共生。




/BEFPRE

剖析1过道尺度较长,顶面梁口多?

剖析2厨房面积无法满足多人同时操作?

剖析3阳台宽度窄,利用率较低?


剖析4收纳空间暗房分配位置不得体?


以上就是原始户型中存在的一些主要问题,需要我们在后续优化时重点关注。其实还有一些其他的问题,但我个人认为这些问题对后续方案的优化影响不大。不过,大家也可以根据自己的经验来判断,找出你认为不合理的地方。
那么这个方案该如何设计呢?



改造之后/AFTER
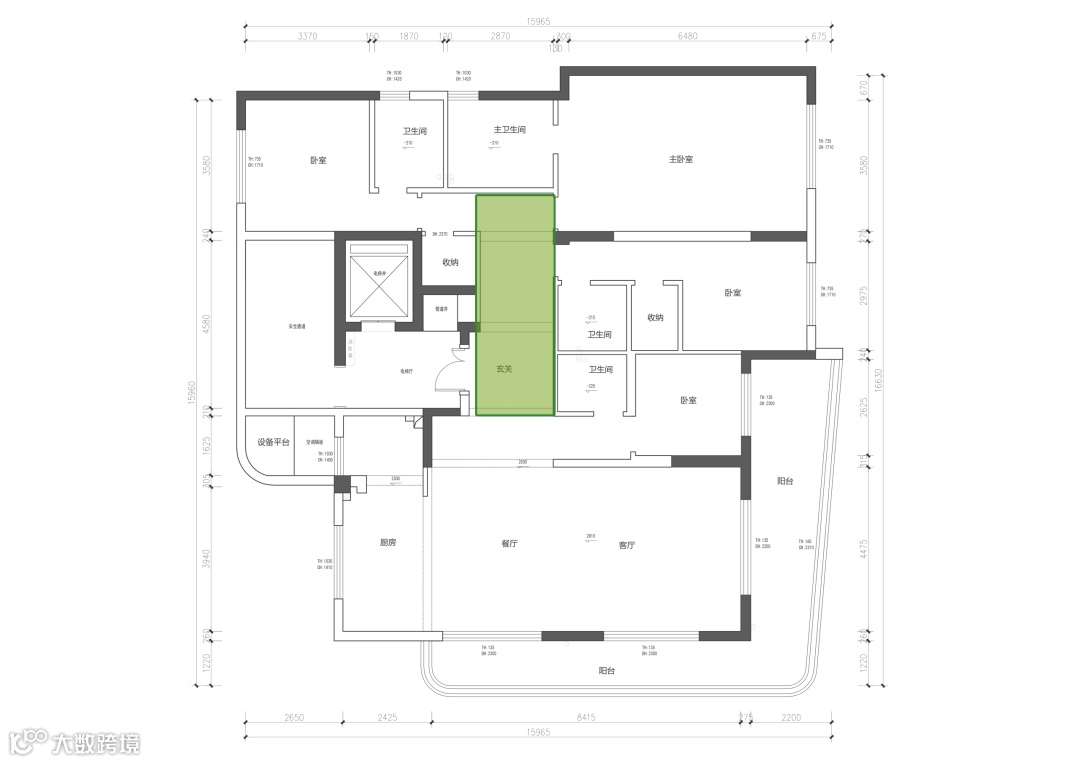
解析1一梯一户的独立入户,外侧过道可从容收纳鞋物,归家即感自在。进门正对设收纳展示柜,兼顾储物与局部鞋物摆放,右手边贴心布置换鞋凳,方便老人与三代人日常使用。过道向主卧方向增设吊滑门,巧妙划分空间、弱化长过道视感;两侧分别规划家政间与安静工位,动线流畅、功能清晰,既实用又兼顾家人生活需求。

解析2厨房原空间偏窄,顺势做中西厨分区 —— 内侧封闭做中厨,外侧敞亮做西厨,最大化利用采光。窗边预留洗菜、备菜区,台面连贯顺手,收纳也跟着窗线走,实用又通透。餐厅以岛台衔接餐厨,考虑到三代同堂与老人使用,特意选用圆桌,既温馨又好入座,以此划分空间轴线,让整个布局秩序清晰、动线流畅,日常做饭、家人聚餐都自在舒适。

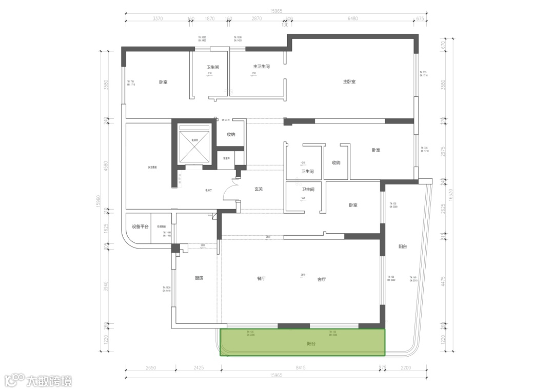
解析3不封阳台,以全景落地窗引清风与天光入室,青石板铺地,自带自然肌理与温润质感。一隅设盥洗盆,满足洗晾与浇花需求,衣物晾晒于墙角,不遮挡客厅视线。余下空间打造休息区,绿植环绕,三代人闲坐于此,喝茶观景,在烟火日常里尽享松弛的自然意趣。

解析4西向阳台以绿植景观带为自然边界,柔化空间动线。L 型垂直转角处设沙发榻,午后暖阳洒落,静坐其间,尽览窗外景致,身心皆安。通透设计让客厅与阳台无缝衔接,绿意与天光自由渗透,三代同堂的日常,随时可在此邂逅自然与松弛。
解析5客厅选用 L 型沙发,围合出舒适的居家核心区;电视墙依托整面最大立面打造,整体大气、视觉统一。餐桌与吧台有序排布,让客餐厅形成清晰的中心轴线,与阳台保持高度通透,天光与绿意自然延伸。空间动线规划流畅回游,功能分区明确,兼顾三代人日常起居、休闲互动与行走便利,在实用之上,更呈现出规整、舒展的空间秩序感。

【声明】内容源于网络
0
0
本设网
本设网公众号隶属于本设网络科技有限公司旗下品牌,本设网致力于打造最精品设计的资讯平台。专注建筑、景观、室内、艺术、产品等领域的品牌建设,搭建各领域之间交流及服务的设计平台。
内容 278
粉丝 0
本设网 本设网公众号隶属于本设网络科技有限公司旗下品牌,本设网致力于打造最精品设计的资讯平台。专注建筑、景观、室内、艺术、产品等领域的品牌建设,搭建各领域之间交流及服务的设计平台。
总阅读1
粉丝0
内容278