
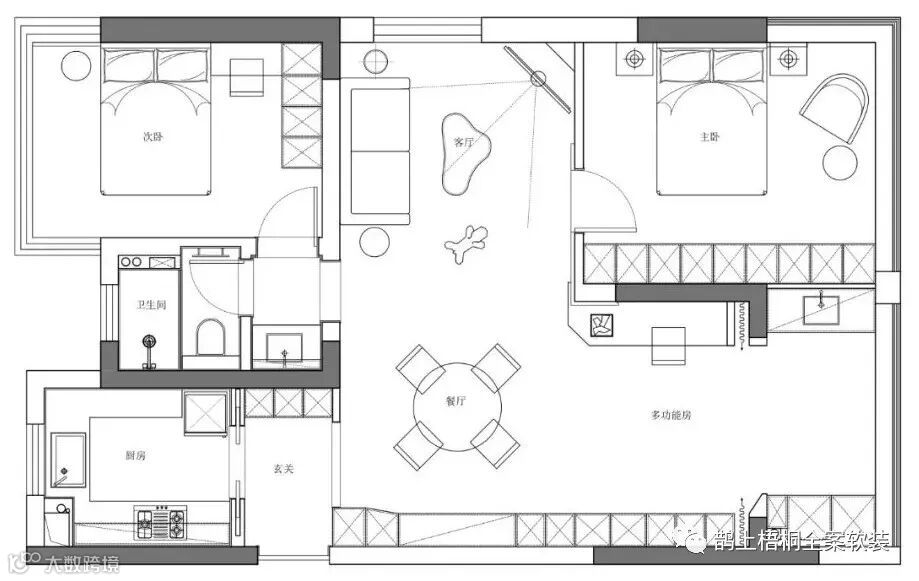
1.户型:96㎡两室两厅一卫
2.布局:原本户型是一个横厅布局,经过设计师改造,横厅变竖厅,原本的客厅改造成了多功能房,看书写字、工作加班、观影听歌多功能兼并。
3.风格:现代极简
玄关是黑色通顶鞋柜,入户就是肉眼可见的高级感,中间镂空处理,内设窄边灯带,烘托气氛,搭配两个创意摆件,惊艳无比。

客厅的大白沙发墙搭配黑色涂鸦墙饰,黑白搭配,层次感十足,双人位布艺沙发+小茶几构建了客厅的休闲角,简约实用。

旁边的落地灯在负责了晚上的氛围烘托,气氛满满。

舍弃 传统的电视固定方式,采用电视架,让空间更加简约,不看的时候拿走,客厅更显宽敞。

重头戏就是这面黑白拼色的背景墙,格栅门关上便是电视墙,开启里面就是卧室,设计师的魔术戏法让人惊叹!


餐厅过去是整面墙的柜体,采用隐形门的方式让空间更显简约,黑色的吊线灯搭配黑白餐桌椅,层次分明,边柜上的大理石背景面,质感十足,上面设计了洗池,和五孔插座,咖啡机与面包机摆在台面上,边柜马上秒变西厨区。


厨房是U型的操作台面,烟机、消毒柜、冰箱都在合理规划的区域中。地面是深色防滑地砖,耐脏美观。

主卧天花做了部分的横梁造型,设计感十足。没有多余的色彩渲染,干净整洁。右边是整面的衣柜,收纳满分。

落地窗的设计,采光极佳。右边的这块还有很大的活动区域,晚上看星空皎月也是非常惬意的事情。

床头是两个五孔插座,两个手机充电完全满足,一键双控开关给夜晚的生活提供了不少的便捷。

次卧是水泥灰的背景墙搭配三联画,艺术感满满。

右边是写字台,即可满足办公又能满足化妆,多功能兼并。同样的落地窗,同样的满分采光,搭配百叶帘,既能保护隐私,又不影响光线的照射。

阳台是常规的布局操作,左边是白色吊柜+洗手池,右边是柜体嵌入式洗衣机。


三分离的卫生间布局营造一个更为健康的人居环境,高颜值的镜柜+台下盆方便业主的早晨与夜晚。

预约免费量房电话:18483604539
微信号:18483604539



