中式风格代表的是中国明清古典传统家具及中式园林建筑、色彩的设计造型。特点是对称、简约、朴素、格调雅致、文化内涵丰富,中式风格家居体现主人的较高审美情趣与社会地位。
基本资料
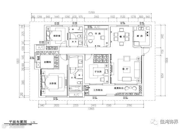
工程地址:世铭豪园
面积:155㎡
户型:四室两厅
风格:新中式风
设计师:林家明
设计理念:
用最少的投入,来最大化的美化和利用现有空间。
平面设计图+施工图
客厅
在快速发展的社会里,世俗的事物占据了我们太多的时间和精力,为了满足对生活的期待,在新中式风格中加入了新的尝试,融入了时代感。
餐厅
客厅和餐厅在同一平面上,空间的整体感比较强,视觉空间也比较宽敞。在餐厅背景的处理上,设计师选用的材料质感十分符合业主所需的儿时记忆,营造的环境得到了业主的肯定。
主卧
主卧传统古典风格的典雅和华贵,但与之不同的是加入了很多现代元素,呈现着时尚的特征。在配饰的选择方面更为简洁的线条装饰,为了给居室增添几分暖意,使整个居室在浓浓古韵中渗透了几许现代气息。
书房
设计师以现代的装饰手法和家具,结合古典中式的装饰元素,来呈现亦古亦今的空间氛围。中式风格的古色古香与现代风格的简单素雅自然衔接,使生活的实用性和对传统文化的追求同时得到了满足。
装修小技巧
1
鞋柜的隔板不要做到头,最好能留一点空间,让鞋子的灰漏到最底层,方便打扫。
2
买灯具要注意:一般尽量选用玻璃、不锈钢、铜或者木制(架子)的,一般不要买什么铁上面镀什么其他镀层啊、什么漆啊之类的,容易掉色。
3
卧室的顶灯最好是双控的,门旁一个,床边一个,省得大冬天躺在床上了再起来关灯。
4
觉得橱柜里面的垃圾桶不够实用,不如放在外面。还有千万不要装门板式的垃圾桶和台面垃圾桶,夏天的时候打开柜门会很臭的。垃圾桶还是放在外面好。

