工程地址 / Project address:公元九里
面积 / built-up area:230㎡
户型 / House type:三层别墅
风格 / Design style:混搭风格
所在城市 / City:广东·东莞
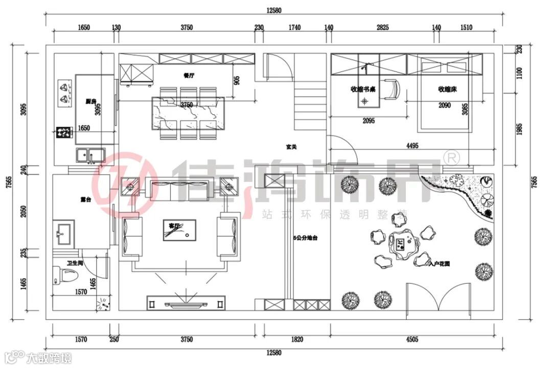
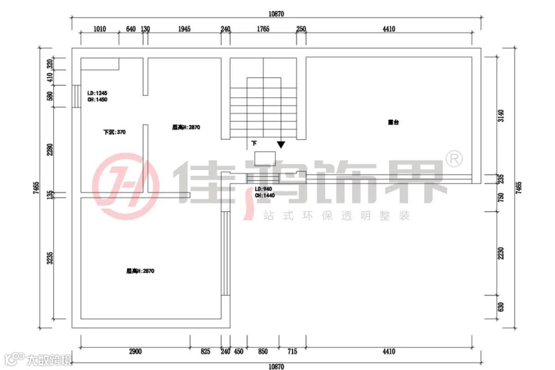
户型平面设计方案
▲(原始户型图)
▲(平面布置图)
请输入标题 bcdef
设计说明:
根据客户的修养与需求喜好,设计以多种风格结合的方式,串连起空间的艺术格调,同时以鲜活灵动的自然元素,激发出融于生活的雅趣之美。书房透漏出书香门第气息,主要体现主人的低调内涵气质,整个空间,让人进入就能感受到扑面而来的能量与愉悦。
请输入标题 abcdefg
01_
丨客厅
丨Living room
▲客厅黑色线条装饰吊顶加隐藏式筒灯的组合,使客厅光线均匀分布,柔和而自然,哑光大理石墙面的质感纹理得到了显现。
The combination of black line decorative ceiling and hidden downlight in the living room makes the light in the living room evenly distributed, soft and natural, and the texture of the matte marble wall surface is revealed.
▲配合稳重大气的深红木家具,雅致意蕴的茶几,金属的装饰增添轻奢的气息,中式的传统韵味与现代的精致感在客厅空间里得到了最大的糅合与发散。
With the stable dark mahogany furniture, the elegant coffee table, and the metal decoration add a light and luxurious atmosphere. The traditional Chinese charm and modern sophistication have been most blended and diverged in the living room space.
02_
丨书房
丨Study
▲定制的原木展示柜,用于摆放书籍与茶具,橱柜结合、中间木栅栏的设计,质朴而充满意趣;闲时,端坐于书桌前,一纸一砚,或是捧一书籍,即突显了主人的兴趣爱好与不俗的雅致品味。
The custom log display cabinet is used to place books and tea sets. The combination of cabinets and the design of the wooden fence in the middle are simple and full of interest. When you are free, you can sit in front of the desk with a piece of paper and an inkstone, or hold a book to highlight it. The hobbies of the owner and the good taste of elegance.
03_
丨影视房
丨Movie room
▲影视房里爱马仕橙沙发搭配丝绒质感的圆形墩椅,不经意间勾勒出极简的时尚感,简约又不失格调;背景墙灰色饰面,线条流畅硬朗,在隐藏灯带照明下,空间层次丰富;夜幕降临,慵懒躺在沙发上来一部电影大片,也十分惬意。
In the movie room, the Hermes orange sofa is matched with a round pier chair with a velvet texture, which inadvertently outlines a minimalist fashion sense, simple and stylish; the background wall is gray veneer, smooth and tough, and the space is leveled under the hidden light strip. Rich; as night falls, it is also very comfortable to lie lazily on the sofa and come on a blockbuster movie.
04_
丨主卧
丨Master bedroom
▲休憩的空间,唯静为上;安静的白鹭色壁纸与平和沉稳的木色线条相得益彰,奠定了整个卧室素雅简净的居住格调;硬包床头木质床卧,内敛而沉寂,大气不失秀丽;同时折四季之树枝,寻古典之色彩,将之融于家居,一花一木蕴含着深厚的文化底蕴。
In the resting space, only quietness is the top priority; the quiet egret color wallpaper complements the calm and steady wooden lines, which establishes the elegant and clean living style of the entire bedroom; the wooden bed with hard-covered headboard, introverted and quiet, without losing its beauty. ; At the same time, fold the branches of the four seasons, look for classical colors, and blend them into the home. Each flower and one tree contains a profound cultural heritage.
05_
丨大女儿房
丨Elder daughter room
▲卧室选择浅色木质地板,增添了质朴的气息;床头背景墙面选择了相对温和,冷静的暖黄色;浅颜色更加适合休息,同时布置上绵软舒适的大床;书柜在卧室的靠墙一侧,开放式的书柜又有了一些随意的姿态,具备更多的摆放选择。
The bedroom chooses light-colored wooden floor to add a rustic atmosphere; the bedside background wall chooses a relatively gentle and calm warm yellow; the light color is more suitable for rest, and at the same time, a soft and comfortable big bed is arranged; the bookcase is on the wall of the bedroom. On the side, the open bookcase has some random gestures and more placement options.
06_
丨小女儿房
丨Little girl's room
▲粉橙的空间,搭配憨厚小熊,十分具童话的色彩,治愈粉色梦幻城堡色系,清新少女心漫画既视感,糖果般跳跃;强大收纳让房间大出一倍,同时也可以培养小朋友整理书籍的好习惯。
The pink-orange space, with simple and honest bears, is very fairy-tale color, healing the pink dream castle color system, the fresh girly heart comics have a visual sense, and the candy-like jump; the powerful storage makes the room twice as big, and it can also train children to organize books Good habits.
07_
丨主卫
丨Main guard
▲卫生间深浅灰色瓷砖搭配,空间充满质感,棕色洗手盆与墨绿底柜形成鲜明对色,金色边框墙镜增添了几分精致感。
The bathroom is decorated with dark and light gray tiles, and the space is full of texture. The brown wash basin and the dark green base cabinet form a vivid contrast, and the golden frame wall mirror adds a sense of exquisiteness.
08_
丨次卫
丨Second Guard
▲卫生间做了干湿分离,设置了淋浴房、马桶、浴室柜,高级灰的配色也是充满现代时尚的端庄感;粉色浴室柜带来甜美的生活气息,哑光台面更干净整洁。
The bathroom is separated from wet and dry, with shower room, toilet, and bathroom cabinets. The high-grade gray color scheme is also full of modern and fashionable dignity; the pink bathroom cabinets bring a sweet atmosphere of life, and the matte countertops are more clean and tidy.
你的每次点赞加分享 我都认真当成了喜欢
向你推荐一个超赞的公众号

往期案例推荐
点击图片即可获取全文
推荐阅读
佳鸿饰界,全称广东佳鸿饰界装饰设计工程有限公司,国家注册商标,注册资金1000万人民币。05年成立于广州,是集住宅与商业空间的装饰设计、施工、建材、家具、配饰、售后和增值售后为一体的一站式家居连锁服务商。佳鸿饰界以环保透明为企业的发展特色,是全国最先倡导环保透明家装的品牌。
目前旗下注册商标品牌: 佳鸿饰界整装、谷间私宅、非凡同创3大品牌,同时有佳鸿V8.大宅,佳鸿VV软装两个事业部。在东莞寮步、东莞常平、东莞虎门、东莞塘厦、珠海香洲、惠州大亚湾、惠州博罗、惠州惠阳、惠州罗阳、惠州惠东、惠州惠城、中山等地设有分公司,是广东省最具竞争力装饰公司之一及全国头部家装500强企业。
Honors
资质荣誉
中国头部家装500强企业
广东省守合同重信用企业
中国室内装饰协会会员单位
中国农业银行战略合作单位
湖南设计力量发起单位
东莞市室内建筑设计行业协会单位
百城设计联盟最佳设计创意奖
国家室内装饰企业设计乙级资质单位
国家室内装饰企业施工乙级资质单位
房天下2016年度中国家居风云榜--暨业主喜爱的家居品牌
2016年度装修品牌榜最受业主信任的互联网装修口碑品牌
校企合作企业联盟单位
2016年家装战略合作百强企业
2018年中国商业汇最具口碑装饰设计公司 网络评选大赛冠军
中国室内建筑学会室内设计分会会员单位
APDF亚太设计联盟会员单位
保利地产战略合作客户
万科战略合作客户
......

广东佳鸿饰界
16年专注环保透明家装
一站式整体家装服务商
淘宝/网页搜索“广东佳鸿饰界”都可以找到我们哦!
【非凡同创总部】东莞市寮步镇时代华庭二楼01室
【谷间私宅】东莞市寮步镇时代华庭二楼02室
【东莞寮步店】 东莞市寮步镇时代华庭三楼整层
【东莞常平店】 东莞市常平镇袁山贝文昌三街14-15号4楼
【惠州大亚湾店】惠州市大亚湾区响水北路12号
【珠海香洲店】珠海市香洲区前山左右创意园1栋2-12/13/23/24室
【惠州博罗店】惠州市博罗县罗阳镇荣鸿大厦601室
【惠州惠阳店】惠州市惠阳区淡水志隆大厦8楼
【惠州罗阳店】惠州市惠博大道中洲半岛四期11栋106-107号
【惠州惠东区域筹备部】敬请期待
【惠州惠城旗舰筹备部】敬请期待
【东莞虎门区域筹备部】敬请期待
【东莞塘厦筹备部】敬请期待
【珠海金湾区域筹备部】敬请期待
【中山筹备部】敬请期待







