工程地址 / Project address:御城水都
面积 / built-up area:91㎡
户型 / House type:三房两厅
风格 / Design style:现代北欧
所在城市 / City:广东·惠州
户型平面设计方案
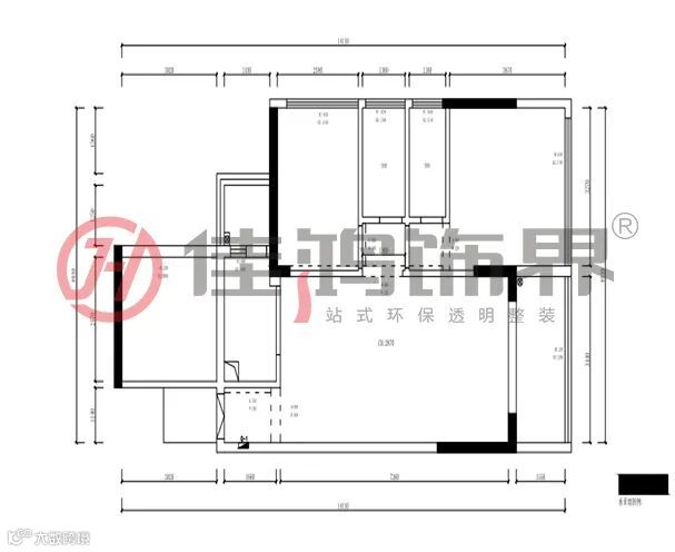
▲(原始户型图)
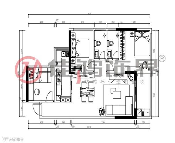
▲(平面布置图)
请输入标题 bcdef
设计说明:
房屋整体氛围比较轻松简单,通过颜色较亮的软装,使空间鲜活起来,运用石膏线进行装饰,墙面颜色简洁明快,没有过多的装饰,一切从功能出发。女业主钟爱粉色,所以主卧以粉色系为主。设计师巧妙地加入灯具以点缀空间,烘托舒适温馨的氛围气息。
请输入标题 abcdefg
01_
丨客厅
丨Living room
客厅|沉稳的灰、清新淡雅的蓝、生机勃勃的绿、明亮鲜活的橙,在宽敞的客厅里得到了完美的糅合。同时以石膏线装饰沙发背景墙,线性分子灯点缀空间,美观大方,为空间带来灵动的气息,简约的北欧挂画和几何地毯,搭配L型天使白皮质沙发,营造温馨舒适的客厅氛围。
The calm gray, fresh and elegant blue, vibrant green, and bright and vivid orange are perfectly blended in the spacious living room. At the same time, plaster lines are used to decorate the sofa background wall, linear molecular lights decorate the space, beautiful and generous, and bring agile atmosphere to the space. The simple Nordic hanging paintings and geometric carpets, matched with the L-shaped angel white leather sofa, create a warm and comfortable living room atmosphere.
02_
丨餐厅
丨Dining hall
餐厅|餐厅是整洁干净的白调。定制的大面积贴墙橱柜,满足主人的储物需求,中间凿空的设计,又可摆放装饰物及小物件,贴心而实用。布置上灰纹哑光餐桌,对称的粉黄餐椅,错落有致的吊灯,让就餐也心情愉悦,开启元气的崭新的一天。
The restaurant is neat and clean in white tones. The custom-made large-area wall-mounted cabinets meet the owner's storage needs. The hollowed-out design can also be used to place decorations and small objects, which is intimate and practical. The gray-patterned matte dining table, the symmetrical pink-yellow dining chairs, and the chandeliers make the dining happy and start a new day of vitality.
03_
丨主卧
丨Master bedroom
主卧|粉白相间,结合排列的靠枕,空间叠合出层次感,纯棉的床品柔软舒适,带来舒心的睡眠体验。简单对称的床头柜,造型感十足的壁灯和鱼线型吊灯,让静态的空间流动了起来,踩在原木质朴地砖上,纯色的飘帘将室外自然之景揽入,拥有极佳采光效果的同时,视野也开阔明朗。
White and white, combined with the arranged pillows, the space is superimposed to create a sense of hierarchy. The pure cotton bedding is soft and comfortable, bringing a comfortable sleeping experience. Simple and symmetrical bedside tables, stylish wall lamps and fish-line chandeliers let the static space flow. Stepping on the original wooden floor tiles, the pure color floating curtains envelop the outdoor natural scenery, with excellent lighting effects at the same time , The field of vision is also broad and clear.
04_
丨长辈房
丨Elder room
长辈房|软包灰质的床头,格纹布艺带来现代时尚的气息,不同体型大小的靠枕让使用更方便,具有多样的选择,没有过多繁杂的装饰,添置艺术的挂画、蓝白的窗帘,空间沉稳温暖而大气。
The soft-covered gray headboard and plaid fabric bring a modern and fashionable atmosphere. The pillows of different body sizes make it more convenient to use, with a variety of choices, without too many complicated decorations, adding artistic hanging pictures and blue and white curtains. The space is calm, warm and atmospheric.
05_
丨多功能室
丨Multi-purpose room
多功能室|繁忙之余,需要一处静谧的空间,或阅读,纵览大千世界,或玩乐,带来精神上的欢愉,或是简单的休憩,让身体与心灵放松下来。多功能室里用色彩拼接板和粉色的融入,让空间既显平和安宁,又不单调沉闷,不拘一格的写字桌书架设计,也能让过程充满乐趣与活力。
When you are busy, you need a quiet space, or reading, sweeping the world, or having fun to bring spiritual joy, or simply rest to relax your body and mind. The color splicing board and the integration of pink in the multifunctional room make the space both peaceful and peaceful, but not monotonous and dull. The eclectic writing desk and bookshelf design can also make the process full of fun and vitality.
你的每次点赞加分享 我都认真当成了喜欢
向你推荐一个超赞的公众号

往期案例推荐
点击图片即可获取全文

推荐阅读
佳鸿饰界,全称广东佳鸿饰界装饰设计工程有限公司,国家注册商标,注册资金1000万人民币。05年成立于广州,是集住宅与商业空间的装饰设计、施工、建材、家具、配饰、售后和增值售后为一体的一站式家居连锁服务商。佳鸿饰界以环保透明为企业的发展特色,是全国最先倡导环保透明家装的品牌。
目前旗下注册商标品牌: 佳鸿饰界整装、谷间私宅、非凡同创3大品牌,同时有佳鸿V8.大宅,佳鸿VV软装两个事业部。在东莞寮步、东莞常平、珠海香洲、惠州大亚湾、惠州博罗、惠州惠阳、惠州罗阳等地设有分公司,是广东省最具竞争力装饰公司之一及全国头部家装500强企业。
Honors
资质荣誉
中国头部家装500强企业
广东省守合同重信用企业
中国室内装饰协会会员单位
中国农业银行战略合作单位
湖南设计力量发起单位
东莞市室内建筑设计行业协会单位
百城设计联盟最佳设计创意奖
国家室内装饰企业设计乙级资质单位
国家室内装饰企业施工乙级资质单位
房天下2016年度中国家居风云榜--暨业主喜爱的家居品牌
2016年度装修品牌榜最受业主信任的互联网装修口碑品牌
校企合作企业联盟单位
2016年家装战略合作百强企业
2018年中国商业汇最具口碑装饰设计公司 网络评选大赛冠军
中国室内建筑学会室内设计分会会员单位
APDF亚太设计联盟会员单位
保利地产战略合作客户
万科战略合作客户
......

广东佳鸿饰界
16年专注环保透明家装
一站式整体家装服务商
淘宝/网页搜索“广东佳鸿饰界”都可以找到我们哦!
【非凡同创总部】东莞市寮步镇时代华庭二楼01室
【谷间私宅】东莞市寮步镇时代华庭二楼02室
【东莞寮步店】 东莞市寮步镇时代华庭三楼整层
【东莞常平店】 东莞市常平镇袁山贝文昌三街14-15号4楼
【惠州大亚湾店】惠州市大亚湾区南山国际6F22室
【珠海香洲店】珠海市香洲区前山左右创意园1栋2-12/13/23/24室
【惠州博罗店】惠州市博罗县罗阳镇荣鸿大厦601室
【惠州惠阳店】惠州市惠阳区淡水志隆大厦8楼
【惠州罗阳店】惠州市惠博大道中洲半岛四期11栋106-107号
【惠州惠东区域筹备部】敬请期待






