设计师:周永谊
因生活而设计,因设计而完美。
基本信息
工程地址:丽景花园
面积:83㎡
户型:3室2厅
风格:现代风格
所在城市:广东·东莞
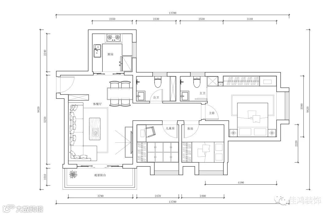
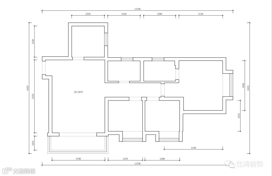
户型平面设计图
(原始户型结构图)
(平面设计方案图)
客厅
▲ 客厅|乳白色背景墙,饰以简约挂画和线条式时钟,爽朗明快。灰色布艺沙发,大理石桌面,彰显着欧式最初的质感与大气,五彩斑斓的靠枕和格子花纹的布艺墩椅,又为客厅增添了浪漫艺术气息。
客厅
▲ 餐厅|以橱柜区分不同区域,同时具有空间上的衔接性。颇具造型的星环灯,现代感十足,而原木的桌椅,肆意的草枝,则可以让家人在每一次用餐中,都贴近自然,感受舒适与自由。
3
主卧
▲主卧|承袭了洁白的主色调,成对的欧式悬挂床头灯和床头柜,形成了对称的美感。温柔的玫红色毛毯,时尚的菱格布艺,床上的每一物,是触手可及的丝滑。大面积镶嵌式橱柜,则是大大满足了日常所需,又有哪个女孩不想拥有满满一柜子的衣服呢?主卧自带卫浴间,更是为生活带来了便利。
4
次卧
▲ 次卧|阳光透过大大的飘窗,洒下一室的温暖。即使空间较为小巧,橱柜书桌却一应俱全。伴着精致可爱的小玩偶,学习似乎也变成了一件简单有趣的事。
推荐阅读
佳鸿饰界,全称广东佳鸿饰界装饰设计工程有限公司,国家注册商标,注册资金1000万人民币。05年成立于广州,是集住宅与商业空间的装饰设计、施工、建材、家具、配饰、售后和增值售后为一体的一站式家居连锁服务商。佳鸿饰界以环保透明为企业的发展特色,是全国最先倡导环保透明家装的品牌。
目前旗下注册商标品牌: 佳鸿饰界整装、谷间私宅、非凡同创3大品牌,同时有佳鸿V8.大宅,佳鸿VV软装两个事业部。在东莞寮步、东莞常平、珠海香洲、惠州大亚湾、惠州博罗、惠州惠阳、惠州罗阳等地设有分公司,是广东省最具竞争力装饰公司之一及全国头部家装500强企业。
Honors
资质荣誉
中国头部家装500强企业
广东省守合同重信用企业
中国室内装饰协会会员单位
中国农业银行战略合作单位
湖南设计力量发起单位
东莞市室内建筑设计行业协会单位
百城设计联盟最佳设计创意奖
国家室内装饰企业设计乙级资质单位
国家室内装饰企业施工乙级资质单位
房天下2016年度中国家居风云榜--暨业主喜爱的家居品牌
2016年度装修品牌榜最受业主信任的互联网装修口碑品牌
校企合作企业联盟单位
2016年家装战略合作百强企业
2018年中国商业汇最具口碑装饰设计公司 网络评选大赛冠军
中国室内建筑学会室内设计分会会员单位
APDF亚太设计联盟会员单位
保利地产战略合作客户
万科战略合作客户
......

广东佳鸿饰界
16年专注环保透明家装
一站式整体家装服务商
装修干货|施工技艺|设计方案
敬请关注广东佳鸿饰界
淘宝/网页搜索“广东佳鸿饰界”都可以找到我们哦!
【非凡同创总部】广东东莞寮步镇时代华庭二楼01室
【谷间私宅】广东东莞寮步镇时代华庭二楼02室
【东莞寮步店】 广东东莞寮步镇时代华庭三楼整层
【东莞常平店】 广东东莞常平镇袁山贝文昌三街14-15号4楼
【惠州大亚湾店】大亚湾区南山国际6F22室
【珠海香洲店】香洲区前山左右创意园1栋2-23室
【惠州博罗店】博罗县罗阳镇荣鸿大厦601室
【惠州惠阳店】惠州惠阳区淡水志隆大厦8楼
【惠州罗阳店】博罗县罗阳镇城东区江山美苑CA栋二楼


