设计哲学
暖暖灯光
照耀下
一切爱意
都无处藏身
...
设计师
项目介绍
Project introduction
工程地址 :企石碧桂园
面积 :200㎡
户型 :四层别墅
风格 :现代轻奢
客户背景:
本案居住者是一家四口,业主为成功企业家,儿子正在读中学,小女儿还在幼儿园。
风格定位:
以现代轻奢风格为设计主线,在现代风格中融入奢华元素,完成轻奢风格的刻画,使得这个风格更耐看,更符合当代人的审美习惯。
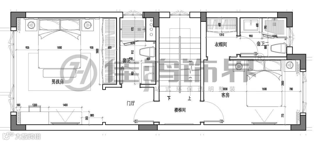
户型平面设计方案
Flat design plan
▲(原始户型图)
▲(平面布置图)
风格蓝图
Style blueprint
核心元素:
木质材料的现代墙地面、软装搭配为主要表现元素。
材料元素:
装饰材料主要有木材、石材、铁艺等,都无一例外地保留这些材质的原始质感。
构件元素:
抛光灰纹地砖、大面积浅色木饰板;棉麻、纯棉面料的的家具、地毯和窗帘。
设计手法元素:
大面积浅色墙面搭配温馨的原木材质,简洁的块面结构和的凝练开阔的空间处理。
设计解析
Design analysis
全屋没有过分的装饰,简约和实用并重,更符合快节奏时代下的生活需求。以简洁的表现手法,来满足人们对空间环境,感性的、本能的和理性的需求,简单而不失品位,打造出现代轻奢的高雅生活风。
效果呈现
Effect
客厅
Living room
▲客厅空间宽敞而质朴,吊顶和原木展示柜内藏灯带,营造温暖氛围;顶天对称的柜面设计,搭配灰色低矮布艺沙发,让空间纵深感强烈;现代轻奢的棕色花纹背景墙、边几,散发出低调的气质内涵。
餐厅
Restaurant
▲餐厅与客厅互通在一条直线上,整体设计没有过于抢眼的造型,亦没有丰富色彩的叠加,而是以最典型的现代风格,令所有的色调统一;同时,配合层叠圆环吊灯的璀璨灯光,细节处流露出精致的生活情调。
主卧
Master bedroom
▲卧室里以米灰色与原木色墙面空间,搭配纯白的软卧,床尾添上长凳,对面是悬挂式电视机,整个空间布置简洁而大方;空间内加入了两侧壁灯作为辅助照明,营造出一个舒适温馨的灯光氛围。
次卧
Second bedroom
▲入目是木质纹理的地砖,天然的肌理使人不自觉的放松下来,结合粉灰色的窗幔,在沉稳中彰显浪漫的生活气息;铁艺的书桌脚,上方是天鹅的现代线条挂画,让阅读也不显沉闷。
男孩房
Boy's room
▲男孩房也是以米灰色的床头背景墙,加以一整面的清新蓝色,简洁开阔的空间,既不稚气、也不老气;软装上以舒适为主,象牙白的书桌椅高度适中,契合小主人学习的需要,床头柜处随手放置几本书籍,睡前阅读更方便。
卫生间
Bathroom
▲卫生间在视觉上舍弃张扬,通过对线条与色块的巧妙应用,营造出轻松的空间氛围,玻璃门以隔断,色彩画以装饰,传递“轻奢华、新时尚”的生活理念;在这样恬静的空间中,想必淋浴也是一种极致的享受。
你的每次点赞加分享 我都认真当成了喜欢
向你推荐一个超赞的公众号

往期案例推荐
点击图片即可获取全文
推荐阅读
佳鸿饰界,全称广东佳鸿饰界装饰设计工程有限公司,国家注册商标,注册资金1000万人民币。05年成立于广州,是集住宅与商业空间的装饰设计、施工、建材、家具、配饰、售后和增值售后为一体的一站式家居连锁服务商。佳鸿饰界以环保透明为企业的发展特色,是全国最先倡导环保透明家装的品牌。
目前旗下注册商标品牌: 佳鸿饰界整装、谷间私宅、非凡同创3大品牌,同时有佳鸿V8.大宅,佳鸿VV软装两个事业部。在东莞寮步、东莞常平、东莞虎门、东莞塘厦、珠海香洲、惠州大亚湾、惠州博罗、惠州惠阳、惠州罗阳、惠州惠东、惠州惠城、中山等地设有分公司,是广东省最具竞争力装饰公司之一及全国头部家装500强企业。
Honors
资质荣誉
中国头部家装500强企业
广东省守合同重信用企业
中国室内装饰协会会员单位
中国农业银行战略合作单位
湖南设计力量发起单位
东莞市室内建筑设计行业协会单位
百城设计联盟最佳设计创意奖
国家室内装饰企业设计乙级资质单位
国家室内装饰企业施工乙级资质单位
房天下2016年度中国家居风云榜--暨业主喜爱的家居品牌
2016年度装修品牌榜最受业主信任的互联网装修口碑品牌
校企合作企业联盟单位
2016年家装战略合作百强企业
2018年中国商业汇最具口碑装饰设计公司 网络评选大赛冠军
中国室内建筑学会室内设计分会会员单位
APDF亚太设计联盟会员单位
保利地产战略合作客户
万科战略合作客户
......

广东佳鸿饰界
16年专注环保透明家装
一站式整体家装服务商
淘宝/网页搜索“广东佳鸿饰界”都可以找到我们哦!
【非凡同创总部】东莞市寮步镇时代华庭二楼01室
【谷间私宅】东莞市寮步镇时代华庭二楼02室
【东莞寮步店】 东莞市寮步镇时代华庭三楼整层
【东莞常平店】 东莞市常平镇袁山贝文昌三街14-15号4楼
【惠州大亚湾店】惠州市大亚湾区响水北路12号
【珠海香洲店】珠海市香洲区前山左右创意园1栋2-12/13/23/24室
【惠州博罗店】惠州市博罗县罗阳镇荣鸿大厦601室
【惠州惠阳店】惠州市惠阳区淡水志隆大厦8楼
【惠州罗阳店】惠州市惠博大道中洲半岛四期11栋106-107号
【惠州惠东区域筹备部】敬请期待
【惠州惠城旗舰筹备部】敬请期待
【东莞虎门区域筹备部】敬请期待
【东莞塘厦筹备部】敬请期待
【珠海金湾区域筹备部】敬请期待
【中山筹备部】敬请期待







