空间兼顾多与少、软和硬的矛盾关系
融入多种元素
借以传递生活有度,心情坦然的幸福观
兼容并蓄
让一切变得刚刚好
就会产生恰到好处的得到
///
[ 全景案例 ]
American mix and match style
美式混搭风格
楼盘 |Real estate-景湖春天
面积 |Area-122㎡
户型 |Unit type-四房两厅
装修费用 |Renovation cost-20w
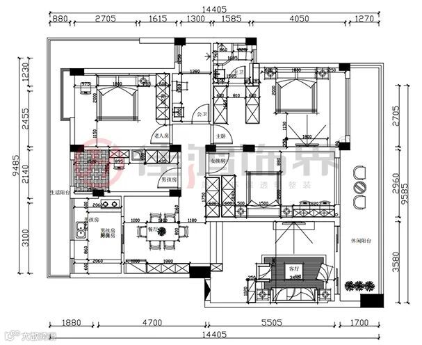
『 平面布置图 』
▼
客户背景
1.客户一家6口人,需要四房。
2.希望主卧有个衣帽间,空间需要大。
3.客餐厅需要大气,通透。
户型分析
存在缺陷:
1.房间的面积过盛,造成浪费。
2.厨房比较小,采光较差。
3.房屋是立柱结构的,凸出位比较多。
改造后:
1.房间空间比较充足,又得到了合理利用。
2.把原有小阳台外推改造成U字型厨房,增大储物及操作空间。
3.全屋凹位补齐,整体感比较强。
设计灵感
以简洁的表现手法,来满足人们对空间环境感性的、本能的和理性的需求,简单而不失品位,打造出美式混搭高雅生活风。
♀♀♀♀♀♀
进入客厅空间,米白色带给人宁静的感受。局部的线条装饰,赋予了空间独特气质。
灰色饰面板加两侧石膏线装饰的电视背景墙,风格和谐统一,现代的艺术挂画打破静态空间,使视觉得到了延伸,空间变得立体起来。
♀♀♀♀♀♀
餐厅与过道连通,穿透性的视觉感令整个空间明亮、通透,色彩间相辅相成,墙面挂画符合餐厅氛围。
大理石的餐桌,搭配高级棕的弧形餐椅,复古而优雅。内嵌式餐边柜,增加了餐厅的储物空间,彰显主人不俗的品味。
♀♀♀♀♀♀
厨房空间更有美式的氛围,L型设计,天蓝色的橱柜带来自然清新感,凹凸的面板跟白色拉手融为一体。
纯色的推拉窗设计和隐藏式主灯,使空间通透而开阔,洋溢着明亮活泼的生活气息。
♀♀♀♀♀♀
主卧以深浅色系搭配,营造优雅安静的空间氛围。藕粉色的背景和木纹地砖,结合柔软的床品,层次分明,为卧室空间增添了几分温暖柔和的感觉。
♀♀♀♀♀♀
长辈房布置温馨,主要以功能性和舒适度为考虑重点,色彩柔和。两侧分别是书桌和床头柜,床头阅读灯的加入,方便长辈们随时开启灯光和睡前的阅读。
♀♀♀♀♀♀
纯棉明亮的床品,一体式的书桌架,灯光恰到好处的出现,让整个空间的温暖扑面而来。墙面的卡通图案提升了空间的趣味性,还能有效激发孩子的想象力和创造力。
♀♀♀♀♀♀
一方小空间,满足学习、生活、休息的需要,这是孩子的秘密花园,亦是父母心间的暖光。粉紫色的背景墙,是最可爱浪漫、富有幻想的色彩。黄蓝绿的书桌,使学习阅读也充满乐趣。
♀♀♀♀♀♀
卫生间依然延续了家里的整体风格,大理石瓷砖使空间充满了质感,干湿分离提升了使用效率,整体整洁有序。

你的每次点赞加分享 我都认真当成了喜欢
向你推荐一个超赞的公众号
往期案例推荐
点击图片即可获取全文
推荐阅读
佳鸿饰界,全称广东佳鸿饰界装饰设计工程有限公司,国家注册商标,注册资金1000万人民币。05年成立于广州,是集住宅与商业空间的装饰设计、施工、建材、家具、配饰、售后和增值售后为一体的一站式家居连锁服务商。佳鸿饰界以环保透明为企业的发展特色,是全国最先倡导环保透明家装的品牌。
目前旗下注册商标品牌: 佳鸿饰界整装、谷间私宅、非凡同创3大品牌,同时有佳鸿V8.大宅,佳鸿VV软装两个事业部。在东莞寮步、东莞常平、东莞虎门、东莞塘厦、珠海香洲、惠州大亚湾、惠州博罗、惠州惠阳、惠州罗阳、惠州惠东、惠州惠城、中山等地设有分公司,是广东省最具竞争力装饰公司之一及全国头部家装500强企业。
Honors
资质荣誉
中国头部家装500强企业
广东省守合同重信用企业
中国室内装饰协会会员单位
中国农业银行战略合作单位
湖南设计力量发起单位
东莞市室内建筑设计行业协会单位
百城设计联盟最佳设计创意奖
国家室内装饰企业设计乙级资质单位
国家室内装饰企业施工乙级资质单位
房天下2016年度中国家居风云榜--暨业主喜爱的家居品牌
2016年度装修品牌榜最受业主信任的互联网装修口碑品牌
校企合作企业联盟单位
2016年家装战略合作百强企业
2018年中国商业汇最具口碑装饰设计公司 网络评选大赛冠军
中国室内建筑学会室内设计分会会员单位
APDF亚太设计联盟会员单位
保利地产战略合作客户
万科战略合作客户
......

广东佳鸿饰界
16年专注环保透明家装
一站式整体家装服务商
淘宝/网页搜索“广东佳鸿饰界”都可以找到我们哦!
【非凡同创总部】东莞市寮步镇时代华庭二楼01室
【谷间私宅】东莞市寮步镇时代华庭二楼02室
【东莞寮步店】 东莞市寮步镇时代华庭三楼整层
【东莞常平店】 东莞市常平镇袁山贝文昌三街14-15号4楼
【惠州大亚湾店】惠州市大亚湾区响水北路12号
【珠海香洲店】珠海市香洲区前山左右创意园1栋2-12/13/23/24室
【惠州博罗店】惠州市博罗县罗阳镇荣鸿大厦601室
【惠州惠阳店】惠州市惠阳区淡水志隆大厦8楼
【惠州罗阳店】惠州市惠博大道中洲半岛四期11栋106-107号
【惠州惠东区域筹备部】敬请期待
【惠州惠城旗舰筹备部】敬请期待
【东莞虎门区域筹备部】敬请期待
【东莞塘厦筹备部】敬请期待
【珠海金湾区域筹备部】敬请期待
【中山筹备部】敬请期待







