可耐福吊顶系统
品牌介绍
1、可耐福历史
1932
Alfons Knauf 和 Karl Knauf购买了位于Schengen的一家石膏矿厂的采矿权,并在Mosel开设了石膏生产厂
1949
出产第一批熟石膏
1958
在德国Iphofen建造了首家石膏板生产厂
1964
发明了首个机用石膏抹灰产品(MP75)
1971
在奥地利成立了首家境外姐妹公司
1977
首次成功地将脱硫石膏用作生产原料
1978
通过收购(位于美国Shelbyvile)可耐福保温材料公司,成功打入美国市场
1979
收购生产用于墙面和天花板的轻钢龙骨及金属配件制造商Richter System公司
1980
石膏基自流平投入市场
1987-1992
开始开发南欧和西欧地区的市场
1992
丹麦:成功收购Danogips A/S
1993
俄罗斯:收购众多生产厂,并进行现代化改造
1995
德国:收购了AMF(Grafenau)50% 的股份
东欧:在捷克斯洛伐克Pocerady设计生产基地。销售网络覆盖捷克斯洛伐克、匈牙利、波罗的海等国家和地区
中国:在安徽省芜湖市设立首个在华生产基地
1996
中国:在天津市设立第二个在华生产基地
1998
中国:在广东省东莞市设立第三个在华生产基地
1999
克罗地亚、斯洛文尼亚:开拓新兴市场
2000
巴西、拉脱维亚、土耳其:各生产线投入试运行
2001
阿根廷:生产线投入试运行
美国:设立了第三个玻璃纤维生产厂
2002
欧洲:收购ALCOPOR集团欧洲保温材料业务
德国:收购了AMF(Grafenau)剩余50% 的股份
印度尼西亚:收购一个石膏板生产厂
2004
挪威、波兰:收购Norgips AS公司位于挪威Drammen和波兰Oppeln的石膏板生产厂
2006
欧洲:收购岩棉和木纤维板生产厂Heraklith,成为中欧、东欧地区的主要供货商
捷克:新建于克鲁普卡的玻璃棉生产厂正式投入生产
2007
俄罗斯:新建于斯图皮诺的玻璃棉生产厂正式投入生产
塞尔维亚:扩建位于苏尔杜利察的岩棉生产线
中国:在江苏省太仓市设立第四个在华生产基地
2008
中国:引进Heradesign,Danoline,Cleaneo等高端产品助力北京奥运
2011
澳大利亚:成功收购拉法基集团石膏业务
2013
中国:第四个在华生产基地正式投产
2、可耐福集团
可耐福创建于1932年,总部位于德国依普霍芬,是世界领先的建筑系统与绿色建材的制造商。
目前,可耐福在全球86个国家和地区拥有12个子品牌、220个生产基地、逾30,000名员工。在中国仍保持着以石膏产品为核心业务,多种建筑材料及配套系统共同发展的格局,为建筑提供涉及建筑外墙、内墙、吊顶、地面等全系统解决方案。
在欧洲,可耐福旗下各个品牌几乎成为该领域顶级产品的代名词。近年来,可耐福的战略目光逐渐投向经济迅速发展的亚太地区,包括中国、澳大利亚、韩国、泰国、印度尼西亚、新加坡等在内的国家均设有可耐福的生产基地或办事处,以为亚太市场提供更加及时、同步的产品供应和技术支持。
3、可耐福中国
20世纪70年代后期,正值中国开始推行经济改革、开放政策、鼓励引进国外资金和先进科学技术时期。当时,可耐福主要为中国本土建材企业提供先进设备,并为新中国引入了第一条石膏板生产线。
1995年,可耐福在芜湖设立了第一个生产基地。随后又相继于1996年和1998年在天津和东莞分别设立生产基地。时至今日,可耐福每年为中国提供超过1亿平方米的绿色建材产品,在国内高端板材市场中占有近1/4的份额。集团已在中国构建起了高度成熟完善的生产、销售和技术支持服务体系。
2013年,可耐福又迎来其在中国的第四个生产基地—— 江苏太仓工厂的正式投产,这预示着越来越多的新产品和新技术也将随之被带入中国。
作为负责任的企业,可耐福在华的四个生产基地均采取多种措施,以降低环境污染。所有工厂均已采用天然气作为生产能源,从而替代柴油和重油,摒弃燃煤或燃气的加热和烘干方式,完成生产过程。同时各厂区积极开展绿化工作,扩大绿化面积,最大限度地降低碳排放,减少环境污染。此外,各个公司在本区域积极推动行业进步和社会发展,通过组织行业研讨会,开展广泛的技术交流,与当地大学建立合作模式,支持行业人才的培养。
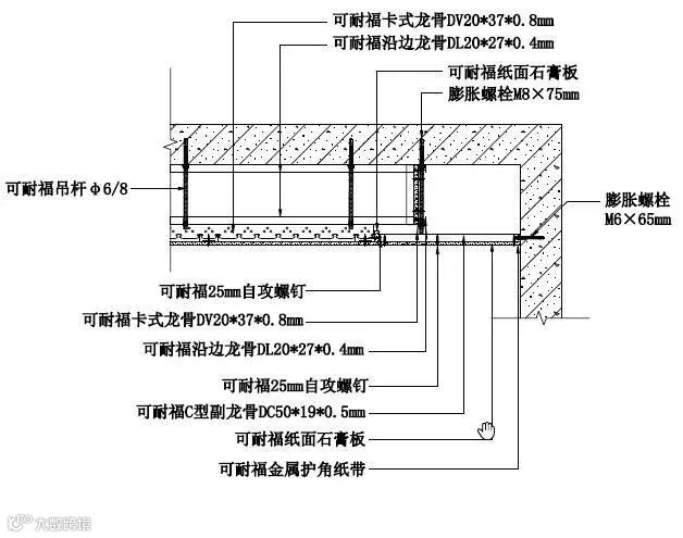
卡式吊顶
Ø 配件少,较经济,安装简便
Ø 不上人
Ø 调整不够灵活,易让吊顶存在应力
可耐福德式吊顶系统
可耐福C-I吊顶系统
可耐福C-II吊顶系统
可耐福吊顶系统——构件
可耐福吊顶系统——C-I型吊顶
不开裂灯槽转角做法
1、可耐福卡式吊顶系统 ——卡式吊顶灯槽做法
2、可耐福卡式吊顶系统 ——卡式吊顶灯槽转角做法
3、可耐福卡式吊顶系统 ——卡式吊顶灯槽做法

