还原生活最本质的美感
带来最养眼的感官体验
用温暖人心的设计
诉说着生活中的点滴美好
家,原本就是这么美好的存在。
///
[ 全景案例 ]
Modern luxury style
现代轻奢风格
楼盘 |Real estate-虎门万达
面积 |Area-88㎡
户型 |Unit type-三房两厅
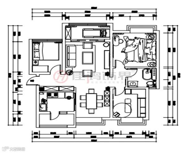
『 平面布置图 』
▼
设计灵感
客户为单身女性,所以整屋设计更浪漫柔和。采用了主灯、壁灯和筒灯结合的方式解决照明问题,颜色以白色为主,辅以卧室高级棕色搭配空间氛围。客餐厅区域以不同颜色的沙发和餐椅进行区分,点缀金属元素,整个空间瞬间灵动起来。
♀♀♀♀♀♀
入户做了内嵌玄关柜,下方预留20cm放常用的鞋子,中间留白,高度适合挂衣、放钥匙,再摆放上小饰物,为归家带来好心情。
♀♀♀♀♀♀
客厅整体以雅白为主色调,高频次使用金属色来增添轻奢质感,静谧青色的加入更是注入了一丝优雅气息,再辅以温润的木纹地砖,整个空间浑然天成。
电视背景墙设计给人天然、舒适的感觉,爵士白的大理石和金属线条的装饰,色系与整体相吻合。
沙发墙以白色乳胶漆的基础,加入两侧轻奢风的壁灯,搭配淡青色的布艺沙发,让客厅呈现出一种现代自然的端庄感。
♀♀♀♀♀♀
岩板的餐桌,与粉蓝相间的餐椅搭配,既有现代的理性,也有家的温馨感。餐厅餐边柜的装饰小物的点缀强化精致气息,即使是用餐区也可以不落俗套。
花艺与吊灯,雅致的飘窗,让整个餐厅彰显着品位与格调。
♀♀♀♀♀♀
平时做饭油烟重,墙面选择亮光小方砖更易清洗打理。地面选择了跳色防滑砖,防滑防油污,搭配大储量的收纳柜,视觉效果极佳。
♀♀♀♀♀♀
浅棕色背景墙给人以视觉退后的效果,也让整体色彩更具层次感。高级棕软包床、床头柜、壁灯统一和谐,定睛之笔的金色吊灯和饰画,瞬间将整个空间提亮。
♀♀♀♀♀♀
衣帽间做了一个上方一排到顶的储物柜+下方展示和推拉式衣柜,从而组合形成了一个步入式衣帽间,满足了屋主日常放大衣、行李箱的空间需求。
空间以端庄稳重的现代风格空间基础,布置拼接长椅,氛围时尚而舒适。

你的每次点赞加分享 我都认真当成了喜欢
向你推荐一个超赞的公众号
往期案例推荐
点击图片即可获取全文
推荐阅读
佳鸿饰界,全称广东佳鸿饰界装饰设计工程有限公司,国家注册商标,注册资金1000万人民币。05年成立于广州,是集住宅与商业空间的装饰设计、施工、建材、家具、配饰、售后和增值售后为一体的一站式家居连锁服务商。佳鸿饰界以环保透明为企业的发展特色,是全国最先倡导环保透明家装的品牌。
目前旗下注册商标品牌: 佳鸿饰界整装、谷间私宅、非凡同创3大品牌,同时有佳鸿V8.大宅,佳鸿VV软装两个事业部。在东莞寮步、东莞常平、东莞虎门、东莞塘厦、珠海香洲、惠州大亚湾、惠州博罗、惠州惠阳、惠州罗阳、惠州惠东、惠州惠城、中山等地设有分公司,是广东省最具竞争力装饰公司之一及全国头部家装500强企业。
Honors
资质荣誉
中国头部家装500强企业
广东省守合同重信用企业
中国室内装饰协会会员单位
中国农业银行战略合作单位
湖南设计力量发起单位
东莞市室内建筑设计行业协会单位
百城设计联盟最佳设计创意奖
国家室内装饰企业设计乙级资质单位
国家室内装饰企业施工乙级资质单位
房天下2016年度中国家居风云榜--暨业主喜爱的家居品牌
2016年度装修品牌榜最受业主信任的互联网装修口碑品牌
校企合作企业联盟单位
2016年家装战略合作百强企业
2018年中国商业汇最具口碑装饰设计公司 网络评选大赛冠军
中国室内建筑学会室内设计分会会员单位
APDF亚太设计联盟会员单位
保利地产战略合作客户
万科战略合作客户
......

广东佳鸿饰界
16年专注环保透明家装
一站式整体家装服务商
淘宝/网页搜索“广东佳鸿饰界”都可以找到我们哦!
【非凡同创总部】东莞市寮步镇时代华庭二楼01室
【谷间私宅】东莞市寮步镇时代华庭二楼02室
【东莞寮步店】 东莞市寮步镇时代华庭三楼整层
【东莞常平店】 东莞市常平镇袁山贝文昌三街14-15号4楼
【东莞虎门店】东莞市虎门镇连升路金洲商业大厦4栋9层整层
【惠州大亚湾店】惠州市大亚湾区响水北路12号
【珠海香洲店】珠海市香洲区前山左右创意园1栋2-12/13/23/24室
【惠州博罗店】惠州市博罗县罗阳镇荣鸿大厦601室
【惠州惠阳店】惠州市惠阳区淡水志隆大厦8楼
【惠州罗阳店】惠州市惠博大道中洲半岛四期11栋106-107号
【惠州惠东区域筹备部】敬请期待
【惠州惠城旗舰筹备部】敬请期待
【东莞塘厦筹备部】敬请期待
【珠海金湾区域筹备部】敬请期待
【中山筹备部】敬请期待







