设计哲学
用心感受艺术
构建陈设与环境的协调韵律
有条不紊的空间形态
产生井然有序的美感
...
设计师
项目介绍
Project introduction
工程地址 :碧桂园
面积 :119㎡
户型 :四室一厅一厨两卫
风格 :新中式
客户背景:
家里常住夫妇二人、长辈和小孩。屋主不想改变原有墙体和空间的区域划分,想做新中式的设计。
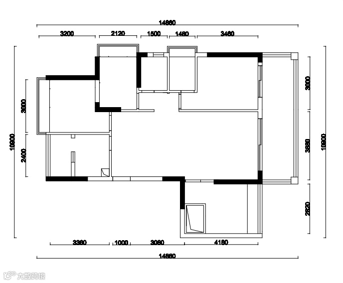
户型平面设计方案
Flat design plan
▲(原始户型图)
▲(平面布置图)
户型分析
House type analysis
存在缺陷:
✖️ 飘窗不能打掉,房间布局有限,多功能房隔着外侧通道。
✖️ 厨房原有宽度不够做推拉门。
改造后:
✔️ 多功能房榻榻米做上飘台,柜桌一体。
✔️ 厨房做平开门,靠餐厅的墙做酒柜。
设计蓝图
Design blueprint
设计灵感:
全屋无打拆,更多的以软装形式凸显效果,满足业主需求。四室一厅的空间设计不仅保证了各个房间的采光和充足的收纳属性,更以新中式风格作为空间基调,通过家具设计的合理布置,在细节处增添空间的细腻质感和中式元素,烘托出东方温馨自然的神韵。
设计材料:
胡桃木、大理石、玻璃等
效果呈现
Effect
Living room
客餐厅
01
客厅将传统中式背景引入,山水背幅交融,依山傍水,浑然一体。金色和黑色的线条贯穿整个空间,勾勒出精致的氛围,散发出新中式独有的质感。
深色胡桃木承托着米白的沙发,拥有对称雅致之美的同时,与吊顶的金属条中式走边法相互呼应,多了几分现代感与中式古典美的糅合。
Dinning room
餐厅
02
餐厅与客厅的空间采用现代表现手法展示,开放式设计,减少空间的隔阂,让一家人有更多共处一室的空间,增加家人的互动性。
中式顶灯和玻璃的橱柜很好地起到装点空间的作用,圆弧形桌椅更是融入了中国传统文化“方圆之道”的内涵,搭配简单的餐桌摆件,足以看出屋主的生活品质的追求。
Balcony
阳台
03
阳台更多地呈现现代化的设计,铁艺栅栏扩大空间视觉感,增加采光,将醉人夜景揽入,白色的藤椅看上去更加纯粹干净,而绿意盎然的垂吊藤蔓则成为整个空间最美的点缀。
Master bedroom
主卧
04
居室在软装方面秉承了传统古典风格的典雅和华贵,同时加入豆沙红的床品,呈现着时尚的特征。在衣柜上更注重实用收纳性与风格的统一,流畅地表达出了传统文化中的精髓。
另一侧布置电视和电视柜,周末居家闲躺也能观影,十分惬意。
Mult-function house
多功能房
05
传统文化的美融合在现代生活中,深浅色的配搭突显空间暖意,多功能房榻榻米做上飘台,柜桌一体,抱枕的多样化放置,增加了空间层次感。

你的每次点赞加分享 我都认真当成了喜欢
向你推荐一个超赞的公众号
往期案例推荐
点击图片即可获取全文
推荐阅读
佳鸿饰界,全称广东佳鸿饰界装饰设计工程有限公司,国家注册商标,注册资金1000万人民币。05年成立于广州,是集住宅与商业空间的装饰设计、施工、建材、家具、配饰、售后和增值售后为一体的一站式家居连锁服务商。佳鸿饰界以环保透明为企业的发展特色,是全国最先倡导环保透明家装的品牌。
目前旗下注册商标品牌: 佳鸿饰界整装、谷间私宅、非凡同创3大品牌,同时有佳鸿V8.大宅,佳鸿VV软装两个事业部。在东莞寮步、东莞常平、东莞虎门、东莞塘厦、珠海香洲、惠州大亚湾、惠州博罗、惠州惠阳、惠州罗阳、惠州惠东、惠州惠城、中山等地设有分公司,是广东省最具竞争力装饰公司之一及全国头部家装500强企业。
Honors
资质荣誉
中国头部家装500强企业
广东省守合同重信用企业
中国室内装饰协会会员单位
中国农业银行战略合作单位
湖南设计力量发起单位
东莞市室内建筑设计行业协会单位
百城设计联盟最佳设计创意奖
国家室内装饰企业设计乙级资质单位
国家室内装饰企业施工乙级资质单位
房天下2016年度中国家居风云榜--暨业主喜爱的家居品牌
2016年度装修品牌榜最受业主信任的互联网装修口碑品牌
校企合作企业联盟单位
2016年家装战略合作百强企业
2018年中国商业汇最具口碑装饰设计公司 网络评选大赛冠军
中国室内建筑学会室内设计分会会员单位
APDF亚太设计联盟会员单位
保利地产战略合作客户
万科战略合作客户
......

广东佳鸿饰界
16年专注环保透明家装
一站式整体家装服务商
淘宝/网页搜索“广东佳鸿饰界”都可以找到我们哦!
【非凡同创总部】东莞市寮步镇时代华庭二楼01室
【谷间私宅】东莞市寮步镇时代华庭二楼02室
【东莞寮步店】 东莞市寮步镇时代华庭三楼整层
【东莞常平店】 东莞市常平镇袁山贝文昌三街14-15号4楼
【东莞虎门店】东莞市虎门镇连升路金洲商业大厦4栋9层整层
【惠州大亚湾店】惠州市大亚湾区响水北路12号
【珠海香洲店】珠海市香洲区前山左右创意园1栋2-12/13/23/24室
【惠州博罗店】惠州市博罗县罗阳镇荣鸿大厦601室
【惠州惠阳店】惠州市惠阳区淡水志隆大厦8楼
【惠州罗阳店】惠州市惠博大道中洲半岛四期11栋106-107号
【惠州惠东区域筹备部】敬请期待
【惠州惠城旗舰筹备部】敬请期待
【东莞塘厦筹备部】敬请期待
【珠海金湾区域筹备部】敬请期待
【中山筹备部】敬请期待







