“如果能把花草、树木、流水、光,
根据人们的意愿从自然中提炼出来,
那么人间就接近天堂了。”
- -安藤忠雄
房屋信息:
楼盘:逸悦豪庭
户型:两房一卫
面积:81㎡
风格:现代原木
客户背景:
屋主一家在深圳工作,有一8岁多的小孩,准备在这边就读,常住3人。希望能有个书房,方便办公和学习,此外风格要接近自然,简单干净为主。
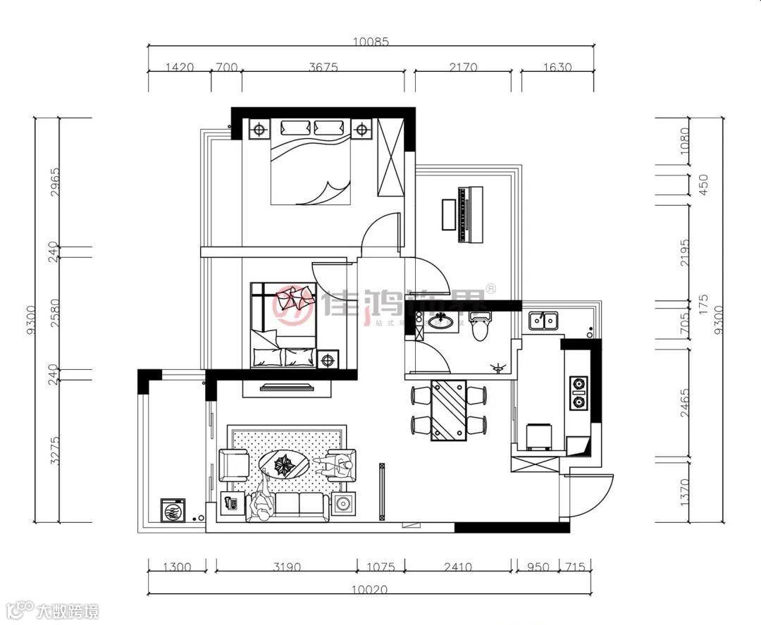
户型设计方案
▲ 平面布置图
户型分析:
原始结构-
1.入户没有摆放鞋柜的空间,不能满足使用要求
2.厨房空间紧凑,操作不便
3.次卧空间小,另外空中花园也需要处理
户型优化-
1.鞋柜位采用内嵌式,改造利用了一小部分厨房空间
2.小阳台打通纳入厨房,增大厨房使用面积
3.空中花园采用了封窗处理,设计成为可办公和学习的书房
设计灵感:
原木色,讲究的是原汁原味,返璞归真,显得典雅大方,全屋没有繁琐多变的装饰,木质物件呈现出天然的纹理和色泽,营造出充满木香的自然氛围。
设计亮点:
布置了纯净、质朴的原木材料,构造出最为纯粹、直接的质感空间,避免产生枯燥、单调感。
设计材料:
木材有橡木、枫木、松木等,彩色壁纸,涂料......
客厅
客餐厅一体式的设计,回应和细化每个需求,呵护人的活动。
半围合的原木沙发,将大理石茶几包裹。北欧风的装饰画、几何地毯,让这个区域充满了活力。网红萤火虫吊灯让空间多了一些浪漫的色彩。
同一个空间里包容,不同成员的不同状态,观影、交流、娱乐,享受一家人心灵上的共同成长。
餐厅
自然且充满了文艺气息的餐厅空间。温润的餐桌椅,原始质朴的木框吊灯,一幅一瓶随意生长的绿叶。
随着时间的流逝,细碎的光影投在月牙黄的墙面上,在清甜、细腻的日常中,感受时光的可贵与幸福。
厨房
厨房采用灰色+橡木色的基调,自然简约。清洗区、烹饪区分区明显,电器基本都做成了嵌入式,台面空间得到了更大的释放。
书房
独立的书房空间,带有弧度的书桌椅,更贴合人体使用实际,舒适轻便。开放架上放置屋主的收藏和书籍,让空间有了自己的个性。
主卧
延续青、灰、木本色的经典搭配,轻松、惬意、克制的自然主义。木与纯棉床品,不经意间,交织出触感的惊喜,白日里阳光洒落,化为枕间萦绕的浓浓暖意。
次卧
次卧亦是儿童房,为了让小朋友童年回忆多些美好和浪漫,更亲近自然,以麋鹿的背景墙,带来灵动的想象。
同时,区域有着明确的界线,飘窗处是大理石的台面,小朋友可以在这里看书阅读、观景娱乐,惬意成长。
设计师
往期案例推荐
点击图片即可获取全文
推荐阅读
佳鸿饰界,全称广东佳鸿饰界装饰设计工程有限公司,国家注册商标,注册资金1000万人民币。05年成立于广州,是集住宅与商业空间的装饰设计、施工、建材、家具、配饰、售后和增值售后为一体的一站式家居连锁服务商。佳鸿饰界以环保透明为企业的发展特色,是全国最先倡导环保透明家装的品牌。
目前旗下注册商标品牌: 佳鸿饰界整装、谷间私宅、非凡同创3大品牌,同时有佳鸿V8.大宅,佳鸿VV软装两个事业部。在东莞寮步、东莞常平、东莞虎门、东莞塘厦、珠海香洲、惠州大亚湾、惠州博罗、惠州惠阳、惠州罗阳、惠州惠东、惠州惠城、惠州仲恺、中山等地设有分公司,是广东省最具竞争力装饰公司之一及全国头部家装500强企业。
Honors
资质荣誉
中国头部家装500强企业
广东省守合同重信用企业
中国室内装饰协会会员单位
中国农业银行战略合作单位
湖南设计力量发起单位
东莞市室内建筑设计行业协会单位
百城设计联盟最佳设计创意奖
国家室内装饰企业设计乙级资质单位
国家室内装饰企业施工乙级资质单位
房天下2016年度中国家居风云榜--暨业主喜爱的家居品牌
2016年度装修品牌榜最受业主信任的互联网装修口碑品牌
校企合作企业联盟单位
2016年家装战略合作百强企业
2018年中国商业汇最具口碑装饰设计公司 网络评选大赛冠军
中国室内建筑学会室内设计分会会员单位
APDF亚太设计联盟会员单位
保利地产战略合作客户
万科战略合作客户
......

广东佳鸿饰界
16年专注环保透明家装
一站式整体家装服务商
淘宝/网页搜索“广东佳鸿饰界”都可以找到我们哦!










