

这套140㎡的三房,以简洁舒适的简约北欧风格装修,通过简单硬装,搭配上自然的清新的绿植与闲适现代的软装,整个空间打造成一个极度适合年轻人的氛围感。
楼盘地址 | Address:曲湖路西一巷
设计风格 | Style:简约北欧
项目面积 | Area:140㎡
户型格局 | Apartment:3房2厅1厨2卫
设计方案
The plan

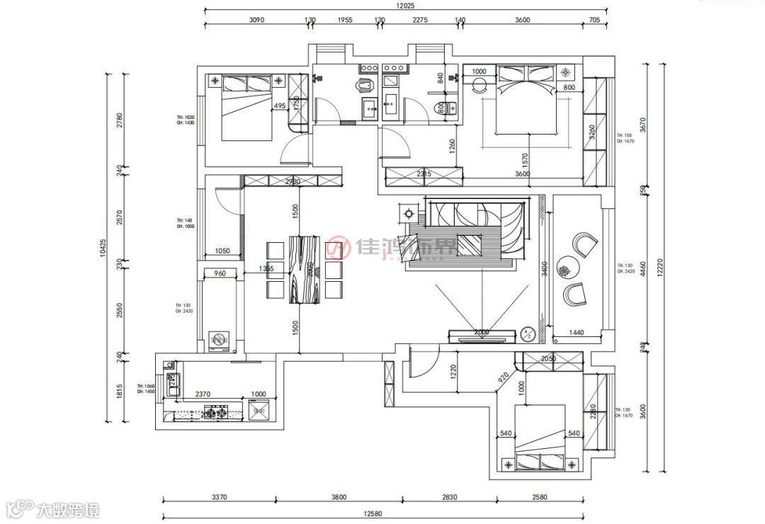
▲原始结构图
业主是一对年轻小夫妻,需要一间主卧,一间长辈房和一间客房,因此,设计师将四房改为了三房,分隔出来了一间储物间。
原有的餐厅空间也较小,不能满足一家人的就餐和活动需要,此外,存在着卫生间门对着入户大门的问题。

▲平面布置图
设计策略 | Design strategy :
1、拆掉非承重墙部分,打造客餐厅一体式格局,扩大了餐厅空间,使整个客餐厅更加宽敞明亮。
2、改造后,进门不会正对着卫生门,并利用原来门的位置挂画,形成入户端景。
3、以全屋无主灯和墙面通刷乳胶漆的设计,细致拿捏居家舒适感和氛围感的平衡。
首先看到的就是简洁的客厅,给人的感觉很轻快。自然的原木与绿植点缀,更是让空间充满了清新舒适的氛围气息。

电视墙以烟灰蓝的乳胶漆,搭配上大理石地板和原木电视柜,整个简洁的北欧空间,显得年轻又舒适。
极简的小茶几,在不需要的时候可以挪到电视柜或沙发旁,让整个客厅保持更加宽敞通透的格局,这种设计对于即将有小孩的年轻夫妇来说非常合适。

靠墙打造的一整面原木餐边柜,温润自然,不失品味。结合简约美观的铁艺照片和小瓷盘装饰,点亮了空间的文艺与清新。

餐厅摆上一套带有轻奢气息的餐桌椅,粉粉嫩嫩的绒面中和了大理石材质带来的冷冽感,显得年轻大胆又富有张力。

L型布局的厨房,灰纹瓷砖搭配石英石的操作台面和烤漆面板橱柜,延续简约的基调。
厨房配置还是要双开门可自动调节的冰箱,让智能家居走进生活。

主卧是原木地板,顶上无主灯设计,以灯带+吊灯的形式满足照明需要。
空间内以低饱和度的色彩为主,家具小巧又轻盈,显得更加清新文艺。
一侧有带着纱帘的软卧飘窗,春天坐在这里,有着一种别样舒适的精致体验。

卫生间的面积不大,但通过合理的设计(比如墙面的壁龛)利用,让小小的卫生间也干净整洁,同时灰色质感的空间氛围,也使得空间格外的自然舒适。

光线透过玻璃窗,打在橘粉色的背景墙上,结合灰色、蓝色与木色的软装,带来一种简约和煦的居室氛围。

长辈房在硬装方面也是相当的简洁大方,摆上一张舒适现代的橡木床,结合一些简单的小饰品的点缀,整个卧室都充满了温馨的北欧风气息。
床头两侧是鱼线形的金属吊灯,满足老人家的日常使用需求,简单又实用。
👇👇👇


大湾区400余盘
数千样板工地开放参观中
👇 点击下方图片查看
往期案例推荐
点击图片即可获取全文
全国热线:400-6065-645





